New Homes » Kanto » Chiba Prefecture » Yachiyo
 
| | Chiba Prefecture Yachiyo 千葉県八千代市 |
| AzumaYo high-speed railway, "Murakami" walk 10 minutes 東葉高速鉄道「村上」歩10分 |
| A 10-minute walk from the station and nearby, Full of personality residence. It established the family corner to the spread of the living room in a bright south-facing! I will the whole family smile gathering. 駅から徒歩10分と近く、個性溢れる住まい。明るい南向きに広めのリビングにはファミリーコーナーを設置!家族みんなの笑顔が集まりますね。 |
| ■ Murakami Station a 10-minute walk! Commute, Happy to go out ■ South-facing balcony is good per sun! Your laundry Jose you a lot! ■ Second floor of the lower house back housed about 2 minutes Pledge! Also smarter storage which do not usually use! ■ 17 Pledge spacious spread of living exceeded, It is light and airy! ■ small ・ A 10-minute walk from the junior high school and the nearby, Happy to be school children! ■村上駅徒歩10分!通勤、お出かけもラクラク ■南向きバルコニーが陽当たり良好!お洗濯もたくさん干せます! ■2階の下屋裏収納は約2帖分!普段使わないものも賢く収納! ■17帖超えのゆったり広めのリビングは、明るく開放的です! ■小・中学校まで徒歩10分と近く、お子様も通学もラクラク! |
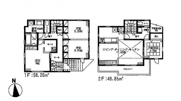
Features pickup 特徴ピックアップ | | It is close to the city / Facing south / System kitchen / Yang per good / All room storage / A quiet residential area / LDK15 tatami mats or more / Corner lot / Japanese-style room / Face-to-face kitchen / Toilet 2 places / 2-story / South balcony / Warm water washing toilet seat / Underfloor Storage / The window in the bathroom / Leafy residential area / Ventilation good / City gas 市街地が近い /南向き /システムキッチン /陽当り良好 /全居室収納 /閑静な住宅地 /LDK15畳以上 /角地 /和室 /対面式キッチン /トイレ2ヶ所 /2階建 /南面バルコニー /温水洗浄便座 /床下収納 /浴室に窓 /緑豊かな住宅地 /通風良好 /都市ガス | Price 価格 | | 29,700,000 yen 2970万円 | Floor plan 間取り | | 4LDK 4LDK | Units sold 販売戸数 | | 1 units 1戸 | Total units 総戸数 | | 9 units 9戸 | Land area 土地面積 | | 130.51 sq m (registration) 130.51m2(登記) | Building area 建物面積 | | 108.05 sq m (registration) 108.05m2(登記) | Driveway burden-road 私道負担・道路 | | Nothing 無 | Completion date 完成時期(築年月) | | June 2013 2013年6月 | Address 住所 | | Chiba Prefecture Yachiyo Murakami 千葉県八千代市村上 | Traffic 交通 | | AzumaYo high-speed railway, "Murakami" walk 10 minutes 東葉高速鉄道「村上」歩10分
| Person in charge 担当者より | | Rep Kurihara Takashika is the foundation of life, That buy it in one of a lifetime, It is a very large shopping. Customers was good living "! "When, Find the house who can sincerely happy, In good faith, We would like to support with full force. 担当者栗原 隆家は生活の基盤であり、それを買う事は一生のうちで、とても大きい買い物です。お客様が「住んで良かった!」と、心から満足して頂ける住まい探しを、誠意を持って、全力でサポートしていきたいと思います。 | Contact お問い合せ先 | | TEL: 0800-603-0395 [Toll free] mobile phone ・ Also available from PHS Caller ID is not notified Please contact the "saw SUUMO (Sumo)" If it does not lead, If the real estate company TEL:0800-603-0395【通話料無料】携帯電話・PHSからもご利用いただけます 発信者番号は通知されません 「SUUMO(スーモ)を見た」と問い合わせください つながらない方、不動産会社の方は
| Building coverage, floor area ratio 建ぺい率・容積率 | | Fifty percent ・ Hundred percent 50%・100% | Time residents 入居時期 | | Immediate available 即入居可 | Land of the right form 土地の権利形態 | | Ownership 所有権 | Structure and method of construction 構造・工法 | | Wooden 2-story 木造2階建 | Use district 用途地域 | | One low-rise 1種低層 | Overview and notices その他概要・特記事項 | | Contact: Kurihara Takashi, Facilities: Public Water Supply, This sewage, City gas, Parking: car space 担当者:栗原 隆、設備:公営水道、本下水、都市ガス、駐車場:カースペース | Company profile 会社概要 | | <Mediation> Minister of Land, Infrastructure and Transport (11) No. 001961 (the company), Chiba Prefecture Building Lots and Buildings Transaction Business Association (Corporation) metropolitan area real estate Fair Trade Council member Tokai Housing Corporation head office Yubinbango276-0032 Chiba Prefecture Yachiyo Yachiyodaihigashi 1-2-11 <仲介>国土交通大臣(11)第001961号(社)千葉県宅地建物取引業協会会員 (公社)首都圏不動産公正取引協議会加盟東海住宅(株)本店〒276-0032 千葉県八千代市八千代台東1-2-11 |
 Local appearance photo
現地外観写真
 Same specifications photos (living)
同仕様写真(リビング)
Floor plan間取り図  29,700,000 yen, 4LDK, Land area 130.51 sq m , Building area 108.05 sq m
2970万円、4LDK、土地面積130.51m2、建物面積108.05m2
 Living
リビング
 Bathroom
浴室
 Kitchen
キッチン
 Wash basin, toilet
洗面台・洗面所
 Parking lot
駐車場
Primary school小学校  1200m to Murakami North Elementary School
村上北小学校まで1200m
Junior high school中学校  550m to Murakami, junior high school
村上中学校まで550m
Other Environmental Photoその他環境写真  To other Environmental Photo 750m
その他環境写真まで750m
Location
|