New Homes » Kanto » Chiba Prefecture » Yotsukaido


Chiba Prefecture Yotsukaido
JR Sobu "Yotsukaidou" walk 23 minutes
All rooms 6 quires more ・ Spacious two-sided lighting, Warm 1 building! Shopping, etc. is a convenient location.
4.5m public road of not violently peace of mind of the street of your car! And out of your car is a breeze carefree even children in the living environment of calm in the flat!
Features pickup
Super close / Facing south / System kitchen / Bathroom Dryer / Yang per good / All room storage / A quiet residential area / LDK15 tatami mats or more / Around traffic fewer / Japanese-style room / Shaping land / Washbasin with shower / Face-to-face kitchen / Toilet 2 places / Bathroom 1 tsubo or more / 2-story / South balcony / Double-glazing / Warm water washing toilet seat / Underfloor Storage / The window in the bathroom / TV monitor interphone / Ventilation good / All rooms are two-sided lighting / Flat terrain
Price
23.8 million yen
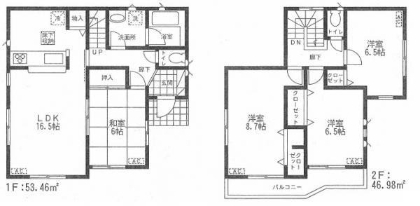
Floor plan
4LDK
Units sold
1 units
Total units
1 units
Land area
132.59 sq m (registration)
Building area
100.44 sq m (measured)
Driveway burden-road
Nothing, East 4.5m width
Completion date
January 2014
Address
Chiba Prefecture Yotsukaido Dainichi
Traffic
JR Sobu "Yotsukaidou" walk 23 minutes
Contact
TEL: 0800-603-0396 [Toll free] mobile phone ・ Also available from PHS
Caller ID is not notified
Please contact the "saw SUUMO (Sumo)"
If it does not lead, If the real estate company
Building coverage, floor area ratio
Fifty percent ・ Hundred percent
Time residents
Consultation
Land of the right form
Ownership
Structure and method of construction
Wooden 2-story
Use district
One low-rise
Overview and notices
Facilities: Public Water Supply, This sewage, Building confirmation number: No. 13UDI1W Ken 02436, Parking: car space
Company profile
<Mediation> Minister of Land, Infrastructure and Transport (11) No. 001961 (the company), Chiba Prefecture Building Lots and Buildings Transaction Business Association (Corporation) metropolitan area real estate Fair Trade Council member Tokai Housing Corporation Yotsukaidou branch Yubinbango284-0005 Chiba Prefecture Yotsukaido Yotsukaido 1-6-4


Other local

Other local. 1 buildings completed is fun!
1 buildings completed is fun!

Floor plan

Floor plan. 23.8 million yen, 4LDK, Land area 132.59 sq m , Building area 100.44 sq m living leisurely 16 Pledge!
23.8 million yen, 4LDK, Land area 132.59 sq m , Building area 100.44 sq m living leisurely 16 Pledge!

Local photos, including front road

Local photos, including front road. It is spacious road.
It is spacious road.

Primary school

Primary school. A 14-minute walk up to 1100m elementary school to middle elementary school.
A 14-minute walk up to 1100m elementary school to middle elementary school.

Access view

Access view. 23-minute walk to the station.
23-minute walk to the station.

Junior high school

Junior high school. Yotsukaidou walk up to 650m junior high school until the North Junior High School 9 minutes!
Yotsukaidou walk up to 650m junior high school until the North Junior High School 9 minutes!



Location