|
|
Fukuoka Jonan-ku,
福岡県福岡市城南区
|
|
Subway Nanakuma line "Ropponmatsu" bus 10 minutes Nishitetsu "Nagao 5-chome" walk 3 minutes
地下鉄七隈線「六本松」バス10分西鉄バス「長尾5丁目」歩3分
|
|
[5th Anniversary] Campaign in! Founded in backing fifth anniversary! Who was capped for the first time be announced at our company, 2,000 yen worth of gift certificates gift every month first 30 people!
【5th Anniversary】キャンペーン開催中!お蔭様で創立5周年!初めて弊社にてご案内させて頂いた方、毎月先着30名様に2,000円分の商品券プレゼント!
|
|
Limited two buildings ☆ A 5-minute walk from a quiet residential area elementary school life convenience facility has been enhanced, Commuting range of security and a 10-minute walk from the junior high school ◎ with gas fan heater ・ Please not hesitate to contact us!
限定2棟☆生活利便施設が充実した閑静な住宅街小学校まで徒歩5分、中学校まで徒歩10分と安心の通学範囲◎ガスファンヒーター付・お気軽にお問い合わせ下さいませ!
|
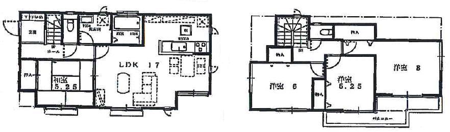
Features pickup 特徴ピックアップ | | Corresponding to the flat-35S / Parking two Allowed / Energy-saving water heaters / Super close / Facing south / System kitchen / Yang per good / All room storage / A quiet residential area / LDK15 tatami mats or more / Japanese-style room / Shaping land / Washbasin with shower / Face-to-face kitchen / Barrier-free / Toilet 2 places / Bathroom 1 tsubo or more / 2-story / Double-glazing / Zenshitsuminami direction / Warm water washing toilet seat / Underfloor Storage / The window in the bathroom / TV monitor interphone / Water filter / City gas フラット35Sに対応 /駐車2台可 /省エネ給湯器 /スーパーが近い /南向き /システムキッチン /陽当り良好 /全居室収納 /閑静な住宅地 /LDK15畳以上 /和室 /整形地 /シャワー付洗面台 /対面式キッチン /バリアフリー /トイレ2ヶ所 /浴室1坪以上 /2階建 /複層ガラス /全室南向き /温水洗浄便座 /床下収納 /浴室に窓 /TVモニタ付インターホン /浄水器 /都市ガス |
Price 価格 | | 32,800,000 yen ~ 33,800,000 yen 3280万円 ~ 3380万円 |
Floor plan 間取り | | 4LDK 4LDK |
Units sold 販売戸数 | | 2 units 2戸 |
Total units 総戸数 | | 2 units 2戸 |
Land area 土地面積 | | 140.56 sq m (42.51 tsubo) (measured) 140.56m2(42.51坪)(実測) |
Building area 建物面積 | | 98.53 sq m (29.80 tsubo) (measured) 98.53m2(29.80坪)(実測) |
Driveway burden-road 私道負担・道路 | | Contact road situation: the West 5.5 ~ 5.1m on public roads (law 42 Paragraph 1 No. 1) 接道状況:西側5.5 ~ 5.1m公道(法42条1項1号) |
Completion date 完成時期(築年月) | | March 2014 in late schedule 2014年3月下旬予定 |
Address 住所 | | Nagao Fukuoka Jonan-ku, 5 福岡県福岡市城南区長尾5 |
Traffic 交通 | | Subway Nanakuma line "Ropponmatsu" bus 10 minutes Nishitetsu "Nagao 5-chome" walk 3 minutes 地下鉄七隈線「六本松」バス10分西鉄バス「長尾5丁目」歩3分
|
Related links 関連リンク | | [Related Sites of this company] 【この会社の関連サイト】 |
Contact お問い合せ先 | | TEL: 0120717-123 [Toll free] Please contact the "saw SUUMO (Sumo)" TEL:0120717-123【通話料無料】「SUUMO(スーモ)を見た」と問い合わせください |
Building coverage, floor area ratio 建ぺい率・容積率 | | Kenpei rate: 60%, Volume ratio: 200% 建ペい率:60%、容積率:200% |
Time residents 入居時期 | | April 2014 early schedule 2014年4月上旬予定 |
Land of the right form 土地の権利形態 | | Ownership 所有権 |
Structure and method of construction 構造・工法 | | Wooden siding stuck roofing 葺 2-story 木造サイディング貼ルーフィング葺2階建 |
Use district 用途地域 | | One dwelling 1種住居 |
Land category 地目 | | Residential land 宅地 |
Other limitations その他制限事項 | | Regulations have by the Aviation Law, Height ceiling Yes 航空法による規制有、高さ最高限度有 |
Overview and notices その他概要・特記事項 | | Building confirmation number: (1) KJH13-04245-1 (2) KJH13-04246-1 建築確認番号:(1)KJH13-04245-1(2)KJH13-04246-1 |
Company profile 会社概要 | | <Mediation> Governor of Fukuoka Prefecture (1) No. 016400 (Corporation), Fukuoka Prefecture Building Lots and Buildings Transaction Business Association (One company) Kyushu Real Estate Fair Trade Council member (Ltd.) Eforu Yubinbango810-0074 Fukuoka Chuo-ku, Fukuoka City Otemon 1-8-8 <仲介>福岡県知事(1)第016400号(公社)福岡県宅地建物取引業協会会員 (一社)九州不動産公正取引協議会加盟(株)エフォール〒810-0074 福岡県福岡市中央区大手門1-8-8 |