New Homes » Kyushu » Fukuoka Prefecture » Minami-ku
 
| | Fukuoka Prefecture, Minami-ku, Fukuoka City 福岡県福岡市南区 |
| Nishitetsu "Nagazumi 1-chome" walk 3 minutes 西鉄バス「長住1丁目」歩3分 |
| ☆ With the first floor shutter shutters, Screen door standard specification ☆ All room 6 quires more! ! ◆ It is incomplete, but you can see the building of the same specification, Come please visit ☆1階シャッター雨戸付、網戸標準仕様☆全居室6帖以上!!◆未完成ですが同仕様の建物をご覧頂けます、是非ご覧ください |
| ◇ who wants to Relocation but from what just started looking for real estate is left ◇◇ mortgage those who do not know say with a hand [Our buyback program there] ◇◇ construction company has decided, but, Although the ◇◇ request of sale who are thought scary quite likely to be hard sell to go to ◇◇ real estate agent who land is thought to anxiety or not those ◇◇ mortgage borrowing can be to find, Quite anyone who does not sell in the amount of hope ◇ ~ Please consult any worries Plenty of real estate. Peace of mind ・ It boasts a secure transactions. ~ ◇不動産を探し始めたばかりで何から手を付けていいのか分からない方◇◇住宅ローンが残っているけれど住み替えを希望している方【弊社買取制度有り】◇◇建築会社は決まっているが、なかなか土地が見つからない方◇◇住宅ローンの借り入れが出来るか不安に思っている方◇◇不動産屋に行くと押し売りされそうで怖いと思っている方◇◇売却の依頼をしているが、なかなか希望の金額で売れないという方◇ ~ 不動産のことならどんなお悩みでもご相談ください。安心・安全な取引が自慢です。 ~ |
Features pickup 特徴ピックアップ | | Parking two Allowed / Energy-saving water heaters / Facing south / System kitchen / Bathroom Dryer / All room storage / A quiet residential area / LDK15 tatami mats or more / Japanese-style room / Face-to-face kitchen / Toilet 2 places / Bathroom 1 tsubo or more / 2-story / Double-glazing / Warm water washing toilet seat / Underfloor Storage / TV monitor interphone / All room 6 tatami mats or more / City gas 駐車2台可 /省エネ給湯器 /南向き /システムキッチン /浴室乾燥機 /全居室収納 /閑静な住宅地 /LDK15畳以上 /和室 /対面式キッチン /トイレ2ヶ所 /浴室1坪以上 /2階建 /複層ガラス /温水洗浄便座 /床下収納 /TVモニタ付インターホン /全居室6畳以上 /都市ガス | Event information イベント情報 | | (Please be sure to ask in advance) (事前に必ずお問い合わせください) | Price 価格 | | 29,800,000 yen 2980万円 | Floor plan 間取り | | 4LDK 4LDK | Units sold 販売戸数 | | 1 units 1戸 | Total units 総戸数 | | 1 units 1戸 | Land area 土地面積 | | 160 sq m 160m2 | Building area 建物面積 | | 97.6 sq m 97.6m2 | Driveway burden-road 私道負担・道路 | | Nothing, West 4m width, South 3m width 無、西4m幅、南3m幅 | Completion date 完成時期(築年月) | | December 2013 2013年12月 | Address 住所 | | Fukuoka Prefecture, Minami-ku, Fukuoka City Yanagochi 1 福岡県福岡市南区柳河内1 | Traffic 交通 | | Nishitetsu "Nagazumi 1-chome" walk 3 minutes 西鉄バス「長住1丁目」歩3分 | Related links 関連リンク | | [Related Sites of this company] 【この会社の関連サイト】 | Person in charge 担当者より | | Person in charge of three mountains Tetsuo Age: because with the 30s in all sincerity let me correspond, Anything please consult! 担当者三山 哲生年齢:30代誠心誠意を持って対応させて頂きますので、何でもご相談ください! | Contact お問い合せ先 | | TEL: 0800-603-2316 [Toll free] mobile phone ・ Also available from PHS Caller ID is not notified Please contact the "saw SUUMO (Sumo)" If it does not lead, If the real estate company TEL:0800-603-2316【通話料無料】携帯電話・PHSからもご利用いただけます 発信者番号は通知されません 「SUUMO(スーモ)を見た」と問い合わせください つながらない方、不動産会社の方は
| Building coverage, floor area ratio 建ぺい率・容積率 | | Fifty percent ・ 80% 50%・80% | Time residents 入居時期 | | Consultation 相談 | Land of the right form 土地の権利形態 | | Ownership 所有権 | Structure and method of construction 構造・工法 | | Wooden 2-story 木造2階建 | Use district 用途地域 | | One low-rise 1種低層 | Other limitations その他制限事項 | | Set-back: already セットバック:済 | Overview and notices その他概要・特記事項 | | Contact: Miyama Tetsuo, Facilities: Public Water Supply, This sewage, City gas, Building confirmation number: No. H25 confirmation architecture Fukuzumi cell this issue 00878, Parking: car space 担当者:三山 哲生、設備:公営水道、本下水、都市ガス、建築確認番号:第H25確認建築福住セ本00878号、駐車場:カースペース | Company profile 会社概要 | | <Mediation> Minister of Land, Infrastructure and Transport (2) No. 007017 (Corporation) All Japan Real Estate Association (One company) Kyushu Real Estate Fair Trade Council member (Ltd.) House Freedom Seongnam shop Yubinbango814-0133 Fukuoka Jonan-ku Nanakuma 4-11-13 <仲介>国土交通大臣(2)第007017号(公社)全日本不動産協会会員 (一社)九州不動産公正取引協議会加盟(株)ハウスフリーダム城南店〒814-0133 福岡県福岡市城南区七隈4-11-13 |
Local appearance photo現地外観写真  Free dial ◆ 0800-603-2316 ◆ Please call us feel free to.
フリーダイヤル◆0800-603-2316◆までお気軽にお電話ください。
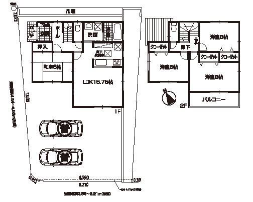
Floor plan間取り図  29,800,000 yen, 4LDK, Land area 160 sq m , Building area 97.6 sq m ☆ With the first floor shutter shutters, Screen door standard specification ☆ All room 6 quires more! !
2980万円、4LDK、土地面積160m2、建物面積97.6m2 ☆1階シャッター雨戸付、網戸標準仕様☆全居室6帖以上!!
Local appearance photo現地外観写真  ☆ It is incomplete, but you can see the building of the same specification, Come please visit!
☆未完成ですが同仕様の建物をご覧頂けます、是非ご覧ください!
Local photos, including front road前面道路含む現地写真  ☆ Parking space 2 cars
☆駐車スペース2台分
Shopping centreショッピングセンター  Paseo Noma until Oike 477m
パセオ野間大池まで477m
Park公園  628m to Noma Oike park
野間大池公園まで628m
Primary school小学校  1376m to Fukuoka Municipal Wakahisa Elementary School
福岡市立若久小学校まで1376m
Hospital病院  Medical Corporation 慈光 Board Wakahisa to hospital 842m
医療法人慈光会若久病院まで842m
Home centerホームセンター  MrMax until Nagazumi shop 1667m
MrMax長住店まで1667m
 Local guide map
現地案内図
Local appearance photo現地外観写真  Contact us, Until the toll-free 0800-603-2316 please feel free (= ^ ▽ ^ =) Bruno
お問い合わせは、フリーダイヤル0800-603-2316までお気軽にどうぞ(=^▽^=)ノ
Same specifications photos (living)同仕様写真(リビング)  ◆ ◇ photograph is the one of the construction company the same specification. Please contact us for specification details ◇ ◆
◆◇写真は施工会社同仕様のものです。詳細の仕様についてはお問合わせください◇◆
Same specifications photo (kitchen)同仕様写真(キッチン)  ◆ ◇ photograph is the one of the construction company the same specification. Please contact us for specification details ◇ ◆
◆◇写真は施工会社同仕様のものです。詳細の仕様についてはお問合わせください◇◆
Same specifications photos (Other introspection)同仕様写真(その他内観)  ◆ ◇ photograph is the one of the construction company the same specification. Please contact us for specification details ◇ ◆
◆◇写真は施工会社同仕様のものです。詳細の仕様についてはお問合わせください◇◆
Same specifications photo (bathroom)同仕様写真(浴室)  ◆ ◇ photograph is the one of the construction company the same specification. Please contact us for specification details ◇ ◆
◆◇写真は施工会社同仕様のものです。詳細の仕様についてはお問合わせください◇◆
Same specifications photos (Other introspection)同仕様写真(その他内観)  ◆ ◇ photograph is the one of the construction company the same specification. Please contact us for specification details ◇ ◆
◆◇写真は施工会社同仕様のものです。詳細の仕様についてはお問合わせください◇◆
 ◆ ◇ photograph is the one of the construction company the same specification. Please contact us for specification details ◇ ◆
◆◇写真は施工会社同仕様のものです。詳細の仕様についてはお問合わせください◇◆
 ◆ ◇ photograph is the one of the construction company the same specification. Please contact us for specification details ◇ ◆
◆◇写真は施工会社同仕様のものです。詳細の仕様についてはお問合わせください◇◆
Location
|