New Homes » Kyushu » Fukuoka Prefecture » Minami-ku
 
| | Fukuoka Prefecture, Minami-ku, Fukuoka City 福岡県福岡市南区 |
| Nishitetsu Tenjin Omuta Line "Takamiya" walk 13 minutes 西鉄天神大牟田線「高宮」歩13分 |
| Walk to Nishitetsu Takamiya Station 13 minutes! Your choice of field trips, please contact us as soon as possible! 西鉄高宮駅まで徒歩13分!現地見学のご希望はお早めにお問い合わせ下さい! |
| Solar power system, Parking two Allowed, Facing south, All room 6 tatami mats or more, Double-glazing, Energy-saving water heaters, Measures to conserve energy, Pre-ground survey, Bathroom Dryer, Siemens south road, LDK15 tatami mats or moreese-style room, Washbasin with shower, Face-to-face kitchen, Toilet 2 places, Bathroom 1 tsubo or more, 2-story, 2 or more sides balcony, Warm water washing toilet seat, Underfloor Storage, The window in the bathroom, Ventilation good, Water filter 太陽光発電システム、駐車2台可、南向き、全居室6畳以上、複層ガラス、省エネ給湯器、省エネルギー対策、地盤調査済、浴室乾燥機、南側道路面す、LDK15畳以上、和室、シャワー付洗面台、対面式キッチン、トイレ2ヶ所、浴室1坪以上、2階建、2面以上バルコニー、温水洗浄便座、床下収納、浴室に窓、通風良好、浄水器 |
Features pickup 特徴ピックアップ | | Measures to conserve energy / Pre-ground survey / Year Available / Parking two Allowed / Energy-saving water heaters / It is close to the city / Facing south / Bathroom Dryer / Flat to the station / LDK15 tatami mats or more / Japanese-style room / Shaping land / Washbasin with shower / Face-to-face kitchen / Toilet 2 places / Bathroom 1 tsubo or more / 2-story / Double-glazing / Warm water washing toilet seat / Underfloor Storage / The window in the bathroom / Urban neighborhood / Ventilation good / All room 6 tatami mats or more / Water filter 省エネルギー対策 /地盤調査済 /年内入居可 /駐車2台可 /省エネ給湯器 /市街地が近い /南向き /浴室乾燥機 /駅まで平坦 /LDK15畳以上 /和室 /整形地 /シャワー付洗面台 /対面式キッチン /トイレ2ヶ所 /浴室1坪以上 /2階建 /複層ガラス /温水洗浄便座 /床下収納 /浴室に窓 /都市近郊 /通風良好 /全居室6畳以上 /浄水器 | Event information イベント情報 | | (Please coming directly to the site) (直接現地へご来場ください) | Price 価格 | | 34,800,000 yen 3480万円 | Floor plan 間取り | | 4LDK 4LDK | Units sold 販売戸数 | | 1 units 1戸 | Total units 総戸数 | | 1 units 1戸 | Land area 土地面積 | | 123.88 sq m (37.47 tsubo) (Registration) 123.88m2(37.47坪)(登記) | Building area 建物面積 | | 98.01 sq m (29.64 tsubo) (measured) 98.01m2(29.64坪)(実測) | Driveway burden-road 私道負担・道路 | | Nothing, Northwest 5.2m width 無、北西5.2m幅 | Completion date 完成時期(築年月) | | December 2013 2013年12月 | Address 住所 | | Fukuoka Prefecture, Minami-ku, Fukuoka City Okusu 1 福岡県福岡市南区大楠1 | Traffic 交通 | | Nishitetsu Tenjin Omuta Line "Takamiya" walk 13 minutes 西鉄天神大牟田線「高宮」歩13分
| Related links 関連リンク | | [Related Sites of this company] 【この会社の関連サイト】 | Contact お問い合せ先 | | I seeds Earl E. (Ltd.) TEL: 0800-602-6802 [Toll free] mobile phone ・ Also available from PHS Caller ID is not notified Please contact the "saw SUUMO (Sumo)" If it does not lead, If the real estate company ボクシーズアールイー(株)TEL:0800-602-6802【通話料無料】携帯電話・PHSからもご利用いただけます 発信者番号は通知されません 「SUUMO(スーモ)を見た」と問い合わせください つながらない方、不動産会社の方は
| Building coverage, floor area ratio 建ぺい率・容積率 | | 60% ・ 200% 60%・200% | Time residents 入居時期 | | Consultation 相談 | Land of the right form 土地の権利形態 | | Ownership 所有権 | Structure and method of construction 構造・工法 | | Wooden 2-story (framing method) 木造2階建(軸組工法) | Use district 用途地域 | | Two dwellings 2種住居 | Other limitations その他制限事項 | | Regulations have by the Aviation Law 航空法による規制有 | Overview and notices その他概要・特記事項 | | Facilities: Public Water Supply, This sewage, Individual LPG, Building confirmation number: No. H25 confirmation architecture Fukuzumi Se Nos. 01117, Parking: car space 設備:公営水道、本下水、個別LPG、建築確認番号:第H25確認建築福住セ01117号、駐車場:カースペース | Company profile 会社概要 | | <Mediation> Governor of Fukuoka Prefecture (1) the first 017,058 No. I seeds Earl E Co., Ltd. Yubinbango812-0053 Fukuoka Prefecture, Higashi-ku, Fukuoka Hakozaki 2-22-3-103 <仲介>福岡県知事(1)第017058号ボクシーズアールイー(株)〒812-0053 福岡県福岡市東区箱崎2-22-3-103 |
Local appearance photo現地外観写真  Local (11 May 2013) Shooting
現地(2013年11月)撮影
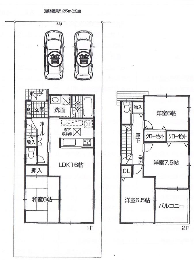
Floor plan間取り図  34,800,000 yen, 4LDK, Land area 123.88 sq m , Building area 98.01 sq m
3480万円、4LDK、土地面積123.88m2、建物面積98.01m2
Livingリビング  (November 2013) Shooting
(2013年11月)撮影
Bathroom浴室  (November 2013) Shooting
(2013年11月)撮影
Kitchenキッチン  (November 2013) Shooting
(2013年11月)撮影
Non-living roomリビング以外の居室  (November 2013) Shooting
(2013年11月)撮影
Wash basin, toilet洗面台・洗面所  (November 2013) Shooting
(2013年11月)撮影
Receipt収納  (November 2013) Shooting
(2013年11月)撮影
Toiletトイレ  (November 2013) Shooting
(2013年11月)撮影
Balconyバルコニー  Local (11 May 2013) Shooting
現地(2013年11月)撮影
Other introspectionその他内観  (November 2013) Shooting
(2013年11月)撮影
View photos from the dwelling unit住戸からの眺望写真  (November 2013) Shooting
(2013年11月)撮影
Other localその他現地  Local (11 May 2013) Shooting
現地(2013年11月)撮影
Location
|