New Homes » Kyushu » Fukuoka Prefecture » Minami-ku


Fukuoka Prefecture, Minami-ku, Fukuoka City
Nishitetsu "Sarayama Third Street" walk 5 minutes
Pre-ground survey, Energy-saving water heaters, Corner lot, Zenshitsuminami direction, System kitchen, All room storage, Corresponding to the flat-35S, Fiscal year Available, Super close, Flat to the station, A quiet residential area, Around traffic fewer
Before the park eyes! New construction 4LDK this price of raising children-friendly environment! Request a call ・ Feel free to e-mail!
Features pickup
Corresponding to the flat-35S / Pre-ground survey / Fiscal year Available / Energy-saving water heaters / Super close / Facing south / System kitchen / All room storage / Flat to the station / A quiet residential area / Around traffic fewer / Corner lot / Japanese-style room / Washbasin with shower / Face-to-face kitchen / Wide balcony / Toilet 2 places / Bathroom 1 tsubo or more / 2-story / South balcony / Zenshitsuminami direction / Underfloor Storage / The window in the bathroom / TV monitor interphone / Ventilation good / All room 6 tatami mats or more
Event information
Open House (Please visitors to direct local) schedule / Every Saturday, Sunday and public holidays time / 10:00 ~ 17:00 every Saturday and Sunday open house held in! You can preview if you can call any time on weekdays. Please feel free to contact us.
Price
24,980,000 yen
Floor plan
4LDK
Units sold
1 units
Total units
1 units
Land area
98.07 sq m (registration)
Building area
91.9 sq m (registration)
Driveway burden-road
Nothing, West 5.8m width
Completion date
February 2014
Address
Fukuoka Prefecture, Minami-ku, Fukuoka City Nakao 3
Traffic
Nishitetsu "Sarayama Third Street" walk 5 minutes
Contact
Fukuoka home sales (Ltd.) TEL: 0800-808-3990 [Toll free] mobile phone ・ Also available from PHS
Caller ID is not notified
Please contact the "saw SUUMO (Sumo)"
If it does not lead, If the real estate company
Building coverage, floor area ratio
60% ・ 200%
Time residents
Consultation
Land of the right form
Ownership
Structure and method of construction
Wooden 2-story (framing method)
Use district
One dwelling
Overview and notices
Facilities: Public Water Supply, This sewage, Building confirmation number: No. KJH13-02761-1, Parking: car space
Company profile
<Marketing alliance (agency)> Governor of Fukuoka Prefecture (1) the first 017,392 No. Fukuoka home sales (Ltd.) Yubinbango811-1356 Fukuoka Prefecture, Minami-ku, Fukuoka City flower garden 3-39-26


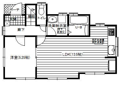
Floor plan

Floor plan. 24,980,000 yen, 4LDK, Land area 98.07 sq m , Building area 91.9 sq m 1F
24,980,000 yen, 4LDK, Land area 98.07 sq m , Building area 91.9 sq m 1F

Floor plan. 24,980,000 yen, 4LDK, Land area 98.07 sq m , Building area 91.9 sq m 2F
24,980,000 yen, 4LDK, Land area 98.07 sq m , Building area 91.9 sq m 2F

Local appearance photo

Local appearance photo. Local (12 May 2013) Shooting
Local (12 May 2013) Shooting

Local appearance photo. Local (12 May 2013) Shooting
Local (12 May 2013) Shooting

Local photos, including front road

Local photos, including front road. Local (12 May 2013) Shooting
Local (12 May 2013) Shooting



Location