New Homes » Kyushu » Fukuoka Prefecture » Minami-ku


Fukuoka Prefecture, Minami-ku, Fukuoka City
Nishitetsu Tenjin Omuta Line "Takamiya" bus 18 minutes Yakatabara walk 2 minutes
Nishitetsu Tenjin Omuta Line "Takamiya" station bus 18 minutes, Nishitetsu "Yakatabara" stop a 2-minute walk! 3-neck gas stove, All pair glass, Eco Jaws fully equipped! Please feel free to contact us.
■ Newly built single-family information of Fukuoka "Ios match! Search in "! ! New listing, Daily updating ■ Your choice of property and mortgage consultation, etc., Please feel free to contact us.
Features pickup
Corresponding to the flat-35S / Parking two Allowed / Energy-saving water heaters / Super close / System kitchen / Yang per good / All room storage / LDK15 tatami mats or more / Japanese-style room / Washbasin with shower / Face-to-face kitchen / Barrier-free / Toilet 2 places / Bathroom 1 tsubo or more / 2-story / South balcony / Double-glazing / Otobasu / Warm water washing toilet seat / Nantei / Underfloor Storage / The window in the bathroom / TV monitor interphone / Ventilation good / Water filter / City gas
Price
24,800,000 yen
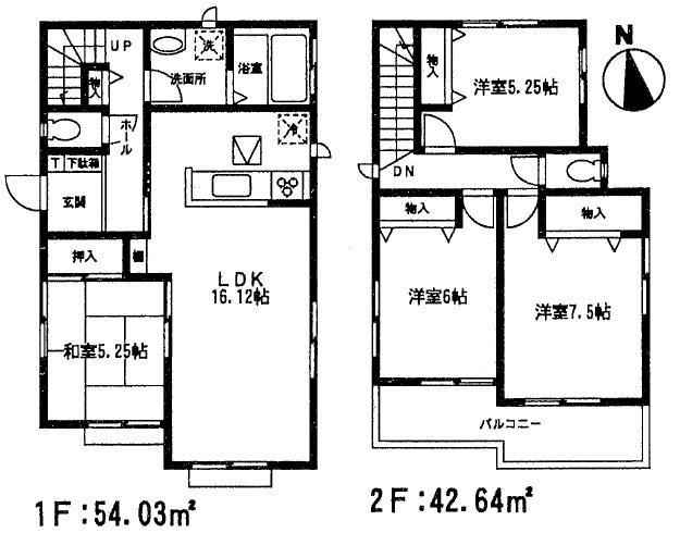
Floor plan
4LDK
Units sold
1 units
Total units
2 units
Land area
150 sq m (measured)
Building area
96.67 sq m (measured)
Driveway burden-road
Nothing, Southwest 4m width
Completion date
October 2013
Address
Fukuoka Prefecture, Minami-ku, Fukuoka City flower garden 3
Traffic
Nishitetsu Tenjin Omuta Line "Takamiya" bus 18 minutes Yakatabara walk 2 minutes
Nishitetsu Tenjin Omuta Line "Bridge" walk 56 minutes
JR Hakata-Minami Line "Hakataminami" walk 55 minutes
Related links
[Related Sites of this company]
Person in charge
[Regarding this property.] ■ New construction Ichinohe Ken if to Ios Corporation. Please feel free to contact us at any time because it is possible guidance. ☆ Free dial 0120-983-103 ☆
Contact
TEL: 0800-603-8388 [Toll free] mobile phone ・ Also available from PHS
Caller ID is not notified
Please contact the "saw SUUMO (Sumo)"
If it does not lead, If the real estate company
Building coverage, floor area ratio
60% ・ 160%
Time residents
Immediate available
Land of the right form
Ownership
Structure and method of construction
Wooden 2-story
Use district
One dwelling
Other limitations
Law Article 22 district, Second kind 20m height district, Aviation Law
Overview and notices
Facilities: Public Water Supply, This sewage, City gas, Building confirmation number: No. KJH-13-02193-1, Parking: car space
Company profile
<Mediation> Governor of Fukuoka Prefecture (2) No. 016040 (Corporation), Fukuoka Prefecture Building Lots and Buildings Transaction Business Association (One company) Kyushu Real Estate Fair Trade Council member (Ltd.) Ios Corporation Yubinbango810-0044 Fukuoka Chuo-ku, Fukuoka City Ropponmatsu 4-11-25 CROSSING2100-3 floor


Local appearance photo

Local appearance photo. Car space 2 cars!
Car space 2 cars!

Floor plan

Floor plan. 24,800,000 yen, 4LDK, Land area 150 sq m , Building area 96.67 sq m Floor.
24,800,000 yen, 4LDK, Land area 150 sq m , Building area 96.67 sq m Floor.

Kitchen

Kitchen. System kitchen!
System kitchen!

Toilet

Toilet. 1 ・ Both the second floor with a bidet function!
1 ・ Both the second floor with a bidet function!

Kitchen

Kitchen. 3-neck gas stove!
3-neck gas stove!

Living

Living. Living (November 2013) Shooting
Living (November 2013) Shooting

Living. Living 16.12 Pledge, Facing south!
Living 16.12 Pledge, Facing south!

Bathroom

Bathroom. 1 pyeong type bathroom! There is a convenient window to ventilation!
1 pyeong type bathroom! There is a convenient window to ventilation!

Wash basin, toilet

Wash basin, toilet. Washbasin with shower!
Washbasin with shower!

Non-living room

Non-living room. Japanese-style room 5.25 quires.
Japanese-style room 5.25 quires.

Non-living room. 2 Kaiyoshitsu! There all rooms housed! !
2 Kaiyoshitsu! There all rooms housed! !

Non-living room. 2 Kaiyoshitsu! Sunny! !
2 Kaiyoshitsu! Sunny! !

Other

Other. Compartment figure
Compartment figure

Local appearance photo

Local appearance photo. Indoor (11 May 2013) Shooting
Indoor (11 May 2013) Shooting

Non-living room

Non-living room. 2 Kaiyoshitsu (November 2013) Shooting
2 Kaiyoshitsu (November 2013) Shooting

Entrance

Entrance. Entrance. Plenty of storage! !
Entrance. Plenty of storage! !

Balcony

Balcony. South-facing balcony!
South-facing balcony!

Other introspection

Other introspection. Entrance next to storage! !
Entrance next to storage! !



Location