New Homes » Kyushu » Fukuoka Prefecture » Minami-ku
 
| | Fukuoka Prefecture, Minami-ku, Fukuoka City 福岡県福岡市南区 |
| JR Hakata-Minami Line "Hakataminami" walk 22 minutes JR博多南線「博多南」歩22分 |
| Healthy home friendly family, It was completed. Natural eco specification, Good of ready-built house! Gentle warmth of floor heating (LDK), please feel all means 家族にやさしい健康な家、完成しました。ナチュラルエコ仕様、こだわりの建売住宅!やさしいぬくもりの床暖房(LDK)ぜひご体感ください |
| ■ Floor heating (LDK) ・ Bathroom heating dryer ・ Water heater ECOWILL equipped to generate electricity! ■ Wood utilization point 300,000 points (300,000 yen worth) target! ■ Directing the atmosphere room walls are matte texture of natural mineral diatomite natural materials of natural materials. Humidity conditioning ・ Odor ・ Formaldehyde adsorption ・ Disassembly ・ deodorize ・ antibacterial ・ It is a natural mineral wall material with a far-infrared radiation effect. ■ all rooms, Thermal barrier High thermal insulation LOW-E double glazing (thermos II) adopted! ■ environment ・ Adopt health-friendly insulation material ■ All rooms with lighting equipment fashionable indirect lighting entrance of (dimming toning of lighting fixtures of high-grade in LDK) ■ Cabinet space stone paste is showcases with a jerk a sense of natural ■ There is well water is out of the faucet for garden watering and car wash. ■床暖房(LDK)・浴室暖房乾燥機・発電する給湯器エコウィル搭載!■木材利用ポイント30万ポイント(30万円相当)対象!■居室の壁は自然素材の天然ミネラル珪藻土自然素材のマットな質感が雰囲気を演出。調湿・ニオイ・ホルムアルデヒド吸着・分解・消臭・抗菌・遠赤外線効果のある天然ミネラル壁材です。■全室、遮熱高断熱LOW-E複層ガラス(サーモスII)採用!■環境・健康にやさしい断熱材採用■全室照明器具付(LDKにはハイグレードの調光調色の照明器具)玄関の間接照明がオシャレ■石貼りの飾り棚スペースがナチュラル感をグッとひきたたせます■庭の水やりや洗車用に外の水栓には井戸水あります。 |
Features pickup 特徴ピックアップ | | Pre-ground survey / Parking three or more possible / Immediate Available / LDK18 tatami mats or more / Energy-saving water heaters / See the mountain / Super close / It is close to the city / System kitchen / Bathroom Dryer / Yang per good / Flat to the station / A quiet residential area / Japanese-style room / Shaping land / Washbasin with shower / Face-to-face kitchen / Toilet 2 places / Natural materials / Bathroom 1 tsubo or more / 2-story / Double-glazing / Otobasu / Warm water washing toilet seat / Underfloor Storage / The window in the bathroom / TV monitor interphone / Ventilation good / Southwestward / Dish washing dryer / Water filter / City gas / Flat terrain / Floor heating 地盤調査済 /駐車3台以上可 /即入居可 /LDK18畳以上 /省エネ給湯器 /山が見える /スーパーが近い /市街地が近い /システムキッチン /浴室乾燥機 /陽当り良好 /駅まで平坦 /閑静な住宅地 /和室 /整形地 /シャワー付洗面台 /対面式キッチン /トイレ2ヶ所 /自然素材 /浴室1坪以上 /2階建 /複層ガラス /オートバス /温水洗浄便座 /床下収納 /浴室に窓 /TVモニタ付インターホン /通風良好 /南西向き /食器洗乾燥機 /浄水器 /都市ガス /平坦地 /床暖房 | Event information イベント情報 | | Open House (Please visitors to direct local) schedule / January 4 (Saturday) ・ January 5 (Sunday) time / 10:00 ~ 17:00 オープンハウス(直接現地へご来場ください)日程/1月4日(土曜日)・1月5日(日曜日)時間/10:00 ~ 17:00 | Property name 物件名 | | Natural Eco House Yanase II1 No. land ナチュラルエコハウス柳瀬II1号地 | Price 価格 | | 27,200,000 yen 2720万円 | Floor plan 間取り | | 4LDK 4LDK | Units sold 販売戸数 | | 1 units 1戸 | Land area 土地面積 | | 139.74 sq m (42.27 tsubo) (measured) 139.74m2(42.27坪)(実測) | Building area 建物面積 | | 105.16 sq m (31.81 square meters) 105.16m2(31.81坪) | Driveway burden-road 私道負担・道路 | | Nothing, Southeast 4m width (contact the road width 7.3m) 無、南東4m幅(接道幅7.3m) | Completion date 完成時期(築年月) | | September 2013 2013年9月 | Address 住所 | | Fukuoka Prefecture, Minami-ku, Fukuoka City Yanase 2-10-5 (residence indication 13th No. 9-1) 福岡県福岡市南区柳瀬2-10-5(住居表示13番9-1号) | Traffic 交通 | | JR Hakata-Minami Line "Hakataminami" walk 22 minutes Nishitetsu "Yanaga chome" walk 5 minutes JR博多南線「博多南」歩22分 西鉄バス「弥永一丁目」歩5分 | Related links 関連リンク | | [Related Sites of this company] 【この会社の関連サイト】 | Person in charge 担当者より | | Rep Oshiro HiroshiMasashi 担当者大城寛雅 | Contact お問い合せ先 | | Fujian housing (Ltd.) TEL: 092-593-7000 Please inquire as "saw SUUMO (Sumo)" 福建住宅(株)TEL:092-593-7000「SUUMO(スーモ)を見た」と問い合わせください | Building coverage, floor area ratio 建ぺい率・容積率 | | 60% ・ Hundred percent 60%・100% | Time residents 入居時期 | | Immediate available 即入居可 | Land of the right form 土地の権利形態 | | Ownership 所有権 | Structure and method of construction 構造・工法 | | Wooden 2-story (framing method) 木造2階建(軸組工法) | Construction 施工 | | Fujian Residential Co., Ltd. 福建住宅(株) | Use district 用途地域 | | One middle and high 1種中高 | Other limitations その他制限事項 | | Regulations have by the Aviation Law 航空法による規制有 | Overview and notices その他概要・特記事項 | | Contact: Oshiro HiroshiMasashi, Facilities: Public Water Supply, This sewage, City gas, Parking: car space 担当者:大城寛雅、設備:公営水道、本下水、都市ガス、駐車場:カースペース | Company profile 会社概要 | | <Seller> Governor of Fukuoka Prefecture (11) Article 005415 No. Fujian Housing Corporation Yubinbango811-1313 Fukuoka Prefecture, Minami-ku, Fukuoka City pressed 5-12-1 <売主>福岡県知事(11)第005415号福建住宅(株)〒811-1313 福岡県福岡市南区曰佐5-12-1 |
Livingリビング  Indoor (11 May 2013) shooting all rooms with lighting fixture (light toning lighting equipment of control of the high-grade in LDK)
室内(2013年11月)撮影全室照明器具付(LDKにはハイグレードの調光調色の照明器具)
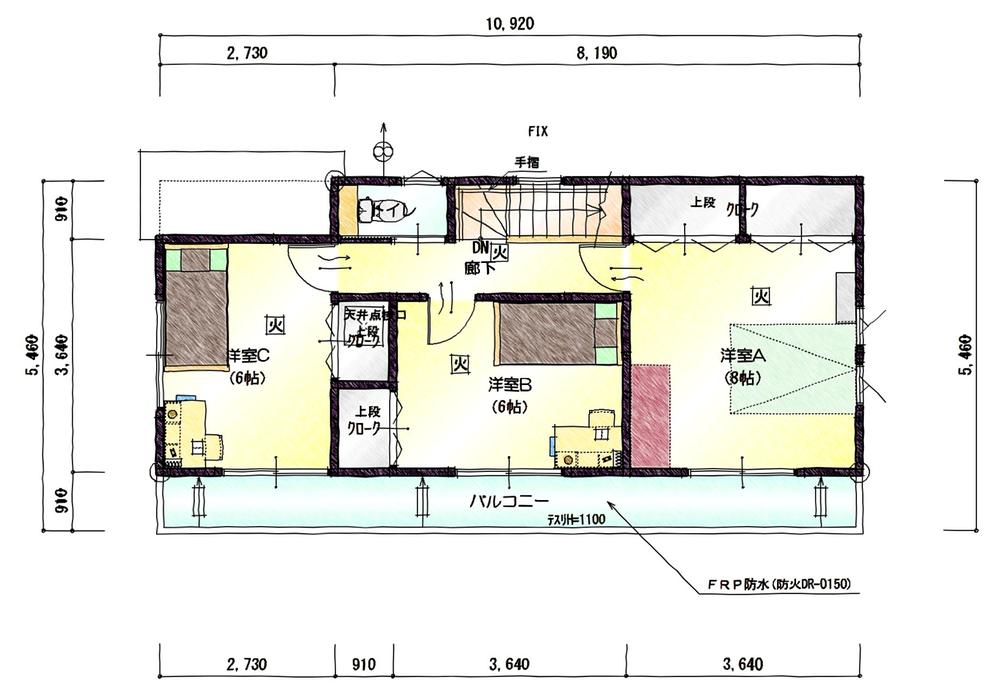
Floor plan間取り図  27,200,000 yen, 4LDK, Land area 139.74 sq m , Building area 105.16 sq m 1 floor Floor Plan LDK18 Pledge + Japanese-style room 4.5 Pledge! Spacious space
2720万円、4LDK、土地面積139.74m2、建物面積105.16m2 1階間取り図 LDK18帖+和室4.5帖!広々空間
 27,200,000 yen, 4LDK, Land area 139.74 sq m , Building area 105.16 sq m 2 floor Floor Plan Also it has led to a balcony from any room. Also view the Sefuri mountains visible in the distance ◎
2720万円、4LDK、土地面積139.74m2、建物面積105.16m2 2階間取り図 どの居室からもバルコニーへつながっています。背振山が遠くに見える眺望も◎
Local appearance photo現地外観写真  Local (September 2013) Shooting
現地(2013年9月)撮影
Livingリビング  Indoor (11 May 2013) Shooting Floor heating (LDK) equipment All Shitsufuku layer ・ LOW-E glass adoption!
室内(2013年11月)撮影 床暖房(LDK)装備 全室複層・LOW-Eガラス採用!
Bathroom浴室  Indoor (September 2013) shooting bathroom heating dryer equipment! Year-round comfort! All year round, ventilation ・ Dry summer cool breeze. Winter Heating. Kururin poi drainage port, Cleaning Easy
室内(2013年9月)撮影浴室暖房乾燥機装備!年中快適!一年中、換気・乾燥夏は涼風。冬は暖房。くるりんポイ排水口、お掃除ラクラク
Kitchenキッチン  Indoor (September 2013) shooting dishwasher & water purifier integrated faucet & feet slide drawer and glass top stove
室内(2013年9月)撮影食洗機&浄水器一体水栓&足元スライド引出し&ガラストップコンロ
Non-living roomリビング以外の居室  Wall-to-wall depth in the main bedroom 8 pledge also satisfactory cloak.
主寝室8帖には壁一面奥行きも満足なクローク。
Wash basin, toilet洗面台・洗面所  Indoor (September 2013) vanity eco handle shooting soft curve shape with the size of the one size (energy-saving design) faucet towels and underwear, You can store plenty such as detergent stock up.
室内(2013年9月)撮影やわらかなカーブ形状でワンサイズ上の広さをもつ洗面化粧台エコハンドル(省エネ設計)水栓タオルや下着、買い置きの洗剤などたっぷり収納できます。
Toiletトイレ  Indoor (September 2013) under the photography simple design and cleaning Ease-integrated shower toilet counter has become the storage. Natural mineral diatomaceous earth wall, which is also the deodorizing effect
室内(2013年9月)撮影シンプルなデザイン&お掃除ラクラク一体型シャワートイレカウンターの下は収納になっています。壁は消臭効果もある天然ミネラル珪藻土
Station駅  About 10 minutes by bullet train to Hakata Station than 1600m Hakata-Minami Station to Hakata-Minami Station! Commute ・ Commute ・ Is a useful Hakata-Minami Station to shopping.
博多南駅まで1600m 博多南駅より博多駅まで新幹線で約10分!通勤・通学・ショッピングに便利な博多南駅です。
Otherその他  Is the floor the heating control panel. on / Timer can be set off. When making breakfast, I'm glad because Okeru warm the feet of the kitchen
床暖房のコントロールパネルです。オン/オフのタイマー設定可能です。朝食作る時、キッチンの足元を暖めておけるからうれしいですね
Non-living roomリビング以外の居室  Indoor (2013 9) is a Japanese-style room of shooting LDK More. You can Tokokazari in the alcove to nestled of season, Fun life
室内(2013年9)撮影LDK続きの和室です。床の間に季節のしつらえで床飾りができます、暮らしを楽しく
Supermarketスーパー  Daikyo fresh supermarket crowded with 350m lot of people to value. Sunday morning market is popular
ダイキョーバリューまで350m たくさんの人でにぎわう生鮮スーパー。日曜日の朝市が人気です
Drug storeドラッグストア  Shinseido is conveniently located next to the 350m super Daikyo to pharmacy.
新生堂薬局まで350m スーパーダイキョーの横にあり便利です。
Park公園  Is a park located just off of the 400m super to Yanaga East Park. Spend time with children in the park, As it is to your shopping
弥永東公園まで400m スーパーのすぐそばにある公園です。お子様との時間を公園で過ごし、そのままお買物へ
Location
|