New Homes » Kyushu » Fukuoka Prefecture » Fukutsu


Fukuoka Prefecture Fukutsu
JR Kagoshima Main Line "Fukuma" walk 19 minutes
The natural rich west Fukuma, New town full of light was born. And the coastal zone that is specified in the Genkai National Park, Please look forward to life in is surrounded by scenic natural landscape around Miyajidake shrine area
Yang per good, Land 50 square meters or more, Pre-ground survey, A quiet residential area, Or more before road 6m, LDK18 tatami mats or more, Corresponding to the flat-35S, Year Available, Parking two Allowed, Within 2km to the sea, System kitchen, Bathroom Inui
Local guide map
Local guide map
Features pickup
Corresponding to the flat-35S / Pre-ground survey / Year Available / Parking two Allowed / Land 50 square meters or more / LDK18 tatami mats or more / Within 2km to the sea / System kitchen / Bathroom Dryer / Yang per good / All room storage / Flat to the station / A quiet residential area / Or more before road 6m / Japanese-style room / Shaping land / garden / Washbasin with shower / Face-to-face kitchen / Barrier-free / Toilet 2 places / Bathroom 1 tsubo or more / 2-story / South balcony / Double-glazing / Zenshitsuminami direction / Warm water washing toilet seat / loft / Nantei / Underfloor Storage / The window in the bathroom / TV monitor interphone / Ventilation good / IH cooking heater / Dish washing dryer / Walk-in closet / Or more ceiling height 2.5m / Water filter / Living stairs / All-electric / Readjustment land within
Event information
Local tours (please visitors to direct local) schedule / Every Saturday, Sunday and public holidays time / 9:00 ~ It is held 18:00 Machibiraki! Now available for all sections preview. I'd love to, Please try to experience at the local. Weekdays, We have held a tour. If you can contact us in advance, You can guide you smoothly.
Property name
Yuniekuseran Nishifuku between II sneak preview In session!!
Price
25,700,000 yen ~ 26,900,000 yen
Floor plan
4LDK
Units sold
8 units
Total units
11 units
Land area
202.08 sq m ~ 213.1 sq m (61.12 tsubo ~ 64.46 tsubo) (measured)
Building area
103.5 sq m ~ 110.96 sq m (31.30 tsubo ~ 33.56 tsubo) (measured)
Driveway burden-road
Road width: 6m, Asphaltic pavement
Completion date
2013 early December
Address
Fukuoka Prefecture Fukutsu Nishifuku between 4-4560-49
Traffic
JR Kagoshima Main Line "Fukuma" walk 19 minutes
Nishitetsu "Fukuma small entrance" walk 4 minutes
Related links
[Related Sites of this company]
Person in charge
[Regarding this property.] Fukuma elementary school a 4-minute walk, A quiet residential area of ​​order, I'd love to, Please your experience on site.
Contact
TEL: 0800-602-2149 [Toll free] mobile phone ・ Also available from PHS
Caller ID is not notified
Please contact the "saw SUUMO (Sumo)"
If it does not lead, If the real estate company
Most price range
26 million yen (5 units)
Building coverage, floor area ratio
Kenpei rate: 60%, Volume ratio: 200%
Time residents
Immediate available
Land of the right form
Ownership
Structure and method of construction
Wooden 2-story (framing method)
Construction
First Home, Inc.
Use district
One dwelling
Land category
Residential land
Overview and notices
Building confirmation number: No. H24 confirmation architecture Fukuzumi cell this issue 02401
Company profile
<Seller> Governor of Fukuoka Prefecture (1) first home (Ltd.) Fukuoka sales office Yubinbango812-0007 Fukuoka, Hakata-ku, Fukuoka City Higashihie 2-17-15 first floor No. 016465


Living

Living. 8 Gochi a living airy spacious is living !!
8 Gochi a living airy spacious is living !!

Sale already cityscape photo

Sale already cityscape photo. It is a beautiful cityscape
It is a beautiful cityscape

Living

Living. 9 Gochi living
9 Gochi living

Living. No. 9 areas Large face-to-face kitchen
No. 9 areas Large face-to-face kitchen

Living. 7 Gochi is living
7 Gochi is living

Receipt

Receipt. No. 9 areas Loft is housed
No. 9 areas Loft is housed

Local appearance photo

Local appearance photo.  [No. 11 destinations appearance] House with excellent housework flow line housework get on
[No. 11 destinations appearance] House with excellent housework flow line housework get on

Local appearance photo.  [No. 7 land appearance] A house with a bright and airy atrium
[No. 7 land appearance] A house with a bright and airy atrium

Parking lot

Parking lot. 7 Gochi Spacious parking lot
7 Gochi Spacious parking lot

Entrance

Entrance. 11 is No. land entrance approach
11 is No. land entrance approach

Bathroom

Bathroom. TOTO product ☆ Karari floor ☆ Thermos bathtub ☆ Bathroom heating dryer
TOTO product ☆ Karari floor ☆ Thermos bathtub ☆ Bathroom heating dryer

Kitchen

Kitchen. Convenient !! I can washing with Takara Standard Products dishwashers
Convenient !! I can washing with Takara Standard Products dishwashers

Wash basin, toilet

Wash basin, toilet. Takara product
Takara product

Local appearance photo

Local appearance photo. No. 9 area appearance
No. 9 area appearance

Local appearance photo. No. 8 land appearance
No. 8 land appearance

Entrance

Entrance. Shoes in cloak of entrance storage
Shoes in cloak of entrance storage

Local guide map
Local guide map

Access view
Access view

Non-living room

Non-living room. No. 7 land
No. 7 land

Floor plan

Floor plan. 8 Gochi a living airy spacious is living !!
8 Gochi a living airy spacious is living !!

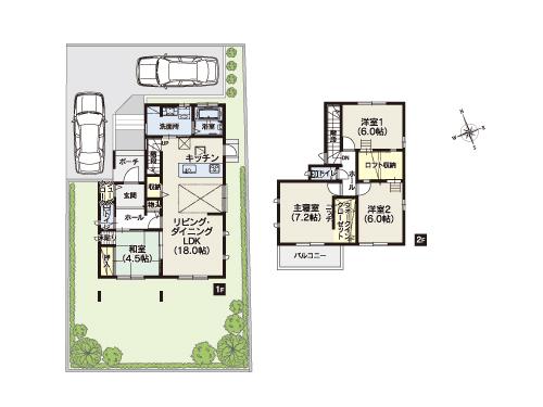
Floor plan. (No. 11 locations), Price 26.7 million yen, 4LDK, Land area 202.1 sq m , Building area 104.33 sq m
(No. 11 locations), Price 26.7 million yen, 4LDK, Land area 202.1 sq m , Building area 104.33 sq m

Floor plan. 8 Gochi a living airy spacious is living !!
8 Gochi a living airy spacious is living !!

Floor plan. 8 Gochi a living airy spacious is living !!
8 Gochi a living airy spacious is living !!

Floor plan. 8 Gochi a living airy spacious is living !!
8 Gochi a living airy spacious is living !!

Floor plan. 8 Gochi a living airy spacious is living !!
8 Gochi a living airy spacious is living !!

Floor plan. 8 Gochi a living airy spacious is living !!
8 Gochi a living airy spacious is living !!

Floor plan. 8 Gochi a living airy spacious is living !!
8 Gochi a living airy spacious is living !!

Junior high school

Junior high school. Fukutsu stand Fukuma until junior high school 1584m
Fukutsu stand Fukuma until junior high school 1584m

Primary school

Primary school. Fukutsu stand Fukuma to elementary school 443m
Fukutsu stand Fukuma to elementary school 443m

Other Equipment

Other Equipment. With a thermal barrier thermal insulation of high Low-E double-glazing of TOSTEM, Comfortable to keep the room temperature, Reduce the condensation, The year comfortably spend.
With a thermal barrier thermal insulation of high Low-E double-glazing of TOSTEM, Comfortable to keep the room temperature, Reduce the condensation, The year comfortably spend.

Other Equipment. Takara Standard "Ofelia" is, It stuck to the ease of use and storage. Clean up Ease rear also with dishwasher.
Takara Standard "Ofelia" is, It stuck to the ease of use and storage. Clean up Ease rear also with dishwasher.

Other Equipment. Karari floor ・ Thermos bathtub ・ Water-saving shower ・ Bathroom heating dryer ・ That is a system bus high-feature-packed, such as clean door.
Karari floor ・ Thermos bathtub ・ Water-saving shower ・ Bathroom heating dryer ・ That is a system bus high-feature-packed, such as clean door.

Local guide map
Local guide map

Other Equipment. Sefi on Detect ・ Tornado cleaning ・ Borderless shape ・ deodorize ・ Toilet is a high-performance full of comfort features, such as antibacterial toilet seat.
Sefi on Detect ・ Tornado cleaning ・ Borderless shape ・ deodorize ・ Toilet is a high-performance full of comfort features, such as antibacterial toilet seat.

The entire compartment Figure
The entire compartment Figure



Location