New Homes » Kyushu » Fukuoka Prefecture » Kasuya-gun Kasuya
 
| | Kasuya-gun, Fukuoka Kasuya 福岡県糟屋郡粕屋町 |
| JR sasaguri line "Haramachi" walk 14 minutes JR篠栗線「原町」歩14分 |
| Model is room preview Allowed (^ - ^) / . Please feel free to contact us. Seismic fit, LDK15 tatami mats or more, Land 50 square meters or more, Or more before road 6m, Face-to-face kitchen, Pre-ground survey, Parking two Allowed, System kitchen モデルルーム内覧可です(^-^)/。お気軽にお問い合わせ下さい。耐震適合、LDK15畳以上、土地50坪以上、前道6m以上、対面式キッチン、地盤調査済、駐車2台可、システムキッチ |
| ◎ Payment example 27,800,000 yen (13 Building) Expenses of the property is about 1.7 million yen ~ It will be 2.3 million yen. (Commission, Registration costs, Property tax, Curtain rail, Screen door, antenna, banking fee, Kenmin mutual aid fire insurance at subscription time, Stamp fee, Including the group credit life insurance premiums) I preferential interest rate, If you expenses preferential treatment is received (expenses about 1.7 million yen, For more information, please contact us) (1) loan amount 29.5 million yen (preferential interest rate 0.975%, If the repayment period 35 years) ~ ~ Monthly 83000 yen ~ ~ II Preferential Interest Rate, Expenses If you preferential treatment is not received (various cost about 2.3 million yen, For more information, please contact us) (2) loan amount 30.1 million yen (preferential interest rate 1.325%, If the repayment period 35 years) ~ ~ Monthly 89,700 yen ~ ~ First, not please Contact Us ◎お支払例 2780万円(13号棟) 本物件の諸費用は約170万円 ~ 230万円になります。(手数料、登記費用、固定資産税、カーテンレール、網戸、アンテナ、銀行手数料、県民共済火災保険加入時、印紙代、団体信用生命保険料を含む)I金利優遇、諸費用優遇が受けれる方(諸費用約170万円、詳しくはお問い合わせ下さい)(1)融資金額2950万円(金利優遇0.975%、返済期間35年の場合) ~ ~ 月々83000円 ~ ~ II金利優遇、諸費用優遇が受けれない方(諸費用約230万円、詳しくはお問い合わせ下さい)(2)融資金額3010万円(金利優遇1.325%、返済期間35年の場合) ~ ~ 月々89700円 ~ ~ まずはお問い合わせ下さいませ |
Features pickup 特徴ピックアップ | | Pre-ground survey / Seismic fit / Parking two Allowed / Land 50 square meters or more / System kitchen / All room storage / LDK15 tatami mats or more / Or more before road 6m / Japanese-style room / garden / Washbasin with shower / Face-to-face kitchen / Bathroom 1 tsubo or more / 2-story / Warm water washing toilet seat / Underfloor Storage / The window in the bathroom / TV monitor interphone / Ventilation good 地盤調査済 /耐震適合 /駐車2台可 /土地50坪以上 /システムキッチン /全居室収納 /LDK15畳以上 /前道6m以上 /和室 /庭 /シャワー付洗面台 /対面式キッチン /浴室1坪以上 /2階建 /温水洗浄便座 /床下収納 /浴室に窓 /TVモニタ付インターホン /通風良好 | Event information イベント情報 | | (Please be sure to ask in advance) (事前に必ずお問い合わせください) | Price 価格 | | 27,800,000 yen 2780万円 | Floor plan 間取り | | 4LDK 4LDK | Units sold 販売戸数 | | 1 units 1戸 | Total units 総戸数 | | 13 houses 13戸 | Land area 土地面積 | | 166.11 sq m (50.24 square meters) 166.11m2(50.24坪) | Building area 建物面積 | | 101 sq m (30.55 square meters) 101m2(30.55坪) | Driveway burden-road 私道負担・道路 | | Nothing, West 6m width 無、西6m幅 | Completion date 完成時期(築年月) | | 5 months after the contract 契約後5ヶ月 | Address 住所 | | Kasuya-gun, Fukuoka Kasuya Oaza Nakahara 福岡県糟屋郡粕屋町大字仲原 | Traffic 交通 | | JR sasaguri line "Haramachi" walk 14 minutes Nishitetsu "Ogibashi" walk 4 minutes JR篠栗線「原町」歩14分 西鉄バス「扇橋」歩4分 | Related links 関連リンク | | [Related Sites of this company] 【この会社の関連サイト】 | Person in charge 担当者より | | Rep Kuroki Hidetoshi Age: 30 Daigyokai Experience: 7 years everyone Nice to meet you!! My name is of buying and selling in charge Kuroki. With the feeling that became your family, Merit and we will of course disadvantages also to the convincing Ieerabi by to convey a clear. 担当者黒木 秀俊年齢:30代業界経験:7年みなさん はじめまして!! 売買担当の黒木と申します。お客様の家族になった気持ちで、メリットはもちろんデメリットもハッキリとお伝えすることにより納得いく家選びをさせて頂きます。 | Contact お問い合せ先 | | TEL: 0800-603-3195 [Toll free] mobile phone ・ Also available from PHS Caller ID is not notified Please contact the "saw SUUMO (Sumo)" If it does not lead, If the real estate company TEL:0800-603-3195【通話料無料】携帯電話・PHSからもご利用いただけます 発信者番号は通知されません 「SUUMO(スーモ)を見た」と問い合わせください つながらない方、不動産会社の方は
| Building coverage, floor area ratio 建ぺい率・容積率 | | 60% ・ 200% 60%・200% | Time residents 入居時期 | | 6 months after the contract 契約後6ヶ月 | Land of the right form 土地の権利形態 | | Ownership 所有権 | Structure and method of construction 構造・工法 | | Wooden 2-story 木造2階建 | Use district 用途地域 | | Semi-industrial 準工業 | Overview and notices その他概要・特記事項 | | Contact: Kuroki Hidetoshi, Facilities: Public Water Supply, Individual LPG, Building confirmation number: H25 Fukuzumi Se this 11111, Parking: car space 担当者:黒木 秀俊、設備:公営水道、個別LPG、建築確認番号:H25福住セ本11111、駐車場:カースペース | Company profile 会社概要 | | <Mediation> Governor of Fukuoka Prefecture (3) No. 014300 (Corporation), Fukuoka Prefecture Building Lots and Buildings Transaction Business Association (One company) Kyushu Real Estate Fair Trade Council member (with) Green Estate Yubinbango811-0201 Fukuoka Prefecture, Higashi-ku, Fukuoka Mitoma 5-7-35 <仲介>福岡県知事(3)第014300号(公社)福岡県宅地建物取引業協会会員 (一社)九州不動産公正取引協議会加盟(有)グリーンエステート〒811-0201 福岡県福岡市東区三苫5-7-35 |
Local appearance photo現地外観写真  ※ The photograph is a property of the same manufacturer and construction.
※写真は同一メーカー施工の物件です。
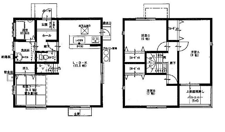
Floor plan間取り図  27,800,000 yen, 4LDK, Land area 166.11 sq m , Building area 101 sq m floor plan
2780万円、4LDK、土地面積166.11m2、建物面積101m2 間取り
Livingリビング  ※ The photograph is a property of the same manufacturer and construction.
※写真は同一メーカー施工の物件です。
Same specifications photos (appearance)同仕様写真(外観)  (The photograph is a model room)
(写真はモデルルームです)
 Same specifications photos (living)
同仕様写真(リビング)
Bathroom浴室  ※ The photograph is a property of the same manufacturer and construction.
※写真は同一メーカー施工の物件です。
Kitchenキッチン  ※ The photograph is a property of the same manufacturer and construction.
※写真は同一メーカー施工の物件です。
Entrance玄関  Same specifications Photos
同仕様写真
Wash basin, toilet洗面台・洗面所  Same specifications Photos
同仕様写真
Receipt収納  Same specifications Photos
同仕様写真
Balconyバルコニー  Same specifications Photos
同仕様写真
Other introspectionその他内観  ※ The photograph is a property of the same manufacturer and construction.
※写真は同一メーカー施工の物件です。
 Model house photo
モデルハウス写真
Otherその他  Same specifications Photos
同仕様写真
Entrance玄関  Same specifications Photos
同仕様写真
 Same specifications photos (Other introspection)
同仕様写真(その他内観)
Model house photoモデルハウス写真  Model house
モデルハウス
Otherその他  Same specifications Photos
同仕様写真
 Same specifications photos (Other introspection)
同仕様写真(その他内観)
 Same specifications Photos
同仕様写真
Location
|