New Homes » Kyushu » Fukuoka Prefecture » Kitakyushu Yahatanishi-ku


Kitakyushu, Fukuoka Prefecture Yahatanishi-ku
JR Chikuhō Main Line "two islands" walk 13 minutes
☆ House with Misawa Homes construction of "warehouse" ☆ Vibration Control Panel "MGEO" specification
Yahata Driving School ・ Honjo athletics stadium immediately side ion shopping centers and Fadi ・ Convenient nearby, such as fresh 8
Features pickup
Vibration Control ・ Seismic isolation ・ Earthquake resistant / Parking two Allowed / 2 along the line more accessible / Land 50 square meters or more / LDK18 tatami mats or more / Energy-saving water heaters / Super close / System kitchen / Yang per good / All room storage / Japanese-style room / Washbasin with shower / Face-to-face kitchen / Toilet 2 places / Bathroom 1 tsubo or more / 2-story / Otobasu / Warm water washing toilet seat / The window in the bathroom / TV monitor interphone / Dish washing dryer / All room 6 tatami mats or more / Living stairs / City gas
Price
38,800,000 yen
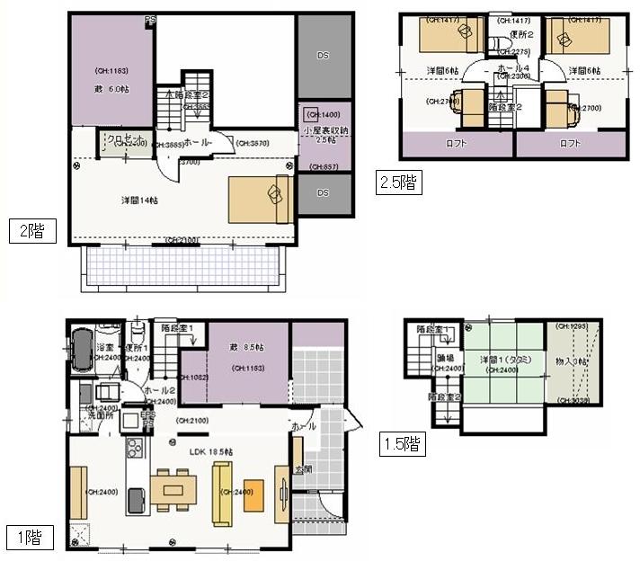
Floor plan
5LDK + 2S (storeroom)
Units sold
1 units
Land area
194.54 sq m (58.84 square meters)
Building area
115.92 sq m (35.06 square meters)
Driveway burden-road
Nothing, East 6m width
Completion date
October 2012
Address
Kitakyushu, Fukuoka Prefecture Yahatanishi-ku adjournment 3
Traffic
JR Chikuhō Main Line "two islands" walk 13 minutes
Municipal bus "adjournment" walk 4 minutes JR Kagoshima Main Line "Jin'noharu" walk 42 minutes
Related links
[Related Sites of this company]
Person in charge
Person in charge of real-estate and building Kamisato Seiichi Age: 40 Daigyokai Experience: 8 years Kokurakita Ku centered on the familiar with Minami-ku, and Kanda district is strength. As searchable your desired property, We will carry out a rapid and corresponding with a responsibility. Thank you.
Contact
TEL: 0800-603-6239 [Toll free] mobile phone ・ Also available from PHS
Caller ID is not notified
Please contact the "saw SUUMO (Sumo)"
If it does not lead, If the real estate company
Building coverage, floor area ratio
60% ・ 200%
Time residents
Immediate available
Land of the right form
Ownership
Structure and method of construction
Wooden 2-story
Construction
Misawa Homes Kyushu Co., Ltd.
Use district
One dwelling
Overview and notices
Contact: Kamisato Seiichi, Facilities: Public Water Supply, This sewage, City gas, Parking: car space
Company profile
<Mediation> Governor of Fukuoka Prefecture (2) No. 015214 (Corporation) All Japan Real Estate Association (One company) Kyushu Real Estate Fair Trade Council member Maruichi real estate sales (with) Yubinbango802-0974 Kitakyushu, Fukuoka Prefecture Kokuraminami District Tokuriki 2-5-1


Local appearance photo
Local appearance photo

Floor plan

Floor plan. 38,800,000 yen, 5LDK + 2S (storeroom), Land area 194.54 sq m , Building area 115.92 sq m
38,800,000 yen, 5LDK + 2S (storeroom), Land area 194.54 sq m , Building area 115.92 sq m

Living
Living

Living
Living

Bathroom
Bathroom

Kitchen
Kitchen

Wash basin, toilet
Wash basin, toilet

Receipt
Receipt

Toilet
Toilet

Parking lot
Parking lot

Other introspection
Other introspection

View photos from the dwelling unit
View photos from the dwelling unit

Living
Living

Receipt
Receipt

Other introspection
Other introspection

View photos from the dwelling unit
View photos from the dwelling unit

Receipt
Receipt

Other introspection
Other introspection

Other introspection
Other introspection



Location