New Homes » Kyushu » Fukuoka Prefecture » Kitakyushu Yahatanishi-ku
 
| | Kitakyushu, Fukuoka Prefecture Yahatanishi-ku 福岡県北九州市八幡西区 |
| Chikuho electric railway "Sangamori" walk 22 minutes 筑豊電気鉄道「三ヶ森」歩22分 |
| All 19 compartments! Close to supermarkets at 4, Convenient quiet street in shopping! 全19区画!近隣にスーパーが4件で、買い物に便利な閑静な街! |
| ● the entire block is total design, Streets with a high-quality atmosphere ・ Wrap the outer wall of every house in the color of the earth color system, Balance the coordination of the streets the entire design. ● a strong town in asset formation, To reduce the loss of one household one units of assets ・ By forming a high-quality streetscape, It enhances the needs of the people that want to live there. ・ By applying a low finish of the maintenance costs, such as exterior wall siding, It reduces the external deterioration to a minimum. ●ブロック全体がトータルデザインされ、高質な雰囲気をもつ街並み・すべての家の外壁をアースカラー系のカラーで包み、街並み全体のデザインの協調性をはかります。●資産形成につよい街とし、一戸一戸の資産の目減りを少なくする・高質な街並みを形成することにより、そこに住みたいという人々のニーズを高めます。・外壁サイディングなどメンテコストの少ない仕上げを施すことにより、外部の劣化を最小限に抑えます。 |
Local guide map 現地案内図 | | Local guide map 現地案内図 | Features pickup 特徴ピックアップ | | Year Available / Parking two Allowed / Immediate Available / Land 50 square meters or more / LDK18 tatami mats or more / See the mountain / Super close / Facing south / System kitchen / Bathroom Dryer / Yang per good / Around traffic fewer / Corner lot / garden / Toilet 2 places / Bathroom 1 tsubo or more / 2-story / Double-glazing / Warm water washing toilet seat / The window in the bathroom / Ventilation good / Dish washing dryer / Walk-in closet / Maintained sidewalk / Development subdivision in 年内入居可 /駐車2台可 /即入居可 /土地50坪以上 /LDK18畳以上 /山が見える /スーパーが近い /南向き /システムキッチン /浴室乾燥機 /陽当り良好 /周辺交通量少なめ /角地 /庭 /トイレ2ヶ所 /浴室1坪以上 /2階建 /複層ガラス /温水洗浄便座 /浴室に窓 /通風良好 /食器洗乾燥機 /ウォークインクロゼット /整備された歩道 /開発分譲地内 | Event information イベント情報 | | Local sales Association (please make a reservation beforehand) schedule / Every Saturday and Sunday time / 9:30 ~ 17:00 現地販売会(事前に必ず予約してください)日程/毎週土日時間/9:30 ~ 17:00 | Property name 物件名 | | Nakanoharu Village 中の原ビレッジ | Price 価格 | | 27,350,000 yen ~ 28,720,000 yen 2735万円 ~ 2872万円 | Floor plan 間取り | | 4LDK 4LDK | Units sold 販売戸数 | | 5 units 5戸 | Total units 総戸数 | | 19 units 19戸 | Land area 土地面積 | | 179.98 sq m ~ 181.29 sq m (54.44 tsubo ~ 54.83 tsubo) (Registration) 179.98m2 ~ 181.29m2(54.44坪 ~ 54.83坪)(登記) | Building area 建物面積 | | 111.78 sq m ~ 112.61 sq m (33.81 tsubo ~ 34.06 tsubo) (Registration) 111.78m2 ~ 112.61m2(33.81坪 ~ 34.06坪)(登記) | Completion date 完成時期(築年月) | | 2013 late December plans 2013年12月下旬予定 | Address 住所 | | Kitakyushu, Fukuoka Prefecture Yahatanishi-ku Nakanoharu 3-2100-71 福岡県北九州市八幡西区中の原3-2100-71 | Traffic 交通 | | Chikuho electric railway "Sangamori" walk 22 minutes Chikuho electric railway "Einomaru" walk 24 minutes 筑豊電気鉄道「三ヶ森」歩22分 筑豊電気鉄道「永犬丸」歩24分
| Related links 関連リンク | | [Related Sites of this company] 【この会社の関連サイト】 | Contact お問い合せ先 | | New Japan Holmes (Ltd.) TEL: 0120-71-2033 Please inquire as "saw SUUMO (Sumo)" 新日本ホームズ(株)TEL:0120-71-2033「SUUMO(スーモ)を見た」と問い合わせください | Most price range 最多価格帯 | | 28 million yen ・ 27 million yen (each 3 units) 2800万円台・2700万円台(各3戸) | Building coverage, floor area ratio 建ぺい率・容積率 | | Building coverage: 50%, Volume ratio: 80% 建ぺい率:50%、容積率:80% | Time residents 入居時期 | | 2013 end of December schedule 2013年12月末予定 | Land of the right form 土地の権利形態 | | Ownership 所有権 | Structure and method of construction 構造・工法 | | Wooden 2-story (2 × 4 construction method) 木造2階建(2×4工法) | Construction 施工 | | New Japan Homes, Inc. 新日本ホームズ株式会社 | Use district 用途地域 | | One low-rise 1種低層 | Land category 地目 | | Residential land 宅地 | Overview and notices その他概要・特記事項 | | Building confirmation number: (No. 2 place) the first H25 confirmation architecture Fukuzumisekita No. 01030 (No. 3 locations) The H25 confirmation architecture Fukuzumisekita No. 00985 建築確認番号:(2号地) 第H25確認建築福住セ北01030号 (3号地) 第H25確認建築福住セ北00985号 | Company profile 会社概要 | | <Seller> Governor of Fukuoka Prefecture (8) New Japan Holmes Co. Yubinbango807-0825 Kitakyushu, Fukuoka Prefecture Yahatanishi-ku No. 008074 Orio 3-3-22 <売主>福岡県知事(8)第008074号新日本ホームズ(株)〒807-0825 福岡県北九州市八幡西区折尾3-3-22 |
Local photos, including front road前面道路含む現地写真  Now we have received the 8 compartment contract. So also we are held from time to time local tours, Please feel free to contact us!
現在8区画ご契約をいただいております。現地見学会も随時開催しておりますので、お気軽にお問合せください!
The entire compartment Figure全体区画図  ■ Color one houses one units of the outer wall with a contrast, It insisted on independence. ■ By outside structure that is a sense of unity, It will produce the breadth and harmony to the streets.
■一戸一戸の外壁のカラーはコントラストをつけ、独立性を主張します。■統一感ある外構にすることにより、街並みに広がりとハーモニーを演出します。
Village series (same specifications) Mainosato Village [All 15 compartments] September 2008 completionビレッジシリーズ(同仕様)舞の里ビレッジ【全15区画】平成20年9月完成 ![Village series (same specifications) Mainosato Village [All 15 compartments] September 2008 completion. Village series (same specifications)](/images/fukuoka/kitakyushushiyahatanishi/a853ed0028.jpg) Village series (same specifications)
ビレッジシリーズ(同仕様)
Same specifications photos (appearance)同仕様写真(外観) ![Same specifications photos (appearance). Village series (same specifications) Tetsuo Village III [All 18 compartments] 2010 ~](/images/fukuoka/kitakyushushiyahatanishi/a853ed0027.jpg) Village series (same specifications) Tetsuo Village III [All 18 compartments] 2010 ~
ビレッジシリーズ(同仕様)鉄王ビレッジIII【全18区画】平成22年 ~
Sale already cityscape photo分譲済街並み写真 ![Sale already cityscape photo. Village series (same specifications) red ginseng Village [All 10 compartments] January 2012 completion](/images/fukuoka/kitakyushushiyahatanishi/a853ed0029.jpg) Village series (same specifications) red ginseng Village [All 10 compartments] January 2012 completion
ビレッジシリーズ(同仕様)幸神ビレッジ【全10区画】平成24年1月完成
Local guide map現地案内図 ![Local guide map. Car navigation input to the sales center [Yahatanishi-ku Nakanoharu 3-7-1]](/images/fukuoka/kitakyushushiyahatanishi/a853ed0011.jpg) Car navigation input to the sales center [Yahatanishi-ku Nakanoharu 3-7-1]
販売センターへのカーナビ入力【八幡西区中の原3-7-1】
Exhibition hall / Showroom展示場/ショウルーム  Symphony of the model home
ひびきのモデルホーム
Sale already cityscape photo分譲済街並み写真 ![Sale already cityscape photo. Village series (same specifications) Tetsuo Village II [All 12 compartments] April 2010 completion](/images/fukuoka/kitakyushushiyahatanishi/a853ed0026.jpg) Village series (same specifications) Tetsuo Village II [All 12 compartments] April 2010 completion
ビレッジシリーズ(同仕様)鉄王ビレッジII【全12区画】平成22年4月完成
Local photos, including front road前面道路含む現地写真  Local (10 May 2013) Shooting
現地(2013年10月)撮影
 Local (10 May 2013) Shooting
現地(2013年10月)撮影
 Local (10 May 2013) Shooting
現地(2013年10月)撮影
 Local (10 May 2013) Shooting
現地(2013年10月)撮影
Local appearance photo現地外観写真  Local (2 October 2013) Shooting
現地(22013年10月)撮影
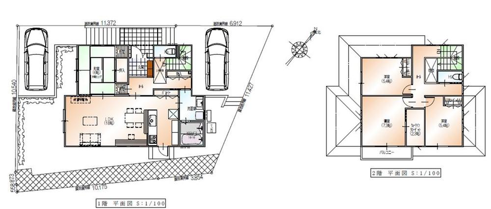
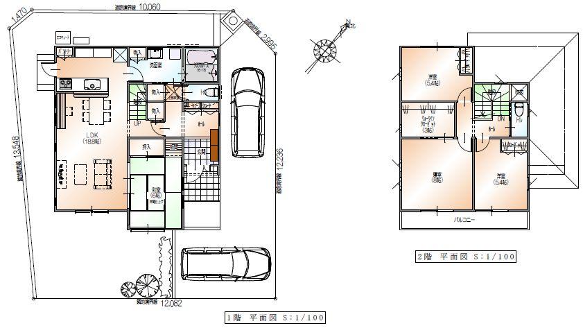
Floor plan間取り図  Now we have received the 8 compartment contract. So also we are held from time to time local tours, Please feel free to contact us!
現在8区画ご契約をいただいております。現地見学会も随時開催しておりますので、お気軽にお問合せください!
 Now we have received the 8 compartment contract. So also we are held from time to time local tours, Please feel free to contact us!
現在8区画ご契約をいただいております。現地見学会も随時開催しておりますので、お気軽にお問合せください!
Home centerホームセンター  525m to Ho Mupurazanafuko Jozu auditors shop
ホームプラザナフコ上津役店まで525m
Junior high school中学校  1285m to Kitakyushu Jozu Auditor Junior High School
北九州市立上津役中学校まで1285m
Primary school小学校  1407m to Kitakyushu Jozu Officer Elementary School
北九州市立上津役小学校まで1407m
 Power generation ・ Hot water equipment
発電・温水設備
Kindergarten ・ Nursery幼稚園・保育園  Shimokojaku 1056m to kindergarten
下上津役幼稚園まで1056m
Location
|