New Homes » Tokai » Gifu Prefecture » Hashima
 
| | Gifu Prefecture Hashima 岐阜県羽島市 |
| Takehanasen Meitetsu "Hashimashiyakushomae" walk 17 minutes 名鉄竹鼻線「羽島市役所前」歩17分 |
| 24,800,000 yen ~ . Site 60 square meters or more. Building B ・ I Building November completion. Stage II 4 buildings sale seismic grade 3 ・ Long-term high-quality housing that has been consideration to energy conservation, etc.. LDK20 quires more ・ 5LDK ・ WIC in master bedroom. For more information ↑ to "document request" 2480万円 ~ 。敷地60坪以上。B棟・I棟11月完成。II期4棟販売開始耐震等級3・省エネ等に配慮された長期優良住宅。LDK20帖以上・5LDK・主寝室にWIC。詳しくは↑『資料請求』へ |
| ※ For possible delivery in to the same property is the end of March, Price is applied to 5% consumption tax ◆ [Limited time offer] Building A ・ Building C ・ Building D ・ Building E is the room wallpaper of Off per under construction ・ kitchen ・ toilet ・ You can wash of color select. Some things that do not can choose depending on the situation of the construction work. For more information, please contact us. ◆ Walk-in cloakroom to the main bedroom, We prepared all over the house a variety of storage space such as a hanging cupboard and the cupboard in the wash room of the size of the room. ◆ In addition the whole family is comfortable and welcoming 20 quires more of LDK. ◆ Worry come your friends because there is a parking space of three each mansion. ◆ Kitchen garden and gardening that it has also secured further garden, Various usage such as wood deck and shed. ◆ Come rather visit the local ※同物件は3月末までに引渡し可能な為、価格は消費税5%を適用◆【期間限定】A棟・C棟・D棟・E棟は建築中につき今ならお部屋の壁紙・キッチン・トイレ・洗面のカラーセレクトが出来ます。工事の状況によってお選び頂けないものもございます。詳しくはお問合せください。◆主寝室にはウォークインクローク、ゆとりの広さの洗面室には吊り戸棚や物入れなど家中多彩な収納空間をご用意しました。◆さらに家族みんながゆったりくつろげる20帖以上のLDK。◆各邸3台の駐車スペースがあるのでお友達が来ても安心。◆さらにお庭も確保しましたので家庭菜園やガーデニング、ウッドデッキや物置など使い方色々。◆是非現地でご確認く |
Seller comments 売主コメント | | Building D D棟 | Local guide map 現地案内図 | | Local guide map 現地案内図 | Features pickup 特徴ピックアップ | | Measures to conserve energy / Long-term high-quality housing / Corresponding to the flat-35S / Airtight high insulated houses / Pre-ground survey / Parking three or more possible / LDK20 tatami mats or more / Land 50 square meters or more / Fiscal year Available / Energy-saving water heaters / Super close / It is close to the city / Facing south / System kitchen / Bathroom Dryer / Yang per good / All room storage / Flat to the station / Siemens south road / Around traffic fewer / Or more before road 6m / Corner lot / Japanese-style room / Shaping land / garden / Washbasin with shower / Face-to-face kitchen / Barrier-free / Toilet 2 places / Bathroom 1 tsubo or more / 2-story / South balcony / Double-glazing / Otobasu / Warm water washing toilet seat / Nantei / Underfloor Storage / The window in the bathroom / TV monitor interphone / Leafy residential area / Ventilation good / Dish washing dryer / Walk-in closet / All room 6 tatami mats or more / Water filter / City gas / Flat terrain / Attic storage / Floor heating 省エネルギー対策 /長期優良住宅 /フラット35Sに対応 /高気密高断熱住宅 /地盤調査済 /駐車3台以上可 /LDK20畳以上 /土地50坪以上 /年度内入居可 /省エネ給湯器 /スーパーが近い /市街地が近い /南向き /システムキッチン /浴室乾燥機 /陽当り良好 /全居室収納 /駅まで平坦 /南側道路面す /周辺交通量少なめ /前道6m以上 /角地 /和室 /整形地 /庭 /シャワー付洗面台 /対面式キッチン /バリアフリー /トイレ2ヶ所 /浴室1坪以上 /2階建 /南面バルコニー /複層ガラス /オートバス /温水洗浄便座 /南庭 /床下収納 /浴室に窓 /TVモニタ付インターホン /緑豊かな住宅地 /通風良好 /食器洗乾燥機 /ウォークインクロゼット /全居室6畳以上 /浄水器 /都市ガス /平坦地 /屋根裏収納 /床暖房 | Property name 物件名 | | E's garden Hashima Takegahana cho II E’s garden 羽島市竹鼻町II | Price 価格 | | 24,800,000 yen ~ 28.8 million yen 2480万円 ~ 2880万円 | Floor plan 間取り | | 5LDK 5LDK | Units sold 販売戸数 | | 6 units 6戸 | Total units 総戸数 | | 9 units 9戸 | Land area 土地面積 | | 207.11 sq m ~ 214.72 sq m (62.65 tsubo ~ 64.95 square meters) 207.11m2 ~ 214.72m2(62.65坪 ~ 64.95坪) | Building area 建物面積 | | 133.82 sq m ~ 133.88 sq m (40.48 tsubo ~ 40.49 square meters) 133.82m2 ~ 133.88m2(40.48坪 ~ 40.49坪) | Driveway burden-road 私道負担・道路 | | Road width: 2.4m ~ 4.5m, Asphaltic pavement 道路幅:2.4m ~ 4.5m、アスファルト舗装 | Completion date 完成時期(築年月) | | November 2013 2013年11月 | Address 住所 | | Gifu Prefecture Hashima Takegahana-cho Nishizuka 1156-2 岐阜県羽島市竹鼻町字西須賀1156-2他 | Traffic 交通 | | Takehanasen Meitetsu "Hashimashiyakushomae" walk 17 minutes Tokaido Shinkansen "Gifu Hashima" walk 25 minutes 名鉄竹鼻線「羽島市役所前」歩17分 東海道新幹線「岐阜羽島」歩25分
| Related links 関連リンク | | [Related Sites of this company] 【この会社の関連サイト】 | Contact お問い合せ先 | | (Ltd.) Esakihomu Gifu Branch TEL: 0800-603-2504 [Toll free] mobile phone ・ Also available from PHS Caller ID is not notified Please contact the "saw SUUMO (Sumo)" If it does not lead, If the real estate company (株)エサキホーム岐阜支店TEL:0800-603-2504【通話料無料】携帯電話・PHSからもご利用いただけます 発信者番号は通知されません 「SUUMO(スーモ)を見た」と問い合わせください つながらない方、不動産会社の方は
| Most price range 最多価格帯 | | 27 million yen ・ 28 million yen (each 2 units) 2700万円台・2800万円台(各2戸) | Building coverage, floor area ratio 建ぺい率・容積率 | | Kenpei rate: 60%, Volume ratio: 200% 建ペい率:60%、容積率:200% | Time residents 入居時期 | | Consultation 相談 | Land of the right form 土地の権利形態 | | Ownership 所有権 | Structure and method of construction 構造・工法 | | Wooden tile-roofing 2 stories 木造瓦葺2階建 | Use district 用途地域 | | One middle and high 1種中高 | Land category 地目 | | Residential land 宅地 | Overview and notices その他概要・特記事項 | | Building confirmation number: confirmation service No. KS113-1910-00836 (H25.8.1) Other, Facilities: Public water supply ・ Merger septic tank ・ City gas ・ Chubu Electric Power Co., Development permit: Gifu Prefecture directive 岐西 Building No. 102 38 建築確認番号:確認サービス第KS113-1910-00836号(H25.8.1)他、施設:公営上水道・合併浄化槽・都市ガス・中部電力、開発許可:岐阜県指令岐西建築第102号の38 | Company profile 会社概要 | | <Seller> Minister of Land, Infrastructure and Transport (2) No. 007260 (the company), Gifu Prefecture Building Lots and Buildings Transaction Business Association Tokai Real Estate Fair Trade Council member (Ltd.) Esakihomu Gifu branch Yubinbango500-8345 Gifu, Gifu Prefecture Kikuchi-cho 2-3 <売主>国土交通大臣(2)第007260号(社)岐阜県宅地建物取引業協会会員 東海不動産公正取引協議会加盟(株)エサキホーム岐阜支店〒500-8345 岐阜県岐阜市菊地町2-3 |
Local appearance photo現地外観写真  Building B (December 2013) Shooting
B棟(2013年12月)撮影
Kitchenキッチン  Building B (December 2013) Shooting
B棟(2013年12月)撮影
Bathroom浴室  Building B (December 2013) Shooting
B棟(2013年12月)撮影
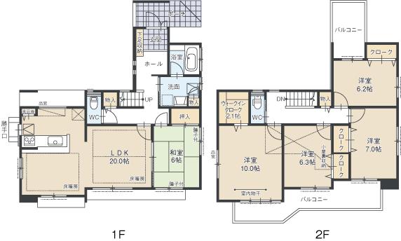
Floor plan間取り図  (B Building), Price 27.3 million yen, 5LDK, Land area 214.71 sq m , Building area 133.88 sq m
(B棟)、価格2730万円、5LDK、土地面積214.71m2、建物面積133.88m2
Livingリビング  Building B (December 2013) Shooting
B棟(2013年12月)撮影
Kitchenキッチン  I Building a kitchen (12 May 2013) Shooting
I棟キッチン(2013年12月)撮影
Wash basin, toilet洗面台・洗面所  Building B (December 2013) Shooting
B棟(2013年12月)撮影
Receipt収納  I Building 2.1 Pledge walk-in cloakroom (December 2013) Shooting
I棟2.1帖ウォークインクローク(2013年12月)撮影
Construction ・ Construction method ・ specification構造・工法・仕様  Adopting the traditional construction methods of wooden houses that make up the framing in the columns and beams, "wooden framework construction method". Laminated wood and junction, By adopting the modern technology, such as on a wall, It has achieved a house that combines the excellent strength and durability.
柱と梁で軸組を構成する木造住宅の伝統的な建築工法「木造軸組工法」を採用。集成材や接合部、壁面などに現代のテクノロジーを採用することで、優れた強度と耐久性を兼ね備えた家を実現しています。
Other Equipmentその他設備  Slide storage of all cabinet drawer type. Goodness of the amount of storage and the ease of use appeal. Water purification function with faucet and dishwasher also Esakihomu original specification of standard equipment.
キャビネットは全て引出しタイプのスライド収納。収納量と使い勝手の良さが魅力。浄水機能付水栓や食器洗い乾燥機も標準装備のエサキホームオリジナル仕様。
Balconyバルコニー  I Building balcony (December 2013) Shooting
I棟バルコニー(2013年12月)撮影
Park公園  Forest of citizens 500m to Hashima park
市民の森 羽島公園まで500m
Other introspectionその他内観  Building B Master Bedroom 10.7 Pledge (December 2013) Shooting
B棟主寝室10.7帖(2013年12月)撮影
 The entire compartment Figure
全体区画図
 Local guide map
現地案内図
 Access view
交通アクセス図
Route map路線図  Access view
交通アクセス図
Floor plan間取り図  (I Building), Price 24,800,000 yen, 5LDK, Land area 209.44 sq m , Building area 133.82 sq m
(I棟)、価格2480万円、5LDK、土地面積209.44m2、建物面積133.82m2
Livingリビング  I building Japanese-style room and a living (December 2013) Shooting
I棟和室とリビング(2013年12月)撮影
Kitchenキッチン  View from the I building kitchen (12 May 2013) Shooting
I棟キッチンからの眺望(2013年12月)撮影
Construction ・ Construction method ・ specification構造・工法・仕様  Corresponding to the long-term high-quality housing that the country was determined. It is a good house that can live in good condition for a long period of time. Also, Seismic grade get a grade 3 of the highest rank. It is earthquake-resistant structural design of the peace of mind.
国が定めた長期優良住宅に対応。長期にわたり良好な状態で住まうことができる優良な住宅です。また、耐震等級は最高ランクの等級3を取得。安心の耐震構造設計です。
Otherその他  Building B ・ I Building in November completed. Building A ・ Building E February scheduled for completion. Building C ・ Building D is scheduled for completion March. ※ Because the property is capable of delivery by the end of March, Price is applied to 5% consumption tax rate. For more information, please contact us.
B棟・I棟は11月完成。A棟・E棟は2月完成予定。C棟・D棟は3月完成予定です。※同物件は3月末までに引渡し可能なため、価格は消費税率5%を適用。詳しくはお問合せください。
Floor plan間取り図  Forest of citizens 500m to Hashima park
市民の森 羽島公園まで500m
 Forest of citizens 500m to Hashima park
市民の森 羽島公園まで500m
 Forest of citizens 500m to Hashima park
市民の森 羽島公園まで500m
 Forest of citizens 500m to Hashima park
市民の森 羽島公園まで500m
Supermarketスーパー  500m to super three-core
スーパー三心まで500m
Convenience storeコンビニ  Until the Seven-Eleven 350m
セブンイレブンまで350m
Other Equipmentその他設備  Thermo bus write with a thermosensitive material. Keep the drain outlet to clean, Kururin poi drainage port. System bus to comfortable space for relaxation. Available in each bathroom heating dryer in the bathroom and wash room. Clothes dryer ・ ventilation ・ heating ・ Cool breeze and convenience in a single 4 roles.
温材付きのサーモバスライト。排水口をキレイに保つ、くるりんポイ排水口。くつろぎの空間を快適にするシステムバス。浴室と洗面室にはそれぞれ浴室暖房乾燥機をご用意。衣類乾燥・換気・暖房・涼風と1台4役で便利。
 Cabinet to put such as immediately use change of clothes and towels are put under Tsuto shelves and detergent of stock, Vanity storage, such as shampoo dresser of enhancement can also plenty of storage in the back of the mirror.
すぐ使う着替えやタオルが置ける吊戸下の棚や洗剤のストックなど入れるキャビネット、鏡の後ろにもたっぷり収納できるシャンプードレッサーなど収納が充実の洗面化粧台。
 Local guide map
現地案内図
 The master bedroom is, Clothing has established a spacious walk-in cloak that can store plenty.
主寝室には、衣類がたっぷり収納できる広々ウォークインクロークを設置しました。
 Outside all windows ・ Outside all the doors to adopt a multi-layer glass, Up the energy-saving effect. Condensation mitigation.
外部全窓・外部全ドアに複層ガラスを採用し、省エネ効果をアップ。結露軽減。
Security equipment防犯設備  Record visitor image automatically ・ Save (one recording: 30 cases) built-in can be recording function. After returning home, You can see on the monitor screen.
来訪者画像を自動で録画・保存(1枚録画:30件)できる録画機能を内蔵。帰宅後、モニター画面で確認できます。
Library図書館  Hashima 400m to Public Library
羽島市立図書館まで400m
Kindergarten ・ Nursery幼稚園・保育園  Takegahana 1000m to nursery school
竹鼻保育園まで1000m
Primary school小学校  Takegahana until elementary school 900m
竹鼻小学校まで900m
Junior high school中学校  Takegahana 1850m until junior high school
竹鼻中学校まで1850m
Shopping centreショッピングセンター  Hashima 1700m until Wing151
羽島Wing151まで1700m
Station駅  Takehanasen Meitetsu "Hashimashiyakushomae" 1300m to the station
名鉄竹鼻線「羽島市役所前」駅まで1300m
Location
|