New Homes » Tokai » Gifu Prefecture » Kakamigahara
 
| | Gifu Prefecture Kakamigahara 岐阜県各務原市 |
| Kagamigaharasen Meitetsu "Haba" walk 6 minutes 名鉄各務原線「羽場」歩6分 |
| Lined sophisticated residence, Quality life in the beautiful city 洗練された住まいが並ぶ、美しいまちなみで上質ライフ |
| Parking two Allowed, 2 along the line more accessible, LDK20 tatami mats or more, Land 50 square meters or more, It is close to the city, Yang per good, A quiet residential area, Corner lotese-style room, Garden more than 10 square meters, Toilet 2 places, 2-story, South balcony, Nantei, The window in the bathroom, Urban neighborhood, City gas 駐車2台可、2沿線以上利用可、LDK20畳以上、土地50坪以上、市街地が近い、陽当り良好、閑静な住宅地、角地、和室、庭10坪以上、トイレ2ヶ所、2階建、南面バルコニー、南庭、浴室に窓、都市近郊、都市ガス |
Local guide map 現地案内図 | | Local guide map 現地案内図 | Features pickup 特徴ピックアップ | | Parking two Allowed / LDK20 tatami mats or more / Land 50 square meters or more / It is close to the city / Yang per good / A quiet residential area / Corner lot / Japanese-style room / Garden more than 10 square meters / Toilet 2 places / 2-story / South balcony / Nantei / The window in the bathroom / Urban neighborhood / City gas 駐車2台可 /LDK20畳以上 /土地50坪以上 /市街地が近い /陽当り良好 /閑静な住宅地 /角地 /和室 /庭10坪以上 /トイレ2ヶ所 /2階建 /南面バルコニー /南庭 /浴室に窓 /都市近郊 /都市ガス | Event information イベント情報 | | Local tours (Please be sure to ask in advance) schedule / Every Saturday, Sunday and public holidays time / 10:00 ~ 17:00 現地見学会(事前に必ずお問い合わせください)日程/毎週土日祝時間/10:00 ~ 17:00 | Property name 物件名 | | Garden Terrace Unumahaba [MisawahomuTokai] ガーデンテラス鵜沼羽場【ミサワホーム東海】 | Price 価格 | | 35,800,000 yen 3580万円 | Floor plan 間取り | | 5LDK + S (storeroom) 5LDK+S(納戸) | Units sold 販売戸数 | | 1 units 1戸 | Total units 総戸数 | | 1 units 1戸 | Land area 土地面積 | | 209.56 sq m (63.39 tsubo) (measured) 209.56m2(63.39坪)(実測) | Building area 建物面積 | | 125.86 sq m (38.07 tsubo) (measured) 125.86m2(38.07坪)(実測) | Driveway burden-road 私道負担・道路 | | Nothing 無 | Completion date 完成時期(築年月) | | 11 May 2011 2011年11月 | Address 住所 | | Gifu Prefecture Kakamigahara Unumahaba cho 8 岐阜県各務原市鵜沼羽場町8 | Traffic 交通 | | Kagamigaharasen Meitetsu "Haba" walk 6 minutes 名鉄各務原線「羽場」歩6分
| Contact お問い合せ先 | | MisawahomuTokai Co., Gifu ・ Conclusion Sales Department TEL: 0800-603-1831 [Toll free] mobile phone ・ Also available from PHS Caller ID is not notified Please contact the "saw SUUMO (Sumo)" If it does not lead, If the real estate company ミサワホーム東海(株)岐阜・尾張営業部TEL:0800-603-1831【通話料無料】携帯電話・PHSからもご利用いただけます 発信者番号は通知されません 「SUUMO(スーモ)を見た」と問い合わせください つながらない方、不動産会社の方は
| Building coverage, floor area ratio 建ぺい率・容積率 | | 60% ・ 200% 60%・200% | Time residents 入居時期 | | Immediate available 即入居可 | Land of the right form 土地の権利形態 | | Ownership 所有権 | Structure and method of construction 構造・工法 | | Wooden 2-story (panel method) 木造2階建(パネル工法) | Use district 用途地域 | | Urbanization control area 市街化調整区域 | Overview and notices その他概要・特記事項 | | Facilities: Public Water Supply, Individual septic tank, City gas, Building Permits reason: land sale by the development permit, etc., Building confirmation number: Wei Kenjuse No. 1110734, Parking: Garage 設備:公営水道、個別浄化槽、都市ガス、建築許可理由:開発許可等による分譲地、建築確認番号:ぎ建住セ第1110734号、駐車場:車庫 | Company profile 会社概要 | | <Seller> Minister of Land, Infrastructure and Transport (5) No. 005185 Misawa Homes Tokai Co., Ltd., Gifu ・ Conclusion sales department Yubinbango491-0823 Aichi Prefecture Ichinomiya Tan'yochoitsukaichiba this land 28 <売主>国土交通大臣(5)第005185号ミサワホーム東海(株)岐阜・尾張営業部〒491-0823 愛知県一宮市丹陽町五日市場本地28 |
Same specifications photos (appearance)同仕様写真(外観)  (No. 1 place) SMART STYLE E5LDK + Warehouse
(1号地)SMART STYLE E5LDK + 蔵
Same specifications photos (Other introspection)同仕様写真(その他内観)  Earth ・ Town ・ Now the human, Smart house.
地球・まち・ヒトのこれからに、スマートな住まい。
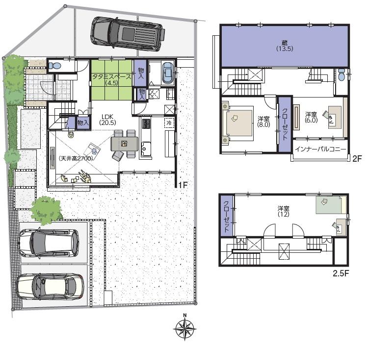
Floor plan間取り図  35,800,000 yen, 5LDK + S (storeroom), Land area 209.56 sq m , Building area 125.86 sq m
3580万円、5LDK+S(納戸)、土地面積209.56m2、建物面積125.86m2
Supermarketスーパー  Apita to Kakamigahara shop 1575m
アピタ各務原店まで1575m
 The entire compartment Figure
全体区画図
 Local guide map
現地案内図
Location
|