|
|
Isesaki, Gunma Prefecture
群馬県伊勢崎市
|
|
Isesaki Tobu "Isesaki" walk 41 minutes
東武伊勢崎線「伊勢崎」歩41分
|
|
Miyago is about 500m to small.
宮郷小まで約500mです。
|
Features pickup 特徴ピックアップ | | Parking three or more possible / Land 50 square meters or more / System kitchen / Bathroom Dryer / All room storage / LDK15 tatami mats or more / Barrier-free / Toilet 2 places / 2-story / Underfloor Storage / TV monitor interphone 駐車3台以上可 /土地50坪以上 /システムキッチン /浴室乾燥機 /全居室収納 /LDK15畳以上 /バリアフリー /トイレ2ヶ所 /2階建 /床下収納 /TVモニタ付インターホン |
Price 価格 | | 21.9 million yen 2190万円 |
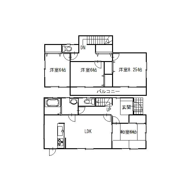
Floor plan 間取り | | 4LDK 4LDK |
Units sold 販売戸数 | | 1 units 1戸 |
Land area 土地面積 | | 186.27 sq m (56.34 tsubo) (Registration) 186.27m2(56.34坪)(登記) |
Building area 建物面積 | | 105.98 sq m (32.05 tsubo) (Registration) 105.98m2(32.05坪)(登記) |
Driveway burden-road 私道負担・道路 | | Nothing, Southeast 7m width 無、南東7m幅 |
Completion date 完成時期(築年月) | | August 2013 2013年8月 |
Address 住所 | | Isesaki, Gunma Prefecture Tanakashima cho 群馬県伊勢崎市田中島町 |
Traffic 交通 | | Isesaki Tobu "Isesaki" walk 41 minutes Isesaki Tobu "New Isesaki" walk 45 minutes JR Ryomo "Komagata" walk 56 minutes 東武伊勢崎線「伊勢崎」歩41分 東武伊勢崎線「新伊勢崎」歩45分 JR両毛線「駒形」歩56分
|
Person in charge 担当者より | | [Regarding this property.] All five buildings, Parking four Allowed, Zenshitsuminami direction, We have with the ground guarantee. 【この物件について】全5棟、駐車場4台可、全室南向き、地盤保証付いております。 |
Contact お問い合せ先 | | TEL: 0120-705636 [Toll free] Please contact the "saw SUUMO (Sumo)" TEL:0120-705636【通話料無料】「SUUMO(スーモ)を見た」と問い合わせください |
Building coverage, floor area ratio 建ぺい率・容積率 | | 60% ・ 200% 60%・200% |
Time residents 入居時期 | | Consultation 相談 |
Land of the right form 土地の権利形態 | | Ownership 所有権 |
Structure and method of construction 構造・工法 | | Wooden 2-story (framing method) 木造2階建(軸組工法) |
Use district 用途地域 | | One middle and high 1種中高 |
Overview and notices その他概要・特記事項 | | Facilities: Public Water Supply, Individual septic tank, Individual LPG, Building confirmation number: 00040, Parking: car space 設備:公営水道、個別浄化槽、個別LPG、建築確認番号:00040、駐車場:カースペース |
Company profile 会社概要 | | <Sales tie-up (recovery agency)> Gunma Prefecture Governor (3) No. 006428 (the company), Gunma Prefecture Building Lots and Buildings Transaction Business Association (Corporation) metropolitan area real estate Fair Trade Council member (Ltd.) Asset Corporation Kitatakasaki shop Yubinbango370-0069 Takasaki, Gunma Prefecture Iizuka-cho, 260-1 <販売提携(復代理)>群馬県知事(3)第006428号(社)群馬県宅地建物取引業協会会員 (公社)首都圏不動産公正取引協議会加盟(株)アセットコーポレーション北高崎店〒370-0069 群馬県高崎市飯塚町260-1 |