New Homes » Kanto » Gunma Prefecture » Isesaki
 
| | Isesaki, Gunma Prefecture 群馬県伊勢崎市 |
| Isesaki Tobu "Isesaki" walk 43 minutes 東武伊勢崎線「伊勢崎」歩43分 |
| Parking three or more possible, It is close to the city, System kitchen, Bathroom Dryer, All room storage, Flat to the station, LDK15 tatami mats or more, Face-to-face kitchen, 2-story, Double-glazing, The window in the bathroom, Dish washing dryer, All room 駐車3台以上可、市街地が近い、システムキッチン、浴室乾燥機、全居室収納、駅まで平坦、LDK15畳以上、対面式キッチン、2階建、複層ガラス、浴室に窓、食器洗乾燥機、全居室 |
| Miyago until elementary school 20m, Walk is a 1-minute! 宮郷小学校まで20m、徒歩1分です! |
Features pickup 特徴ピックアップ | | Parking three or more possible / It is close to the city / System kitchen / Bathroom Dryer / All room storage / Flat to the station / LDK15 tatami mats or more / Face-to-face kitchen / 2-story / Double-glazing / The window in the bathroom / Dish washing dryer / All room 6 tatami mats or more / Flat terrain 駐車3台以上可 /市街地が近い /システムキッチン /浴室乾燥機 /全居室収納 /駅まで平坦 /LDK15畳以上 /対面式キッチン /2階建 /複層ガラス /浴室に窓 /食器洗乾燥機 /全居室6畳以上 /平坦地 | Price 価格 | | 20,990,000 yen 2099万円 | Floor plan 間取り | | 4LDK 4LDK | Units sold 販売戸数 | | 1 units 1戸 | Land area 土地面積 | | 198.37 sq m (registration) 198.37m2(登記) | Building area 建物面積 | | 106.81 sq m (registration) 106.81m2(登記) | Driveway burden-road 私道負担・道路 | | Nothing 無 | Completion date 完成時期(築年月) | | September 2013 2013年9月 | Address 住所 | | Isesaki, Gunma Prefecture Tanakashima cho 群馬県伊勢崎市田中島町 | Traffic 交通 | | Isesaki Tobu "Isesaki" walk 43 minutes Isesaki Tobu "New Isesaki" walk 49 minutes JR Ryomo "Komagata" walk 65 minutes 東武伊勢崎線「伊勢崎」歩43分 東武伊勢崎線「新伊勢崎」歩49分 JR両毛線「駒形」歩65分
| Contact お問い合せ先 | | (Ltd.) Smart TEL: 0800-805-5713 [Toll free] mobile phone ・ Also available from PHS Caller ID is not notified Please contact the "saw SUUMO (Sumo)" If it does not lead, If the real estate company (株)スマートTEL:0800-805-5713【通話料無料】携帯電話・PHSからもご利用いただけます 発信者番号は通知されません 「SUUMO(スーモ)を見た」と問い合わせください つながらない方、不動産会社の方は
| Building coverage, floor area ratio 建ぺい率・容積率 | | 60% ・ 200% 60%・200% | Time residents 入居時期 | | Consultation 相談 | Land of the right form 土地の権利形態 | | Ownership 所有権 | Structure and method of construction 構造・工法 | | Wooden 2-story 木造2階建 | Use district 用途地域 | | Two dwellings 2種住居 | Overview and notices その他概要・特記事項 | | Facilities: Public Water Supply, Individual septic tank, Parking: car space 設備:公営水道、個別浄化槽、駐車場:カースペース | Company profile 会社概要 | | <Marketing alliance (mediated)> Gunma Prefecture Governor (1) No. 007218 (Ltd.) smart Yubinbango372-0812 Isesaki, Gunma Prefecture Renshu cho 3082-1 <販売提携(媒介)>群馬県知事(1)第007218号(株)スマート〒372-0812 群馬県伊勢崎市連取町3082-1 |
Other introspectionその他内観  Stairs as seen from the second floor
2階から見た階段
Local appearance photo現地外観写真  Local (11 May 2013) Shooting
現地(2013年11月)撮影
 Local (11 May 2013) Shooting
現地(2013年11月)撮影
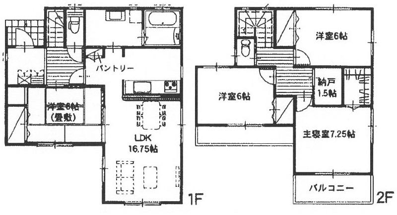
Floor plan間取り図  20,990,000 yen, 4LDK, Land area 198.37 sq m , Building area 106.81 sq m
2099万円、4LDK、土地面積198.37m2、建物面積106.81m2
Local appearance photo現地外観写真  Local (11 May 2013) Shooting
現地(2013年11月)撮影
 Living
リビング
 Bathroom
浴室
 Kitchen
キッチン
 Entrance
玄関
 Wash basin, toilet
洗面台・洗面所
 Toilet
トイレ
Other introspectionその他内観  Western style room Elementary school looks
洋室 小学校が見えますよ
 Living
リビング
Kitchenキッチン  Stain-resistant artificial marble sink
汚れにくい人工大理石シンク
 Entrance
玄関
Other introspectionその他内観  The main bedroom + walk-in closet
主寝室+ウォークインクローゼット
Livingリビング  Living storage
リビング収納
Other introspectionその他内観  Master bedroom
主寝室
 Western style room
洋室
 Western style room
洋室
Location
|