|
|
Isesaki, Gunma Prefecture
群馬県伊勢崎市
|
|
JR Ryomo "Isesaki" car 3.1km
JR両毛線「伊勢崎」車3.1km
|
|
A 1-minute walk from the Isesaki Super Mall! Artificial marble sink! Tableware line dryer standard equipment!
スーパーモールいせさきまで徒歩1分!人工大理石シンク!食器線乾燥機標準装備!
|
Features pickup 特徴ピックアップ | | Pre-ground survey / Parking three or more possible / Land 50 square meters or more / Super close / It is close to the city / System kitchen / Bathroom Dryer / LDK15 tatami mats or more / Japanese-style room / garden / Washbasin with shower / Face-to-face kitchen / Toilet 2 places / Bathroom 1 tsubo or more / 2-story / Double-glazing / Underfloor Storage / The window in the bathroom / TV monitor interphone / Dish washing dryer / All room 6 tatami mats or more / Water filter / All rooms are two-sided lighting 地盤調査済 /駐車3台以上可 /土地50坪以上 /スーパーが近い /市街地が近い /システムキッチン /浴室乾燥機 /LDK15畳以上 /和室 /庭 /シャワー付洗面台 /対面式キッチン /トイレ2ヶ所 /浴室1坪以上 /2階建 /複層ガラス /床下収納 /浴室に窓 /TVモニタ付インターホン /食器洗乾燥機 /全居室6畳以上 /浄水器 /全室2面採光 |
Price 価格 | | 21,390,000 yen 2139万円 |
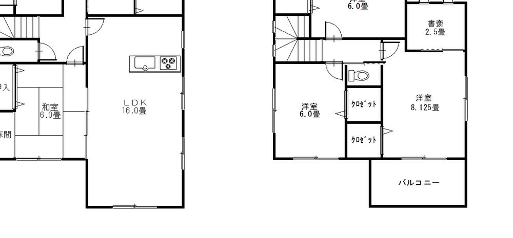
Floor plan 間取り | | 4LDK + S (storeroom) 4LDK+S(納戸) |
Units sold 販売戸数 | | 1 units 1戸 |
Land area 土地面積 | | 222.18 sq m (67.20 tsubo) (Registration) 222.18m2(67.20坪)(登記) |
Building area 建物面積 | | 107.02 sq m (32.37 tsubo) (Registration) 107.02m2(32.37坪)(登記) |
Driveway burden-road 私道負担・道路 | | 39.93 sq m , Southeast 6m width 39.93m2、南東6m幅 |
Completion date 完成時期(築年月) | | February 2014 2014年2月 |
Address 住所 | | Isesaki, Gunma Prefecture Miyako-cho 群馬県伊勢崎市宮子町 |
Traffic 交通 | | JR Ryomo "Isesaki" car 3.1km Isesaki Tobu "New Isesaki" car 3.9km JR両毛線「伊勢崎」車3.1km 東武伊勢崎線「新伊勢崎」車3.9km
|
Contact お問い合せ先 | | TEL: 0120-705636 [Toll free] Please contact the "saw SUUMO (Sumo)" TEL:0120-705636【通話料無料】「SUUMO(スーモ)を見た」と問い合わせください |
Building coverage, floor area ratio 建ぺい率・容積率 | | 80% ・ 200% 80%・200% |
Time residents 入居時期 | | April 2014 schedule 2014年4月予定 |
Land of the right form 土地の権利形態 | | Ownership 所有権 |
Structure and method of construction 構造・工法 | | Wooden 2-story 木造2階建 |
Use district 用途地域 | | Residential 近隣商業 |
Overview and notices その他概要・特記事項 | | Facilities: Public Water Supply, Individual septic tank, Individual LPG, Building confirmation number: No. H25SHC117393, Parking: car space 設備:公営水道、個別浄化槽、個別LPG、建築確認番号:第H25SHC117393号、駐車場:カースペース |
Company profile 会社概要 | | <Marketing alliance (agency)> Gunma Prefecture Governor (3) No. 006428 (the company), Gunma Prefecture Building Lots and Buildings Transaction Business Association (Corporation) metropolitan area real estate Fair Trade Council member (Ltd.) Asset Corporation Kitatakasaki shop Yubinbango370-0069 Takasaki, Gunma Prefecture Iizuka-cho, 260-1 <販売提携(代理)>群馬県知事(3)第006428号(社)群馬県宅地建物取引業協会会員 (公社)首都圏不動産公正取引協議会加盟(株)アセットコーポレーション北高崎店〒370-0069 群馬県高崎市飯塚町260-1 |