2014April
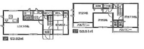
21,800,000 yen, 4LDK, 104.33 sq m
New Homes » Kanto » Gunma Prefecture » Isesaki

| | Isesaki, Gunma Prefecture 群馬県伊勢崎市 |
| Isesaki Tobu "New Isesaki" walk 8 minutes 東武伊勢崎線「新伊勢崎」歩8分 |
| About to North Elementary School 750m ・ 北小学校まで約750m・ |
Features pickup 特徴ピックアップ | | Corresponding to the flat-35S / Parking three or more possible / Land 50 square meters or more / System kitchen / Yang per good / LDK15 tatami mats or more / Washbasin with shower / Face-to-face kitchen / Toilet 2 places / Bathroom 1 tsubo or more / South balcony / Warm water washing toilet seat / Underfloor Storage / The window in the bathroom / TV monitor interphone フラット35Sに対応 /駐車3台以上可 /土地50坪以上 /システムキッチン /陽当り良好 /LDK15畳以上 /シャワー付洗面台 /対面式キッチン /トイレ2ヶ所 /浴室1坪以上 /南面バルコニー /温水洗浄便座 /床下収納 /浴室に窓 /TVモニタ付インターホン | Price 価格 | | 21,800,000 yen 2180万円 | Floor plan 間取り | | 4LDK 4LDK | Units sold 販売戸数 | | 1 units 1戸 | Total units 総戸数 | | 3 units 3戸 | Land area 土地面積 | | 302.78 sq m (91.59 tsubo) (Registration), Alley-like portion: 69.01 sq m including 302.78m2(91.59坪)(登記)、路地状部分:69.01m2含 | Building area 建物面積 | | 104.33 sq m (31.55 tsubo) (Registration) 104.33m2(31.55坪)(登記) | Driveway burden-road 私道負担・道路 | | Nothing, South 6.7m width 無、南6.7m幅 | Completion date 完成時期(築年月) | | March 2014 2014年3月 | Address 住所 | | Isesaki, Gunma Prefecture peace town 群馬県伊勢崎市平和町 | Traffic 交通 | | Isesaki Tobu "New Isesaki" walk 8 minutes 東武伊勢崎線「新伊勢崎」歩8分
| Contact お問い合せ先 | | City Plan (stock) TEL: 0800-603-9742 [Toll free] mobile phone ・ Also available from PHS Caller ID is not notified Please contact the "saw SUUMO (Sumo)" If it does not lead, If the real estate company シティープラン(株)TEL:0800-603-9742【通話料無料】携帯電話・PHSからもご利用いただけます 発信者番号は通知されません 「SUUMO(スーモ)を見た」と問い合わせください つながらない方、不動産会社の方は
| Time residents 入居時期 | | April 2014 schedule 2014年4月予定 | Land of the right form 土地の権利形態 | | Ownership 所有権 | Structure and method of construction 構造・工法 | | Wooden 2-story 木造2階建 | Overview and notices その他概要・特記事項 | | Facilities: Public Water Supply, This sewage, City gas, Building confirmation number: No. 13UDI33S Ken 02481, Parking: car space 設備:公営水道、本下水、都市ガス、建築確認番号:第13UDI33S建02481号、駐車場:カースペース | Company profile 会社概要 | | <Mediation> Gunma Prefecture Governor (1) No. 006966 City plan (stock) Yubinbango379-2154 Maebashi City, Gunma Prefecture Amagawaoshima cho 1-29-15 <仲介>群馬県知事(1)第006966号シティープラン(株)〒379-2154 群馬県前橋市天川大島町1-29-15 |
Floor plan間取り図  21,800,000 yen, 4LDK, Land area 302.78 sq m , Building area 104.33 sq m
2180万円、4LDK、土地面積302.78m2、建物面積104.33m2
Location
|