New Homes » Chugoku » Hiroshima » Asaminami
 
| | Hiroshima, Hiroshima Prefecture Asaminami 広島県広島市安佐南区 |
| JR Kabe Line "Ubayagi" walk 4 minutes JR可部線「上八木」歩4分 |
| Energy saving, All-electric homes can feel the safety ☆ 省エネ、安全性を実感できるオール電化住宅☆ |
| Conventional method of construction of Totate housing construction トータテハウジング施工の在来工法 |
Features pickup 特徴ピックアップ | | Parking two Allowed / Flat to the station / Face-to-face kitchen / Toilet 2 places / 2-story / Underfloor Storage / Leafy residential area / All-electric / Flat terrain 駐車2台可 /駅まで平坦 /対面式キッチン /トイレ2ヶ所 /2階建 /床下収納 /緑豊かな住宅地 /オール電化 /平坦地 | Price 価格 | | 28 million yen 2800万円 | Floor plan 間取り | | 4LDK 4LDK | Units sold 販売戸数 | | 1 units 1戸 | Total units 総戸数 | | 1 units 1戸 | Land area 土地面積 | | 77.59 sq m (23.47 tsubo) (Registration) 77.59m2(23.47坪)(登記) | Building area 建物面積 | | 109.62 sq m (33.15 tsubo) (Registration) 109.62m2(33.15坪)(登記) | Driveway burden-road 私道負担・道路 | | Nothing, East 6.6m width 無、東6.6m幅 | Completion date 完成時期(築年月) | | November 2013 2013年11月 | Address 住所 | | Yagi Hiroshima, Hiroshima Prefecture Asaminami 8-8 広島県広島市安佐南区八木8-8 | Traffic 交通 | | JR Kabe Line "Ubayagi" walk 4 minutes JR可部線「上八木」歩4分
| Person in charge 担当者より | | The person in charge (stock) Juken 担当者(株)住研 | Contact お問い合せ先 | | TEL: 0800-603-3432 [Toll free] mobile phone ・ Also available from PHS Caller ID is not notified Please contact the "saw SUUMO (Sumo)" If it does not lead, If the real estate company TEL:0800-603-3432【通話料無料】携帯電話・PHSからもご利用いただけます 発信者番号は通知されません 「SUUMO(スーモ)を見た」と問い合わせください つながらない方、不動産会社の方は
| Time residents 入居時期 | | Consultation 相談 | Land of the right form 土地の権利形態 | | Ownership 所有権 | Structure and method of construction 構造・工法 | | Wooden 2-story 木造2階建 | Use district 用途地域 | | One dwelling 1種住居 | Overview and notices その他概要・特記事項 | | The person in charge :( stock) Juken, Facilities: Public Water Supply, This sewage, Parking: car space 担当者:(株)住研、設備:公営水道、本下水、駐車場:カースペース | Company profile 会社概要 | | <Mediation> Governor of Hiroshima Prefecture (3) No. 008815 (Ltd.) Jukensha Yubinbango731-5136 Hiroshima, Hiroshima Prefecture Saeki-ku Rakurakuen 2-1-30 <仲介>広島県知事(3)第008815号(株)住研社〒731-5136 広島県広島市佐伯区楽々園2-1-30 |
Local appearance photo現地外観写真  November 29, shooting
11月29日撮影
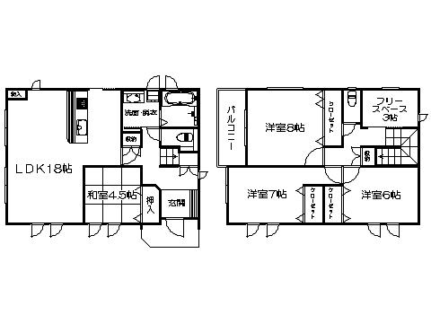
Floor plan間取り図  28 million yen, 4LDK, Land area 77.59 sq m , Building area 109.62 sq m ※ Floor Plan current state priority
2800万円、4LDK、土地面積77.59m2、建物面積109.62m2 ※間取り図現況優先
Local appearance photo現地外観写真  November 29, shooting
11月29日撮影
 November 29, shooting
11月29日撮影
Local photos, including front road前面道路含む現地写真  September 7 shooting
9月7日撮影
Primary school小学校  508m until Yagi Elementary School
八木小学校まで508m
Junior high school中学校  Shiroyama to North Junior High School 895m
城山北中学校まで895m
Supermarketスーパー  spark 2472m to Nakajima shop
スパーク 中島店まで2472m
 Nishimura Joy 1277m to Yagi store
西村ジョイ 八木店まで1277m
Hospital病院  Asa 2630m to civil hospital
安佐市民病院まで2630m
Supermarketスーパー  Izumi 1366m to Yagi store
イズミ 八木店まで1366m
Location
|