New Homes » Chugoku » Hiroshima » Asaminami
 
| | Hiroshima, Hiroshima Prefecture Asaminami 広島県広島市安佐南区 |
| Hiroshima Rapid Transit Astram "Ban center" walking 15 minutes 広島高速交通アストラムライン「伴中央」歩15分 |
| Flat 35S Charm house 10 years Low-e glass pairs (except for some) Parallel parking two Allowed Entrance door of the electrical locking smart control equipped Bathroom with heating dryer Intafu with color monitor フラット35S まもりすまい10年間 Low-eペアガラス(一部除く) 並列駐車2台可 電気施錠スマートコントロール搭載の玄関扉 浴室暖房乾燥機付 カラーモニター付インターフ |
Features pickup 特徴ピックアップ | | Parking two Allowed / A quiet residential area / 2-story / Double-glazing / Underfloor Storage / TV monitor interphone 駐車2台可 /閑静な住宅地 /2階建 /複層ガラス /床下収納 /TVモニタ付インターホン | Price 価格 | | 24,800,000 yen 2480万円 | Floor plan 間取り | | 4LDK 4LDK | Units sold 販売戸数 | | 1 units 1戸 | Land area 土地面積 | | 135.79 sq m (41.07 tsubo) (Registration) 135.79m2(41.07坪)(登記) | Building area 建物面積 | | 97.2 sq m (29.40 tsubo) (Registration) 97.2m2(29.40坪)(登記) | Driveway burden-road 私道負担・道路 | | Nothing, South 6m width 無、南6m幅 | Completion date 完成時期(築年月) | | January 2014 2014年1月 | Address 住所 | | Hiroshima, Hiroshima Prefecture Asaminami Numata Oaza accompanied 広島県広島市安佐南区沼田町大字伴 | Traffic 交通 | | Hiroshima Rapid Transit Astram "Ban center" walking 15 minutes 広島高速交通アストラムライン「伴中央」歩15分
| Person in charge 担当者より | | The person in charge (stock) Juken 担当者(株)住研 | Contact お問い合せ先 | | TEL: 0800-603-3432 [Toll free] mobile phone ・ Also available from PHS Caller ID is not notified Please contact the "saw SUUMO (Sumo)" If it does not lead, If the real estate company TEL:0800-603-3432【通話料無料】携帯電話・PHSからもご利用いただけます 発信者番号は通知されません 「SUUMO(スーモ)を見た」と問い合わせください つながらない方、不動産会社の方は
| Building coverage, floor area ratio 建ぺい率・容積率 | | 60% ・ 200% 60%・200% | Time residents 入居時期 | | Consultation 相談 | Land of the right form 土地の権利形態 | | Ownership 所有権 | Structure and method of construction 構造・工法 | | Wooden 2-story 木造2階建 | Use district 用途地域 | | Semi-industrial 準工業 | Other limitations その他制限事項 | | ※ Property information packed Asaminami ☆ [Search in the living Research, Inc.!] ※安佐南区の物件情報満載☆【住研社で検索!】 | Overview and notices その他概要・特記事項 | | The person in charge :( stock) Juken, Facilities: Public Water Supply, This sewage, Individual LPG, Building confirmation number: Se 01785, Parking: car space 担当者:(株)住研、設備:公営水道、本下水、個別LPG、建築確認番号:セ01785、駐車場:カースペース | Company profile 会社概要 | | <Mediation> Governor of Hiroshima Prefecture (3) No. 008815 (Ltd.) Jukensha Yubinbango731-5136 Hiroshima, Hiroshima Prefecture Saeki-ku Rakurakuen 2-1-30 <仲介>広島県知事(3)第008815号(株)住研社〒731-5136 広島県広島市佐伯区楽々園2-1-30 |
Local appearance photo現地外観写真  December 15 shooting
12月15日撮影
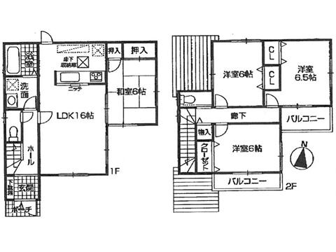
Floor plan間取り図  24,800,000 yen, 4LDK, Land area 135.79 sq m , Building area 97.2 sq m
2480万円、4LDK、土地面積135.79m2、建物面積97.2m2
Local appearance photo現地外観写真  December 15 shooting
12月15日撮影
 Local photos, including front road
前面道路含む現地写真
Primary school小学校  1032m until Otsuka Elementary School
大塚小学校まで1032m
 Local photos, including front road
前面道路含む現地写真
Junior high school中学校  1178m until Otsuka junior high school
大塚中学校まで1178m
Supermarketスーパー  Furesuta 1251m to A City shop
フレスタ Aシティー店まで1251m
 Makkusubaryu 1154m until the westerly Xindu shop
マックスバリュー 西風新都店まで1154m
Home centerホームセンター  Nafuko 1218m until the westerly Xindu shop
ナフコ 西風新都店まで1218m
Other Environmental Photoその他環境写真  docomo 1366m until the westerly Xindu shop
docomo 西風新都店まで1366m
Location
|