New Homes » Chugoku » Hiroshima » Hatsukaichi
 
| | Hatsukaichi, Hiroshima Prefecture 広島県廿日市市 |
| Hiroden bus "Miyauchi Kawada bus stop" walk 8 minutes 広電バス「宮内河田バス停」歩8分 |
| ◇ ◆ ◇ ◆ Popular Mine High ◇ ◆ ◇ ◆ Eco hot water supply adoption of all-electric Eco payment in energy-saving measures! ◇ ◆ ◇ ◆ ◇ ◆ ◇ ◆ ◇ ◆ ◇ ◆ ◇ ◇◆◇◆人気の峰高◇◆◇◆オール電化のエコ給湯採用 省エネ対策で支払いもエコ!◇◆◇◆◇◆◇◆◇◆◇◆◇ |
| ~ NanaMamoru Estate Recommended point ~ ☆ Cute use of all-electric homes ☆ ☆ There is also a 18 Pledge, Comfortable life in the spacious living-dining ☆ ☆ Parallel two parking equipped ☆ ~ 七護エステートおすすめポイント ~ ☆オール電化住宅のエコキュート使用☆ ☆18帖もある、ひろびろとしたリビングダイニングで快適生活☆ ☆並列2台駐車場完備☆ |
Features pickup 特徴ピックアップ | | Parking two Allowed / Immediate Available / 2 along the line more accessible / LDK18 tatami mats or more / Energy-saving water heaters / It is close to golf course / Super close / System kitchen / Bathroom Dryer / Yang per good / A quiet residential area / Around traffic fewer / Or more before road 6m / Shaping land / Washbasin with shower / Face-to-face kitchen / Toilet 2 places / 2-story / Double-glazing / Otobasu / Warm water washing toilet seat / The window in the bathroom / Ventilation good / IH cooking heater / Dish washing dryer / Water filter / All-electric / Maintained sidewalk 駐車2台可 /即入居可 /2沿線以上利用可 /LDK18畳以上 /省エネ給湯器 /ゴルフ場が近い /スーパーが近い /システムキッチン /浴室乾燥機 /陽当り良好 /閑静な住宅地 /周辺交通量少なめ /前道6m以上 /整形地 /シャワー付洗面台 /対面式キッチン /トイレ2ヶ所 /2階建 /複層ガラス /オートバス /温水洗浄便座 /浴室に窓 /通風良好 /IHクッキングヒーター /食器洗乾燥機 /浄水器 /オール電化 /整備された歩道 | Event information イベント情報 | | ============================================== From time to time your visit possible ! Please visit the day be accepted mortgage free consultation even during the reception! Customers who visit hope not, please do not hesitate to contact me. ※ It is also possible guidance on weekdays and late time zone. Contact [Toll free] 0120-238-754 Area of real estate you would like'm Shichigo ・ It summarizes the properties in your budget we will propose. Please feel free to contact us. ============================================== ==============================================随時ご見学可能です!ご見学は当日受付可住宅ローン無料相談も受付中!ご見学希望のお客様はお気軽にご連絡下さいませ。※平日や遅い時間帯もご案内可能です。お問合せは 【通話料無料】0120-238-754 不動産はシチゴよご希望の地域・ご予算内の物件をまとめてご提案させていただきます。 お気軽にご連絡くださいませ。============================================== | Price 価格 | | 28.8 million yen 2880万円 | Floor plan 間取り | | 4LDK 4LDK | Units sold 販売戸数 | | 1 units 1戸 | Land area 土地面積 | | 150.02 sq m 150.02m2 | Building area 建物面積 | | 108.88 sq m 108.88m2 | Driveway burden-road 私道負担・道路 | | Nothing, Southeast 9m width 無、南東9m幅 | Completion date 完成時期(築年月) | | October 2013 2013年10月 | Address 住所 | | Hatsukaichi, Hiroshima Prefecture Minetaka 2 広島県廿日市市峰高2 | Traffic 交通 | | Hiroden bus "Miyauchi Kawada bus stop" walk an 8-minute JR Sanyo Line "Miyauchikushido" walk 17 minutes Hiroden Miyajima Line "Miyauchi" walk 18 minutes 広電バス「宮内河田バス停」歩8分JR山陽本線「宮内串戸」歩17分 広島電鉄宮島線「宮内」歩18分
| Person in charge 担当者より | | The person in charge on the forest Eiji Age: 30 Daigyokai experience: I Mori after 10 years. Let's look together until it Meguriae the best properties. ~ I go to a good fishing holiday like the sea ~ 担当者上森 英司年齢:30代業界経験:10年うえもりです。最高の物件に巡り合えるまで一緒に探しましょう。 ~ 海が好きで休日はよく釣りに行ってます ~ | Contact お問い合せ先 | | TEL: 0800-805-6299 [Toll free] mobile phone ・ Also available from PHS Caller ID is not notified Please contact the "saw SUUMO (Sumo)" If it does not lead, If the real estate company TEL:0800-805-6299【通話料無料】携帯電話・PHSからもご利用いただけます 発信者番号は通知されません 「SUUMO(スーモ)を見た」と問い合わせください つながらない方、不動産会社の方は
| Building coverage, floor area ratio 建ぺい率・容積率 | | 40% ・ 80% 40%・80% | Time residents 入居時期 | | Immediate available 即入居可 | Land of the right form 土地の権利形態 | | Ownership 所有権 | Structure and method of construction 構造・工法 | | Wooden 2-story 木造2階建 | Use district 用途地域 | | One low-rise 1種低層 | Overview and notices その他概要・特記事項 | | Contact: above forest Eiji, Facilities: Public Water Supply, This sewage, All-electric, Parking: car space 担当者:上森 英司、設備:公営水道、本下水、オール電化、駐車場:カースペース | Company profile 会社概要 | | <Seller> Governor of Hiroshima Prefecture (2) No. 009265 (Ltd.) NanaMamoru Estate Yubinbango730-0844 Hiroshima medium Hiroshima District Funairisaiwaicho 9-18 <売主>広島県知事(2)第009265号(株)七護エステート〒730-0844 広島県広島市中区舟入幸町9-18 |
Local appearance photo現地外観写真  Local (11 May 2013) Shooting
現地(2013年11月)撮影
Livingリビング  Indoor site (November 2013) Shooting
室内現地(2013年11月)撮影
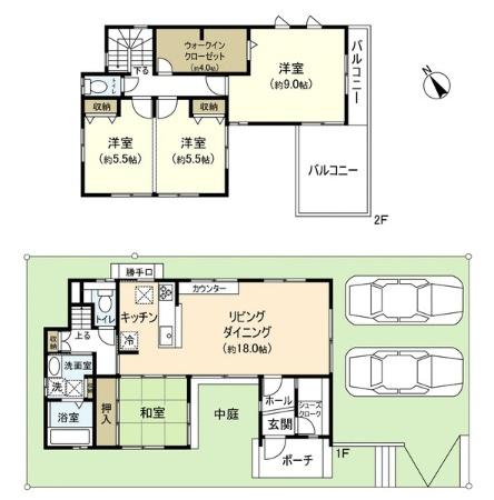
Floor plan間取り図  28.8 million yen, 4LDK, Land area 150.02 sq m , Building area 108.88 sq m
2880万円、4LDK、土地面積150.02m2、建物面積108.88m2
Livingリビング  Indoor site (November 2013) Shooting
室内現地(2013年11月)撮影
Bathroom浴室  Indoor site (November 2013) Shooting
室内現地(2013年11月)撮影
Kitchenキッチン  Indoor site (November 2013) Shooting
室内現地(2013年11月)撮影
Non-living roomリビング以外の居室  Indoor site (November 2013) Shooting
室内現地(2013年11月)撮影
Entrance玄関  Local site (November 2013) Shooting
現地現地(2013年11月)撮影
Wash basin, toilet洗面台・洗面所  Indoor site (November 2013) Shooting
室内現地(2013年11月)撮影
Receipt収納  Indoor site (November 2013) Shooting
室内現地(2013年11月)撮影
Parking lot駐車場  Local (11 May 2013) Shooting
現地(2013年11月)撮影
Balconyバルコニー  Local (11 May 2013) Shooting
現地(2013年11月)撮影
Other introspectionその他内観  Indoor site (November 2013) Shooting
室内現地(2013年11月)撮影
Livingリビング  Indoor site (November 2013) Shooting
室内現地(2013年11月)撮影
Non-living roomリビング以外の居室  Indoor site (November 2013) Shooting
室内現地(2013年11月)撮影
Entrance玄関  Local site (November 2013) Shooting
現地現地(2013年11月)撮影
Receipt収納  Indoor site (November 2013) Shooting
室内現地(2013年11月)撮影
Other introspectionその他内観  Indoor (11 May 2013) Shooting
室内(2013年11月)撮影
Non-living roomリビング以外の居室  Indoor site (November 2013) Shooting
室内現地(2013年11月)撮影
Entrance玄関  Local (11 May 2013) Shooting
現地(2013年11月)撮影
Receipt収納  Everyone rejoice spacious storage!
みんな喜ぶひろびろ収納!
View photos from the dwelling unit住戸からの眺望写真  View preeminent! It overlooks the Miyajima and Seto Inland Sea
眺望抜群!宮島や瀬戸内海を見渡せます
Wash basin, toilet洗面台・洗面所  Wash ・ Bathing is both bright and comfortable
洗面・お風呂共に明るく快適です
Toiletトイレ  There is something useful storage space to the toilet!
トイレにも何かと便利な収納スペースあり!
Location
|