2012April
22,800,000 yen, 5LDK, 110.13 sq m
New Homes » Chugoku » Hiroshima » Higashi-Hiroshima City
 
| | Hiroshima Prefecture Higashi-Hiroshima City 広島県東広島市 |
| Bus "Kamigumi" walk 1 minute バス「上組」歩1分 |
| Residence of bright corner lot that is wrapped in plenty of sunlight Family smile at the grace of the sun! ! たっぷりの陽光に包まれる明るい角地の住まい 太陽の恵みで家族も笑顔!! |
| «We can visit» ● container storage is very active with a lot of storage capacity! ! Yes together from the spacious bathroom Yes in the second floor where you can enjoy the bath time and floor heating Yes children to be wrapped in the gentle warmth ・ ・ ・ From living ・ ・ ・ Produce a space that conversation of family bouncy ≪ご見学できます≫●たっぷりの収納力を備えたコンテナ収納が大活躍!!〇優しいぬくもりに包まれる床暖房〇お子様と一緒にバスタイムを楽しめる広々浴室〇中2階から・・・リビングから・・・家族の会話が弾む空間を演出 |
Features pickup 特徴ピックアップ | | Pre-ground survey / LDK15 tatami mats or more / Or more before road 6m / Corner lot / Face-to-face kitchen / Double-glazing / loft / Living stairs / Flat terrain / Floor heating 地盤調査済 /LDK15畳以上 /前道6m以上 /角地 /対面式キッチン /複層ガラス /ロフト /リビング階段 /平坦地 /床暖房 | Price 価格 | | 22,800,000 yen 2280万円 | Floor plan 間取り | | 5LDK 5LDK | Units sold 販売戸数 | | 1 units 1戸 | Land area 土地面積 | | 149.5 sq m (registration) 149.5m2(登記) | Building area 建物面積 | | 110.13 sq m (registration) 110.13m2(登記) | Driveway burden-road 私道負担・道路 | | Nothing 無 | Completion date 完成時期(築年月) | | April 2012 2012年4月 | Address 住所 | | Hiroshima Prefecture Higashi-Hiroshima City Hachihonmatsuchoida 広島県東広島市八本松町飯田 | Traffic 交通 | | Bus "Kamigumi" walk 1 minute バス「上組」歩1分 | Contact お問い合せ先 | | TEL: 0800-603-1503 [Toll free] mobile phone ・ Also available from PHS Caller ID is not notified Please contact the "saw SUUMO (Sumo)" If it does not lead, If the real estate company TEL:0800-603-1503【通話料無料】携帯電話・PHSからもご利用いただけます 発信者番号は通知されません 「SUUMO(スーモ)を見た」と問い合わせください つながらない方、不動産会社の方は
| Time residents 入居時期 | | Consultation 相談 | Land of the right form 土地の権利形態 | | Ownership 所有権 | Structure and method of construction 構造・工法 | | Wooden 2-story 木造2階建 | Overview and notices その他概要・特記事項 | | Building confirmation number: 2189, Parking: car space 建築確認番号:2189、駐車場:カースペース | Company profile 会社概要 | | <Mediation> Minister of Land, Infrastructure and Transport (6) Article 004315 No. Totate home sales (Ltd.) Higashi office Yubinbango739-0025 Hiroshima Higashi Saijochuo 6-12-18 <仲介>国土交通大臣(6)第004315号トータテ住宅販売(株)東広島営業所〒739-0025 広島県東広島市西条中央6-12-18 |
Local appearance photo現地外観写真  Good per sun! Warm is a pretty appearance!
陽当たり良好!温かみのあるかわいらしい外観です!
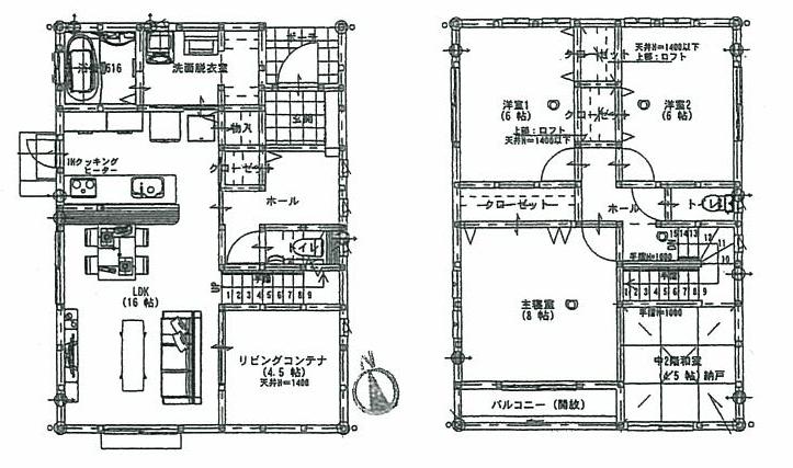
Floor plan間取り図  22,800,000 yen, 5LDK, Land area 149.5 sq m , Building area 110.13 sq m
2280万円、5LDK、土地面積149.5m2、建物面積110.13m2
Kitchenキッチン  Spacious kitchen! Dishes also be fun going
広いキッチン!お料理も楽しくなりそう
Bathroom浴室  Slowly enjoy spacious bathroom also sitz bath
半身浴もゆっくり楽しめる広々浴室
Livingリビング  Floor heating to be wrapped in warmth!
ぬくもりに包まれる床暖房!
 Local appearance photo
現地外観写真
 Kitchen
キッチン
 Non-living room
リビング以外の居室
 Wash basin, toilet
洗面台・洗面所
 Receipt
収納
 Toilet
トイレ
 Garden
庭
Supermarketスーパー  Izumi until Hachihonmatsu shop 1413m
イズミ八本松店まで1413m
 Local appearance photo
現地外観写真
 Non-living room
リビング以外の居室
 Receipt
収納
 Garden
庭
 Shoji until Hachihonmatsuminami shop 2266m
ショージ八本松南店まで2266m
 Local appearance photo
現地外観写真
 Non-living room
リビング以外の居室
 Receipt
収納
Location
|