New Homes » Chugoku » Hiroshima » Higashi-Hiroshima City
 
| | Hiroshima Prefecture Higashi-Hiroshima City 広島県東広島市 |
| Geiyo bus "Enjoji north" walk 2 minutes 芸陽バス「円城寺北」歩2分 |
| Century ・ 21 Fair competitions now found autumn! ! センチュリー・21 秋の見つかるフェア開催中!! |
Features pickup 特徴ピックアップ | | Parking three or more possible / LDK18 tatami mats or more / Energy-saving water heaters / See the mountain / System kitchen / Bathroom Dryer / Yang per good / All room storage / A quiet residential area / Around traffic fewer / Or more before road 6m / Japanese-style room / Shaping land / Washbasin with shower / Face-to-face kitchen / Toilet 2 places / 2-story / Double-glazing / Otobasu / Warm water washing toilet seat / Underfloor Storage / The window in the bathroom / TV monitor interphone / Leafy residential area / Ventilation good / IH cooking heater / Walk-in closet / All-electric / Located on a hill 駐車3台以上可 /LDK18畳以上 /省エネ給湯器 /山が見える /システムキッチン /浴室乾燥機 /陽当り良好 /全居室収納 /閑静な住宅地 /周辺交通量少なめ /前道6m以上 /和室 /整形地 /シャワー付洗面台 /対面式キッチン /トイレ2ヶ所 /2階建 /複層ガラス /オートバス /温水洗浄便座 /床下収納 /浴室に窓 /TVモニタ付インターホン /緑豊かな住宅地 /通風良好 /IHクッキングヒーター /ウォークインクロゼット /オール電化 /高台に立地 | Price 価格 | | 23,900,000 yen 2390万円 | Floor plan 間取り | | 4LDK + S (storeroom) 4LDK+S(納戸) | Units sold 販売戸数 | | 1 units 1戸 | Total units 総戸数 | | 1 units 1戸 | Land area 土地面積 | | 128.14 sq m (38.76 square meters) 128.14m2(38.76坪) | Building area 建物面積 | | 115.56 sq m (34.95 tsubo) (measured) 115.56m2(34.95坪)(実測) | Driveway burden-road 私道負担・道路 | | Nothing, Northeast 6m width 無、北東6m幅 | Completion date 完成時期(築年月) | | June 2013 2013年6月 | Address 住所 | | Hiroshima Prefecture Higashi-Hiroshima City Saijochomisonou 広島県東広島市西条町御薗宇 | Traffic 交通 | | Geiyo bus "Enjoji north" walk 2 minutes 芸陽バス「円城寺北」歩2分 | Contact お問い合せ先 | | Ya Real Estate Sales Co., Ltd. Hiroshima shop TEL: 0800-602-5570 [Toll free] mobile phone ・ Also available from PHS Caller ID is not notified Please contact the "saw SUUMO (Sumo)" If it does not lead, If the real estate company みやび不動産販売(株)広島店TEL:0800-602-5570【通話料無料】携帯電話・PHSからもご利用いただけます 発信者番号は通知されません 「SUUMO(スーモ)を見た」と問い合わせください つながらない方、不動産会社の方は
| Building coverage, floor area ratio 建ぺい率・容積率 | | 60% ・ 200% 60%・200% | Time residents 入居時期 | | Consultation 相談 | Land of the right form 土地の権利形態 | | Ownership 所有権 | Structure and method of construction 構造・工法 | | Wooden second floor underground 1 story 木造2階地下1階建 | Use district 用途地域 | | One middle and high 1種中高 | Overview and notices その他概要・特記事項 | | Facilities: Public Water Supply, This sewage, All-electric, Parking: car space 設備:公営水道、本下水、オール電化、駐車場:カースペース | Company profile 会社概要 | | <Mediation> Minister of Land, Infrastructure and Transport (1) the first 008,158 No. Ya Real Estate Sales Co., Ltd. Hiroshima shop Yubinbango732-0819 Hiroshima, Hiroshima Prefecture, Minami-ku, Danbarayamasaki 2-2 - 2 <仲介>国土交通大臣(1)第008158号みやび不動産販売(株)広島店〒732-0819 広島県広島市南区段原山崎2-2ー2 |
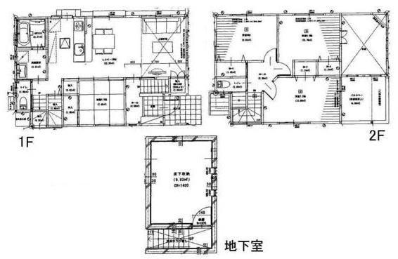
Floor plan間取り図  23,900,000 yen, 4LDK + S (storeroom), Land area 128.14 sq m , Building area 115.56 sq m
2390万円、4LDK+S(納戸)、土地面積128.14m2、建物面積115.56m2
Local appearance photo現地外観写真  Local (May 2013) Shooting
現地(2013年5月)撮影
Livingリビング  Indoor (June 2013) Shooting
室内(2013年6月)撮影
Bathroom浴室  Indoor (June 2013) Shooting
室内(2013年6月)撮影
Kitchenキッチン  Indoor (June 2013) Shooting
室内(2013年6月)撮影
Wash basin, toilet洗面台・洗面所  Indoor (June 2013) Shooting
室内(2013年6月)撮影
Balconyバルコニー  Local (June 2013) Shooting
現地(2013年6月)撮影
View photos from the dwelling unit住戸からの眺望写真  View from the site (June 2013) Shooting
現地からの眺望(2013年6月)撮影
Location
|