New Homes » Chugoku » Hiroshima » Higashi-Hiroshima City
 
| | Hiroshima Prefecture Higashi-Hiroshima City 広島県東広島市 |
| Bus "SanHisashi 2-chome" walk 5 minutes バス「三永2丁目」歩5分 |
| Sunny space shine in a bright light from the south As the car is also small quiet residential area 南から明るい光が射し込む陽だまり空間 車の通りも少ない閑静な住宅地 |
| «We can visit» ● always comfortable bath time Yes thermal insulation properties with since the solar power system is friendly to the household ® Yes bathroom dryer ・ Housing that sound insulation Peasasshi Yes parking is facing the happy front 6M road also not good mom ≪ご見学できます≫●太陽光発電システムなので家計にやさしいですョ〇浴室乾燥機付きでいつも快適バスタイム〇断熱性・遮音性ペアサッシ〇駐車が苦手なママにも嬉しい前面6M道路に面した住まい |
Features pickup 特徴ピックアップ | | Pre-ground survey / Parking two Allowed / Fiscal year Available / System kitchen / Yang per good / All room storage / A quiet residential area / LDK15 tatami mats or more / Or more before road 6m / Washbasin with shower / Double-glazing / Underfloor Storage / The window in the bathroom / TV monitor interphone / Urban neighborhood / Ventilation good / Readjustment land within 地盤調査済 /駐車2台可 /年度内入居可 /システムキッチン /陽当り良好 /全居室収納 /閑静な住宅地 /LDK15畳以上 /前道6m以上 /シャワー付洗面台 /複層ガラス /床下収納 /浴室に窓 /TVモニタ付インターホン /都市近郊 /通風良好 /区画整理地内 | Price 価格 | | 19,800,000 yen 1980万円 | Floor plan 間取り | | 4LDK 4LDK | Units sold 販売戸数 | | 1 units 1戸 | Land area 土地面積 | | 164.64 sq m 164.64m2 | Building area 建物面積 | | 95.58 sq m 95.58m2 | Driveway burden-road 私道負担・道路 | | Nothing, South 6m width 無、南6m幅 | Completion date 完成時期(築年月) | | October 2013 2013年10月 | Address 住所 | | Hiroshima Prefecture Higashi-Hiroshima City, three permanent 2 広島県東広島市三永2 | Traffic 交通 | | Bus "SanHisashi 2-chome" walk 5 minutes バス「三永2丁目」歩5分 | Contact お問い合せ先 | | TEL: 0800-603-1503 [Toll free] mobile phone ・ Also available from PHS Caller ID is not notified Please contact the "saw SUUMO (Sumo)" If it does not lead, If the real estate company TEL:0800-603-1503【通話料無料】携帯電話・PHSからもご利用いただけます 発信者番号は通知されません 「SUUMO(スーモ)を見た」と問い合わせください つながらない方、不動産会社の方は
| Time residents 入居時期 | | Consultation 相談 | Land of the right form 土地の権利形態 | | Ownership 所有権 | Structure and method of construction 構造・工法 | | Wooden 2-story 木造2階建 | Overview and notices その他概要・特記事項 | | Building confirmation number: 109011, Parking: car space 建築確認番号:109011、駐車場:カースペース | Company profile 会社概要 | | <Mediation> Minister of Land, Infrastructure and Transport (6) Article 004315 No. Totate home sales (Ltd.) Higashi office Yubinbango739-0025 Hiroshima Higashi Saijochuo 6-12-18 <仲介>国土交通大臣(6)第004315号トータテ住宅販売(株)東広島営業所〒739-0025 広島県東広島市西条中央6-12-18 |
Local appearance photo現地外観写真  With friendly household solar power system
家計にやさしい太陽光発電システム付
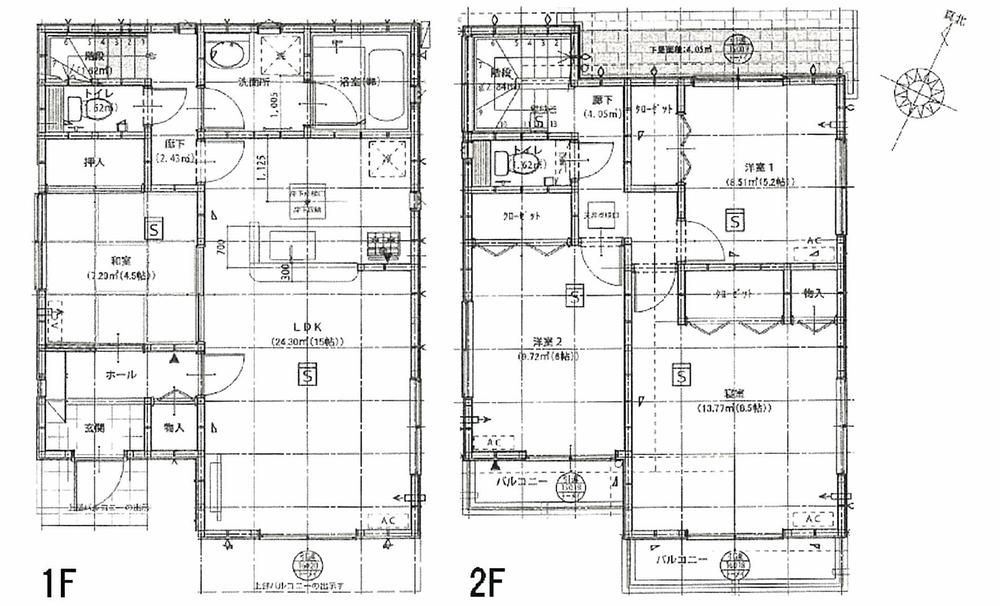
Floor plan間取り図  19,800,000 yen, 4LDK, Land area 164.64 sq m , Building area 95.58 sq m
1980万円、4LDK、土地面積164.64m2、建物面積95.58m2
Non-living roomリビング以外の居室  Space for relaxation!
くつろぎの空間!
Bathroom浴室  Comfortable bath time
快適なバスタイム
Livingリビング  Bright living room!
明るいリビング!
Local appearance photo現地外観写真  Local (11 May 2013) Shooting
現地(2013年11月)撮影
Kitchenキッチン  Indoor (10 May 2013) Shooting
室内(2013年10月)撮影
Non-living roomリビング以外の居室  Local (10 May 2013) Shooting
現地(2013年10月)撮影
Wash basin, toilet洗面台・洗面所  Local (10 May 2013) Shooting
現地(2013年10月)撮影
Receipt収納  Local (10 May 2013) Shooting
現地(2013年10月)撮影
Toiletトイレ  Local (10 May 2013) Shooting
現地(2013年10月)撮影
Shopping centreショッピングセンター  3506m until the light on the Fuji Grand Higashi shop
ライトオンフジグラン東広島店まで3506m
Other introspectionその他内観  Local (10 May 2013) Shooting
現地(2013年10月)撮影
Livingリビング  Local (10 May 2013) Shooting
現地(2013年10月)撮影
Non-living roomリビング以外の居室  Local (10 May 2013) Shooting
現地(2013年10月)撮影
Wash basin, toilet洗面台・洗面所  Local (10 May 2013) Shooting
現地(2013年10月)撮影
Receipt収納  Indoor (10 May 2013) Shooting
室内(2013年10月)撮影
Supermarketスーパー  Until Shoji Taguchi shop 3128m
ショージ田口店まで3128m
Entrance玄関  Local (10 May 2013) Shooting
現地(2013年10月)撮影
Livingリビング  Local (10 May 2013) Shooting
現地(2013年10月)撮影
Non-living roomリビング以外の居室  Indoor (10 May 2013) Shooting
室内(2013年10月)撮影
Location
|