New Homes » Chugoku » Hiroshima » Asaminami
 
| | Hiroshima, Hiroshima Prefecture Asaminami 広島県広島市安佐南区 |
| Bus "Takeda Yamadan underground" walk 3 minutes バス「武田山団地下」歩3分 |
| All-electric Flat 35S Available Parking two Allowed Loft room Bus stop 3-minute walk Face-to-face kitchen 4LDK Land about 57 square meters オール電化 フラット35S利用可 駐車2台可 ロフト部屋 バス停徒歩3分 対面式キッチン 4LDK 土地約57坪 |
Features pickup 特徴ピックアップ | | Parking two Allowed / LDK20 tatami mats or more / Land 50 square meters or more / Japanese-style room / Face-to-face kitchen / loft / All-electric 駐車2台可 /LDK20畳以上 /土地50坪以上 /和室 /対面式キッチン /ロフト /オール電化 | Price 価格 | | 26,800,000 yen 2680万円 | Floor plan 間取り | | 4LDK 4LDK | Units sold 販売戸数 | | 1 units 1戸 | Land area 土地面積 | | 188.91 sq m 188.91m2 | Building area 建物面積 | | 115.93 sq m 115.93m2 | Driveway burden-road 私道負担・道路 | | Nothing, West 4m width 無、西4m幅 | Completion date 完成時期(築年月) | | May 2013 2013年5月 | Address 住所 | | Hiroshima, Hiroshima Prefecture Asaminami Aida 3 広島県広島市安佐南区相田3 | Traffic 交通 | | Bus "Takeda Yamadan underground" walk 3 minutes バス「武田山団地下」歩3分 | Contact お問い合せ先 | | TEL: 0800-603-1864 [Toll free] mobile phone ・ Also available from PHS Caller ID is not notified Please contact the "saw SUUMO (Sumo)" If it does not lead, If the real estate company TEL:0800-603-1864【通話料無料】携帯電話・PHSからもご利用いただけます 発信者番号は通知されません 「SUUMO(スーモ)を見た」と問い合わせください つながらない方、不動産会社の方は
| Building coverage, floor area ratio 建ぺい率・容積率 | | Fifty percent ・ Hundred percent 50%・100% | Time residents 入居時期 | | Consultation 相談 | Land of the right form 土地の権利形態 | | Ownership 所有権 | Structure and method of construction 構造・工法 | | Wooden 2-story 木造2階建 | Use district 用途地域 | | One low-rise 1種低層 | Overview and notices その他概要・特記事項 | | Facilities: Public Water Supply, This sewage, All-electric, Building confirmation number: Se 02403, Parking: car space 設備:公営水道、本下水、オール電化、建築確認番号:セ02403、駐車場:カースペース | Company profile 会社概要 | | <Mediation> Governor of Hiroshima Prefecture (6) Article 006776 No. Heiwa Real Estate Sales Co., Ltd. Yubinbango731-0144 Hiroshima, Hiroshima Prefecture Asaminami Takatorikita 3-3-25 <仲介>広島県知事(6)第006776号平和不動産販売(株)〒731-0144 広島県広島市安佐南区高取北3-3-25 |
Local appearance photo現地外観写真  All-electric
オール電化
 Living
リビング
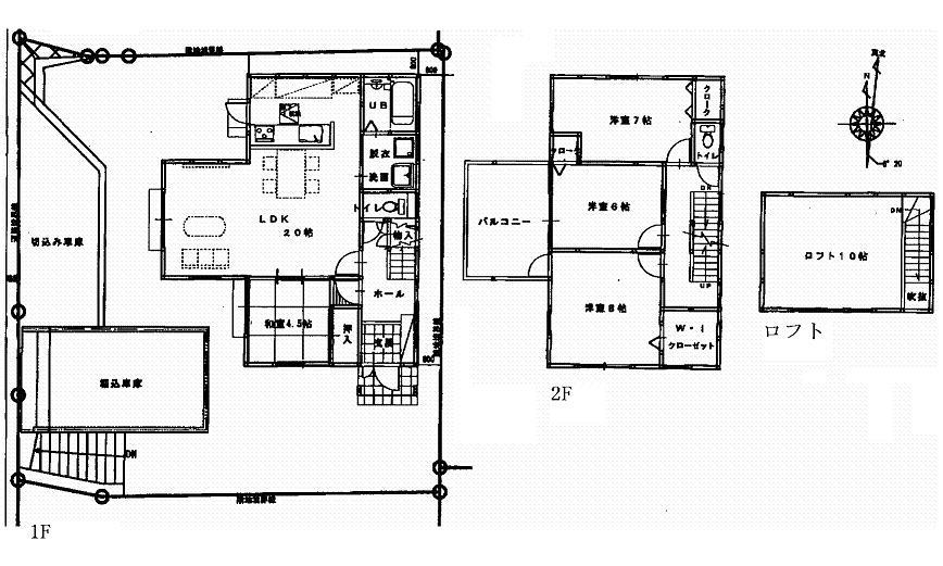
Floor plan間取り図  26,800,000 yen, 4LDK, Land area 188.91 sq m , Building area 115.93 sq m 10 Pledge of loft room Yes
2680万円、4LDK、土地面積188.91m2、建物面積115.93m2 10帖のロフト部屋有
Local appearance photo現地外観写真  Parking: Two Allowed
駐車:2台可
 Bathroom
浴室
 Kitchen
キッチン
 Entrance
玄関
 Wash basin, toilet
洗面台・洗面所
 Toilet
トイレ
Local photos, including front road前面道路含む現地写真  Front street: West 4m
前面道路:西4m
 Other introspection
その他内観
 Other local
その他現地
 Local appearance photo
現地外観写真
 Local photos, including front road
前面道路含む現地写真
 Other introspection
その他内観
 Local appearance photo
現地外観写真
 Local photos, including front road
前面道路含む現地写真
 Other introspection
その他内観
 Local appearance photo
現地外観写真
 Local appearance photo
現地外観写真
Location
|