|
|
Hiroshima, Hiroshima Prefecture Asaminami
広島県広島市安佐南区
|
|
Hiroshima Rapid Transit Astram "Andong" walk 14 minutes
広島高速交通アストラムライン「安東」歩14分
|
|
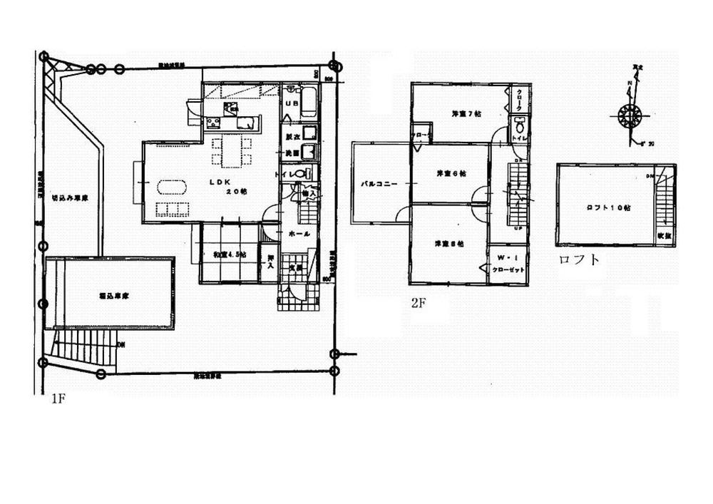
Housed in the loft room is large capacity! Bedroom, Children's room, It can also be used as a studio! !
ロフト部屋付で収納が大容量!寝室、子供部屋、アトリエとしても使えます!!
|
|
■ All-electric ■ Yes loft room ■ Parking two Allowed
■オール電化■ロフト部屋あり■駐車2台可
|
Features pickup 特徴ピックアップ | | Parking two Allowed / LDK20 tatami mats or more / Land 50 square meters or more / A quiet residential area / Japanese-style room / Shaping land / 2-story / loft / All-electric / Located on a hill 駐車2台可 /LDK20畳以上 /土地50坪以上 /閑静な住宅地 /和室 /整形地 /2階建 /ロフト /オール電化 /高台に立地 |
Price 価格 | | 26,800,000 yen 2680万円 |
Floor plan 間取り | | 4LDK 4LDK |
Units sold 販売戸数 | | 1 units 1戸 |
Land area 土地面積 | | 188.91 sq m (57.14 square meters) 188.91m2(57.14坪) |
Building area 建物面積 | | 115.93 sq m (35.06 tsubo) (Registration) 115.93m2(35.06坪)(登記) |
Driveway burden-road 私道負担・道路 | | Nothing, West 4m width 無、西4m幅 |
Completion date 完成時期(築年月) | | May 2013 2013年5月 |
Address 住所 | | Hiroshima, Hiroshima Prefecture Asaminami Aida 3 広島県広島市安佐南区相田3 |
Traffic 交通 | | Hiroshima Rapid Transit Astram "Andong" walk 14 minutes Bus "Takeda Yamadan underground" walk 3 minutes 広島高速交通アストラムライン「安東」歩14分 バス「武田山団地下」歩3分 |
Contact お問い合せ先 | | TEL: 0800-603-1469 [Toll free] mobile phone ・ Also available from PHS Caller ID is not notified Please contact the "saw SUUMO (Sumo)" If it does not lead, If the real estate company TEL:0800-603-1469【通話料無料】携帯電話・PHSからもご利用いただけます 発信者番号は通知されません 「SUUMO(スーモ)を見た」と問い合わせください つながらない方、不動産会社の方は
|
Building coverage, floor area ratio 建ぺい率・容積率 | | Fifty percent ・ Hundred percent 50%・100% |
Time residents 入居時期 | | Consultation 相談 |
Land of the right form 土地の権利形態 | | Ownership 所有権 |
Structure and method of construction 構造・工法 | | Wooden 2-story 木造2階建 |
Use district 用途地域 | | One low-rise 1種低層 |
Overview and notices その他概要・特記事項 | | Facilities: Public Water Supply, This sewage, Building confirmation number: Hirokense 02403 設備:公営水道、本下水、建築確認番号:広建セ02403 |
Company profile 会社概要 | | <Mediation> Minister of Land, Infrastructure and Transport (12) Article 001483 No. Toa Estate Co., Ltd. Real Estate Information Center Yubinbango730-0051 Hiroshima Prefecture medium Hiroshima-ku, Otemachi 3-1-1 <仲介>国土交通大臣(12)第001483号東亜地所(株)不動産情報センター〒730-0051 広島県広島市中区大手町3-1-1 |