New Homes » Chugoku » Hiroshima » Asaminami


Hiroshima, Hiroshima Prefecture Asaminami
Bus "Takeda Yamadan underground" walk 3 minutes
All-electric Flat 35S Available Parking two Allowed Loft room Parking two Allowed
Features pickup
Parking two Allowed / Face-to-face kitchen / 2-story / loft / Walk-in closet / All-electric
Price
26,800,000 yen
Floor plan
4LDK
Units sold
1 units
Land area
188.91 sq m (57.14 tsubo) (Registration)
Building area
115.93 sq m (35.06 tsubo) (Registration)
Driveway burden-road
Nothing, West 4m width
Completion date
October 2013
Address
Hiroshima, Hiroshima Prefecture Asaminami Aida 3
Traffic
Bus "Takeda Yamadan underground" walk 3 minutes
Person in charge
The person in charge (stock) Juken
Contact
TEL: 0800-603-3432 [Toll free] mobile phone ・ Also available from PHS
Caller ID is not notified
Please contact the "saw SUUMO (Sumo)"
If it does not lead, If the real estate company
Building coverage, floor area ratio
Fifty percent ・ Hundred percent
Time residents
Consultation
Land of the right form
Ownership
Structure and method of construction
Wooden 2-story
Use district
One low-rise
Other limitations
※ Property information packed Asaminami ☆ [Search for "Jukensha"!]
Overview and notices
The person in charge :( stock) Juken, Facilities: Public Water Supply, This sewage, Building confirmation number: Hirokense 02403, Parking: Garage
Company profile
<Mediation> Governor of Hiroshima Prefecture (3) No. 008815 (Ltd.) Jukensha Yubinbango731-5136 Hiroshima, Hiroshima Prefecture Saeki-ku Rakurakuen 2-1-30


Local appearance photo
Local appearance photo

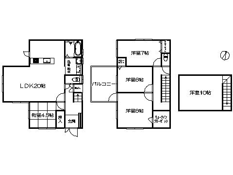
Floor plan

Floor plan. 26,800,000 yen, 4LDK, Land area 188.91 sq m , Building area 115.93 sq m   ※ Floor Plan current state priority
26,800,000 yen, 4LDK, Land area 188.91 sq m , Building area 115.93 sq m ※ Floor Plan current state priority

Local appearance photo
Local appearance photo

Local appearance photo
Local appearance photo

Entrance
Entrance

Local photos, including front road
Local photos, including front road

Junior high school

Junior high school. Anzai 2899m until junior high school
Anzai 2899m until junior high school

Local appearance photo
Local appearance photo

Entrance
Entrance

Local photos, including front road
Local photos, including front road

Primary school

Primary school. 1164m to safety elementary school
1164m to safety elementary school

Local appearance photo
Local appearance photo

Local appearance photo

Local appearance photo. Parking lot
Parking lot

Local appearance photo. Garage
Garage

Local appearance photo. Garden
Garden

Local appearance photo. Wood deck
Wood deck



Location