New Homes » Chugoku » Hiroshima » Asaminami


Hiroshima, Hiroshima Prefecture Asaminami
First taxi "Kamiyasu Tabasuminaru" walk 4 minutes
Conveniently Asutoramu station is located in the place good and convenient 4-minute walk. Eco Cute in all-electric ・ Residential of the highest standards of flat 35s.
■ Nice is a three-storey, Parking is available three if you put to good. ■ All-electric ・ Cute ■ Flat 35s Available ■ Veranda is located on the second floor and the third floor.
Features pickup
Parking two Allowed / System kitchen / Bathroom Dryer / All room storage / LDK15 tatami mats or more / Washbasin with shower / Face-to-face kitchen / Barrier-free / Toilet 2 places / Bathroom 1 tsubo or more / Double-glazing / Warm water washing toilet seat / The window in the bathroom / IH cooking heater / Dish washing dryer / Walk-in closet / Water filter / Three-story or more / All-electric / All rooms are two-sided lighting
Price
27.5 million yen
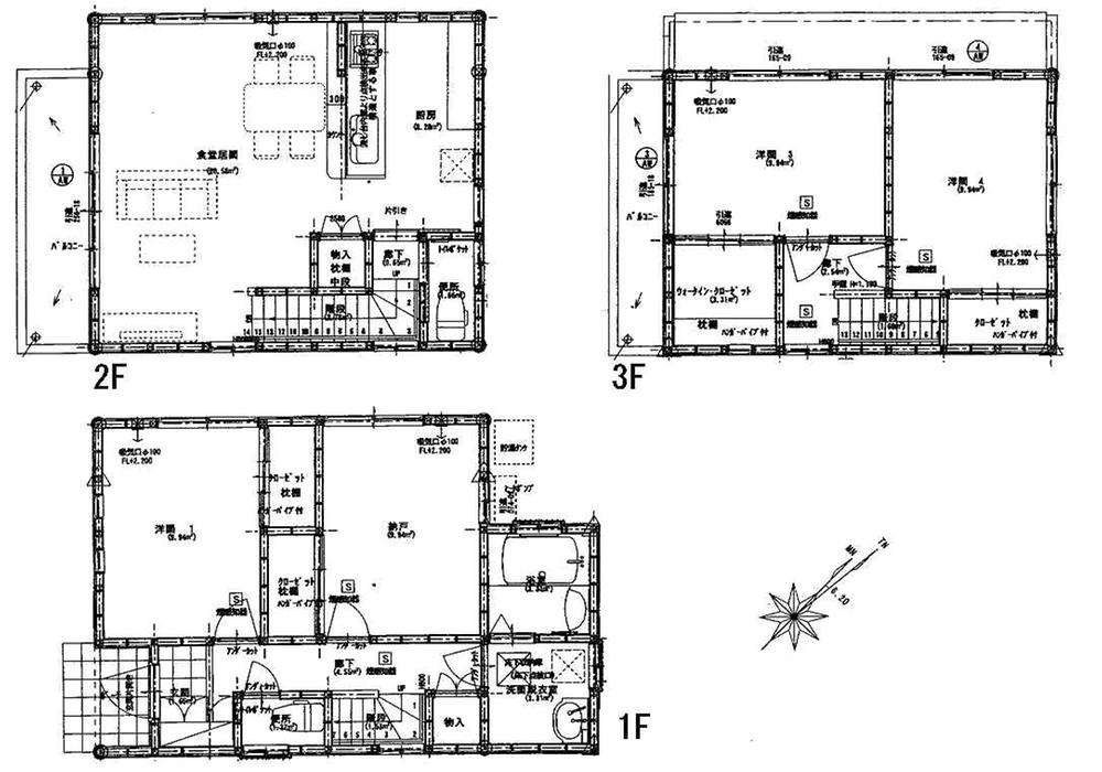
Floor plan
3LDK + S (storeroom)
Units sold
1 units
Land area
101.12 sq m (measured)
Building area
103.5 sq m (measured)
Driveway burden-road
Nothing, Southwest 5m width, North 4m width
Completion date
March 2013
Address
Hiroshima, Hiroshima Prefecture Asaminami Kamiyasu 2
Traffic
First taxi "Kamiyasu Tabasuminaru" walk 4 minutes Hiroshima Rapid Transit Astram "Kamiyasu" walk 4 minutes
Related links
[Related Sites of this company]
Person in charge
Butted the customers and knee in the person in charge of real-estate and building Keiji Hatano same eyes, As a real-estate transaction specialist full-time, Taking advantage of the expertise, We are striving every day in order to increase the satisfaction of our customers.
Contact
TEL: 0800-603-3620 [Toll free] mobile phone ・ Also available from PHS
Caller ID is not notified
Please contact the "saw SUUMO (Sumo)"
If it does not lead, If the real estate company
Expenses
Water contribution: 131,250 yen / Bulk
Building coverage, floor area ratio
60% ・ 200%
Time residents
Consultation
Land of the right form
Ownership
Structure and method of construction
Wooden three-story
Use district
Two mid-high
Overview and notices
Contact: Keiji Hatano, Facilities: Public Water Supply, This sewage, All-electric, Building confirmation number: Se 01540, Parking: car space
Company profile
<Mediation> Governor of Hiroshima Prefecture (6) Article 006948 No. cosmid Real Estate Co., Ltd. Yubinbango733-0002 Hiroshima, Hiroshima Prefecture, Nishi-ku, Kusunoki-cho, 1-13-11


Local appearance photo

Local appearance photo. Parking can be full.
Parking can be full.

Floor plan

Floor plan. 27.5 million yen, 3LDK + S (storeroom), Land area 101.12 sq m , Building area 103.5 sq m
27.5 million yen, 3LDK + S (storeroom), Land area 101.12 sq m , Building area 103.5 sq m

Living

Living. 17.4 tatami LDK
17.4 tatami LDK

Local appearance photo

Local appearance photo. Local (July 2013) Shooting
Local (July 2013) Shooting

Living

Living. 2013 July shooting
2013 July shooting

Bathroom

Bathroom. Tired Yuttarito because it is Hitotsubo type.
Tired Yuttarito because it is Hitotsubo type.

Kitchen

Kitchen. Bright kitchen.
Bright kitchen.

Non-living room
Non-living room

Local photos, including front road

Local photos, including front road. Nice is a three-storey
Nice is a three-storey

Balcony

Balcony. We copy the south from the third floor
We copy the south from the third floor

Balcony. We copy the south from the second floor
We copy the south from the second floor

Balcony. The third floor we copy the north from
The third floor we copy the north from



Location