New Homes » Chugoku » Hiroshima » Asaminami


Hiroshima, Hiroshima Prefecture Asaminami
Hiroshima Rapid Transit Astram "Nakasuji" walk 10 minutes
Quiet sink, Artificial marble top plate, Easy-to-use is a good beautiful system kitchen water purification function with faucet. Living environment is good.
Features pickup
Measures to conserve energy / Corresponding to the flat-35S / System kitchen / LDK15 tatami mats or more / Japanese-style room / Face-to-face kitchen / Toilet 2 places / Bathroom 1 tsubo or more / 2-story / Double-glazing / TV monitor interphone / Water filter / City gas
Price
29,800,000 yen
Floor plan
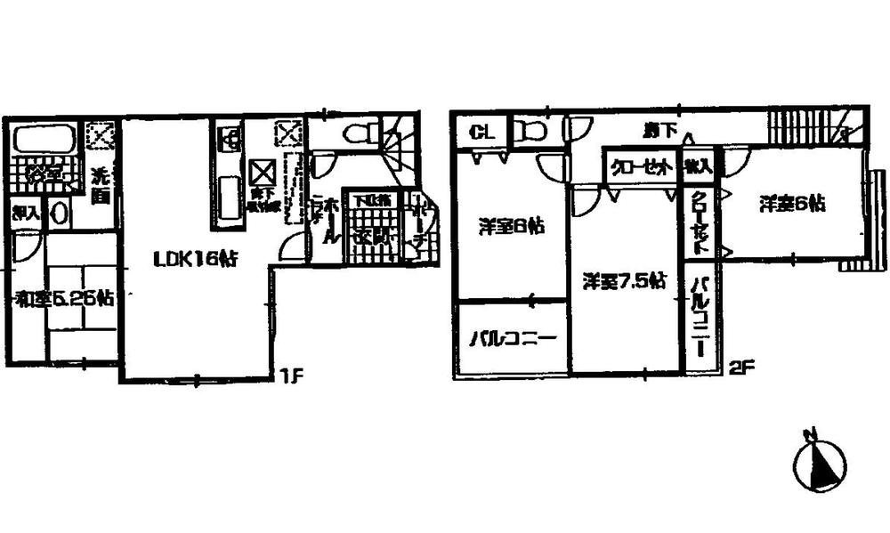
4LDK
Units sold
1 units
Land area
116.18 sq m
Building area
95.98 sq m
Driveway burden-road
Nothing, East 4m width
Completion date
July 2013
Address
Hiroshima, Hiroshima Prefecture Asaminami Sendai 1
Traffic
Hiroshima Rapid Transit Astram "Nakasuji" walk 10 minutes
Contact
TEL: 0800-603-1864 [Toll free] mobile phone ・ Also available from PHS
Caller ID is not notified
Please contact the "saw SUUMO (Sumo)"
If it does not lead, If the real estate company
Building coverage, floor area ratio
60% ・ 200%
Time residents
Consultation
Land of the right form
Ownership
Structure and method of construction
Wooden 2-story
Use district
One dwelling
Overview and notices
Facilities: Public Water Supply, This sewage, City gas, Building confirmation number: Se 02950, Parking: car space
Company profile
<Mediation> Governor of Hiroshima Prefecture (6) Article 006776 No. Heiwa Real Estate Sales Co., Ltd. Yubinbango731-0144 Hiroshima, Hiroshima Prefecture Asaminami Takatorikita 3-3-25


Floor plan

Floor plan. 29,800,000 yen, 4LDK, Land area 116.18 sq m , Building area 95.98 sq m
29,800,000 yen, 4LDK, Land area 116.18 sq m , Building area 95.98 sq m

Local appearance photo

Local appearance photo.   Living environment favorable
Living environment favorable

Local appearance photo.   Completed mid-July completion already
Completed mid-July completion already

Local appearance photo
Local appearance photo

Local photos, including front road

Local photos, including front road.   Front street: East 4m
Front street: East 4m

Parking lot

Parking lot.   Parking: two Allowed
Parking: two Allowed

Local appearance photo
Local appearance photo

Local photos, including front road
Local photos, including front road

Local appearance photo
Local appearance photo



Location