New Homes » Chugoku » Hiroshima » Asaminami


Hiroshima, Hiroshima Prefecture Asaminami
Hiroshima traffic "Hirooku under Complex" walk 3 minutes
Fully equipped ・ Storage capacity perfect score of housing! ! 19 Pledge of spacious living room boasts! Gatherings of family to enjoy in a bright room
<Local reports> ---------------------------------------------- ■ 19 tatami spacious living! □ This storage capacity perfect score with attic storage ■ Cupboard ・ With lighting equipment □ Friendly to people and households in the all-electric homes ■ LAN wiring already □ Parking two possible ----------------------------------------------
Features pickup
Corresponding to the flat-35S / LDK18 tatami mats or more / Energy-saving water heaters / A quiet residential area / 2-story / Double-glazing / IH cooking heater / All-electric
Price
26.7 million yen
Floor plan
4LDK
Units sold
1 units
Land area
142.8 sq m (measured)
Building area
106.4 sq m (measured)
Driveway burden-road
Nothing, North 4.9m width
Completion date
August 2013
Address
Hiroshima, Hiroshima Prefecture Asaminami Andong 4
Traffic
Hiroshima traffic "Hirooku under Complex" walk 3 minutes Hiroshima Rapid Transit Astram "Andong" walk 17 minutes
Hiroshima Rapid Transit Astram "Kamiyasu" walk 26 minutes
Related links
[Related Sites of this company]
Person in charge
Rep Nagoshi
Contact
TEL: 0800-603-3620 [Toll free] mobile phone ・ Also available from PHS
Caller ID is not notified
Please contact the "saw SUUMO (Sumo)"
If it does not lead, If the real estate company
Building coverage, floor area ratio
Fifty percent ・ Hundred percent
Time residents
Consultation
Land of the right form
Ownership
Structure and method of construction
Wooden 2-story
Use district
One low-rise
Overview and notices
Contact: Nagoshi, Facilities: Public Water Supply, This sewage, All-electric, Building confirmation number: 0000, Parking: car space
Company profile
<Mediation> Governor of Hiroshima Prefecture (6) Article 006948 No. cosmid Real Estate Co., Ltd. Yubinbango733-0002 Hiroshima, Hiroshima Prefecture, Nishi-ku, Kusunoki-cho, 1-13-11


Local appearance photo
Local appearance photo

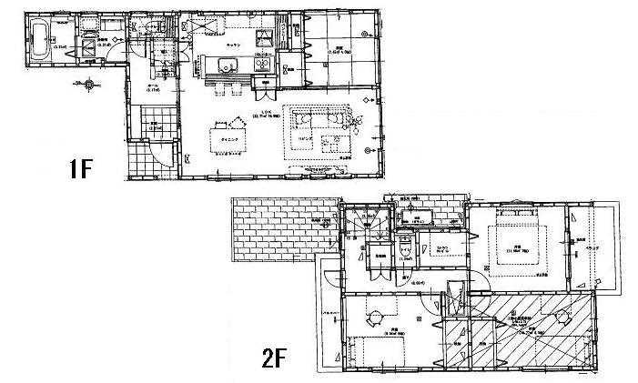
Floor plan

Floor plan. 26.7 million yen, 4LDK, Land area 142.8 sq m , Building area 106.4 sq m 1F 19.8LDK 4.5 sum 2F 6 Hiroshi 6.5 Hiroshi 7 Hiroshi toilet    Attic storage WIC
26.7 million yen, 4LDK, Land area 142.8 sq m , Building area 106.4 sq m 1F 19.8LDK 4.5 sum 2F 6 Hiroshi 6.5 Hiroshi 7 Hiroshi toilet Attic storage WIC

Local photos, including front road

Local photos, including front road. Frontal road About 5m
Frontal road About 5m

Living
Living

Bathroom
Bathroom

Kitchen
Kitchen

Non-living room
Non-living room

Entrance
Entrance

Toilet
Toilet

Parking lot

Parking lot. Parking Two
Parking Two

Balcony
Balcony

Supermarket

Supermarket. Pure to Cook Bishamondai shop 1460m
Pure to Cook Bishamondai shop 1460m

Other
Other

Drug store

Drug store. 1607m until Redeiyakkyoku Bishamon shop
1607m until Redeiyakkyoku Bishamon shop

Post office

post office. Hiroshima Bishamondai 1622m to the post office
Hiroshima Bishamondai 1622m to the post office

Bank

Bank. 1515m to JA Hiroshima depreciation Branch
1515m to JA Hiroshima depreciation Branch

Park

park. 1630m to Bishamondai park
1630m to Bishamondai park



Location