New Homes » Chugoku » Hiroshima » Asaminami
 
| | Hiroshima, Hiroshima Prefecture Asaminami 広島県広島市安佐南区 |
| JR Kabe Line "Shimogion" walk 12 minutes JR可部線「下祇園」歩12分 |
| All-electric Aeon Mall Gion doorstep Parking two Allowed オール電化 イオンモール祇園すぐそば 駐車2台可 |
Features pickup 特徴ピックアップ | | Parking two Allowed / Super close / Toilet 2 places / 2-story / Walk-in closet / All-electric 駐車2台可 /スーパーが近い /トイレ2ヶ所 /2階建 /ウォークインクロゼット /オール電化 | Price 価格 | | 34,800,000 yen 3480万円 | Floor plan 間取り | | 4LDK 4LDK | Units sold 販売戸数 | | 1 units 1戸 | Land area 土地面積 | | 112.77 sq m (34.11 tsubo) (Registration) 112.77m2(34.11坪)(登記) | Building area 建物面積 | | 108.26 sq m (32.74 tsubo) (Registration) 108.26m2(32.74坪)(登記) | Driveway burden-road 私道負担・道路 | | Nothing 無 | Completion date 完成時期(築年月) | | July 2013 2013年7月 | Address 住所 | | Hiroshima, Hiroshima Prefecture Asaminami Gion 6 広島県広島市安佐南区祇園6 | Traffic 交通 | | JR Kabe Line "Shimogion" walk 12 minutes JR可部線「下祇園」歩12分
| Contact お問い合せ先 | | TEL: 0800-603-3432 [Toll free] mobile phone ・ Also available from PHS Caller ID is not notified Please contact the "saw SUUMO (Sumo)" If it does not lead, If the real estate company TEL:0800-603-3432【通話料無料】携帯電話・PHSからもご利用いただけます 発信者番号は通知されません 「SUUMO(スーモ)を見た」と問い合わせください つながらない方、不動産会社の方は
| Building coverage, floor area ratio 建ぺい率・容積率 | | 60% ・ 200% 60%・200% | Time residents 入居時期 | | Consultation 相談 | Land of the right form 土地の権利形態 | | Ownership 所有権 | Structure and method of construction 構造・工法 | | Wooden 2-story 木造2階建 | Use district 用途地域 | | One dwelling 1種住居 | Other limitations その他制限事項 | | ※ Property information packed Asaminami ☆ [Search in the living Research, Inc.!] ※安佐南区の物件情報満載☆【住研社で検索!】 | Overview and notices その他概要・特記事項 | | Facilities: Public Water Supply, This sewage, Building confirmation number: 236, Parking: car space 設備:公営水道、本下水、建築確認番号:236、駐車場:カースペース | Company profile 会社概要 | | <Mediation> Governor of Hiroshima Prefecture (3) No. 008815 (Ltd.) Jukensha Yubinbango731-5136 Hiroshima, Hiroshima Prefecture Saeki-ku Rakurakuen 2-1-30 <仲介>広島県知事(3)第008815号(株)住研社〒731-5136 広島県広島市佐伯区楽々園2-1-30 |
 Local appearance photo
現地外観写真
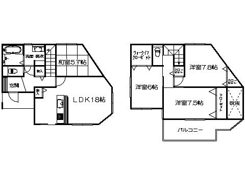
Floor plan間取り図  34,800,000 yen, 4LDK, Land area 112.77 sq m , Building area 108.26 sq m ※ Floor Plan current state priority
3480万円、4LDK、土地面積112.77m2、建物面積108.26m2 ※間取り図現況優先
 Local appearance photo
現地外観写真
 Local appearance photo
現地外観写真
 Entrance
玄関
 Local photos, including front road
前面道路含む現地写真
Convenience storeコンビニ  Lawson 481m to Hiroshima Gion 6-chome
ローソン 広島祇園6丁目店まで481m
Otherその他  Parking lot
駐車場
 Local photos, including front road
前面道路含む現地写真
Drug storeドラッグストア  Lady of medicine 493m to Gion shop
くすりのレディ 祇園店まで493m
 Local photos, including front road
前面道路含む現地写真
Home centerホームセンター  Konan 483m to Gion shop
コーナン 祇園店まで483m
 Local photos, including front road
前面道路含む現地写真
Shopping centreショッピングセンター  419m to Aeon Mall Gion Hiroshima
イオンモール広島祇園まで419m
 Local photos, including front road
前面道路含む現地写真
Primary school小学校  886m to Gion elementary school
祇園小学校まで886m
Drug storeドラッグストア  Wants Nishihara to the store 877m
ウォンツ 西原店まで877m
Other Environmental Photoその他環境写真  Don ・ Quixote 994m to Gion shop
ドン・キホーテ 祇園店まで994m
Junior high school中学校  1077m to Gion junior high school
祇園中学校まで1077m
Supermarketスーパー  Yours Until Omachi shop 838m
ユアーズ 大町店まで838m
Location
|