New Homes » Chugoku » Hiroshima » Asaminami


Hiroshima, Hiroshima Prefecture Asaminami
JR Kabe Line "Shichikenjaya" walk 6 minutes
Flat 35S (top runner standard specification) All-electric Cute IH heater 4LDK + 3 pledge of free space Yes 2 wayside Available Face-to-face kitchen
Features pickup
Corresponding to the flat-35S / 2 along the line more accessible / Energy-saving water heaters / LDK15 tatami mats or more / Japanese-style room / Face-to-face kitchen / Toilet 2 places / 2-story / IH cooking heater / All-electric
Price
32,900,000 yen
Floor plan
4LDK
Units sold
1 units
Land area
109.03 sq m
Building area
110.13 sq m
Driveway burden-road
Nothing, East 3m width
Completion date
September 2013
Address
Hiroshima, Hiroshima Prefecture Asaminami Midorii 7
Traffic
JR Kabe Line "Shichikenjaya" walk 6 minutes
Bus "up Midorii bus" walk 5 minutes
Contact
TEL: 0800-603-1864 [Toll free] mobile phone ・ Also available from PHS
Caller ID is not notified
Please contact the "saw SUUMO (Sumo)"
If it does not lead, If the real estate company
Time residents
Consultation
Land of the right form
Ownership
Structure and method of construction
Wooden 2-story
Use district
Two mid-high
Overview and notices
Building confirmation number: Se 00258, Parking: car space
Company profile
<Mediation> Governor of Hiroshima Prefecture (6) Article 006776 No. Heiwa Real Estate Sales Co., Ltd. Yubinbango731-0144 Hiroshima, Hiroshima Prefecture Asaminami Takatorikita 3-3-25


Local appearance photo

Local appearance photo.   2013 September 30, complete
2013 September 30, complete

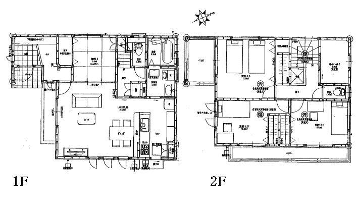
Floor plan

Floor plan. 32,900,000 yen, 4LDK, Land area 109.03 sq m , Building area 110.13 sq m   All-electric Cute
32,900,000 yen, 4LDK, Land area 109.03 sq m , Building area 110.13 sq m All-electric Cute

Local appearance photo

Local appearance photo.   Parking: Yes
Parking: Yes

Local appearance photo
Local appearance photo

Local photos, including front road

Local photos, including front road.   Front road: 3m
Front road: 3m

Other local
Other local

Local appearance photo
Local appearance photo

Local appearance photo
Local appearance photo

Local appearance photo
Local appearance photo



Location