New Homes » Chugoku » Hiroshima » Asaminami
 
| | Hiroshima, Hiroshima Prefecture Asaminami 広島県広島市安佐南区 |
| First taxi "Takeda Yamadan underground" walk 3 minutes 第一タクシー「武田山団地下」歩3分 |
| Sunny! Bus stop 3-minute walk! 日当たり良好!バス停徒歩3分! |
| LDK15 tatami mats or more, Corner lot, All-electric LDK15畳以上、角地、オール電化 |
Features pickup 特徴ピックアップ | | LDK15 tatami mats or more / Corner lot / All-electric LDK15畳以上 /角地 /オール電化 | Price 価格 | | 25,800,000 yen 2580万円 | Floor plan 間取り | | 4LDK 4LDK | Units sold 販売戸数 | | 1 units 1戸 | Land area 土地面積 | | 144.49 sq m (registration) 144.49m2(登記) | Building area 建物面積 | | 115.02 sq m (registration) 115.02m2(登記) | Driveway burden-road 私道負担・道路 | | Nothing 無 | Completion date 完成時期(築年月) | | February 2014 2014年2月 | Address 住所 | | Hiroshima, Hiroshima Prefecture Asaminami Aida 3 広島県広島市安佐南区相田3 | Traffic 交通 | | First taxi "Takeda Yamadan underground" walk 3 minutes 第一タクシー「武田山団地下」歩3分 | Related links 関連リンク | | [Related Sites of this company] 【この会社の関連サイト】 | Person in charge 担当者より | | Rep Nagoshi 担当者名越 | Contact お問い合せ先 | | TEL: 0800-603-3620 [Toll free] mobile phone ・ Also available from PHS Caller ID is not notified Please contact the "saw SUUMO (Sumo)" If it does not lead, If the real estate company TEL:0800-603-3620【通話料無料】携帯電話・PHSからもご利用いただけます 発信者番号は通知されません 「SUUMO(スーモ)を見た」と問い合わせください つながらない方、不動産会社の方は
| Time residents 入居時期 | | February 2014 schedule 2014年2月予定 | Land of the right form 土地の権利形態 | | Ownership 所有権 | Structure and method of construction 構造・工法 | | Wooden 2-story 木造2階建 | Overview and notices その他概要・特記事項 | | Contact: Nagoshi, Building confirmation number: HP01-0176752, Parking: car space 担当者:名越、建築確認番号:HP01-0176752、駐車場:カースペース | Company profile 会社概要 | | <Mediation> Governor of Hiroshima Prefecture (6) Article 006948 No. cosmid Real Estate Co., Ltd. Yubinbango733-0002 Hiroshima, Hiroshima Prefecture, Nishi-ku, Kusunoki-cho, 1-13-11 <仲介>広島県知事(6)第006948号木住不動産(株)〒733-0002 広島県広島市西区楠木町1-13-11 |
 Local appearance photo
現地外観写真
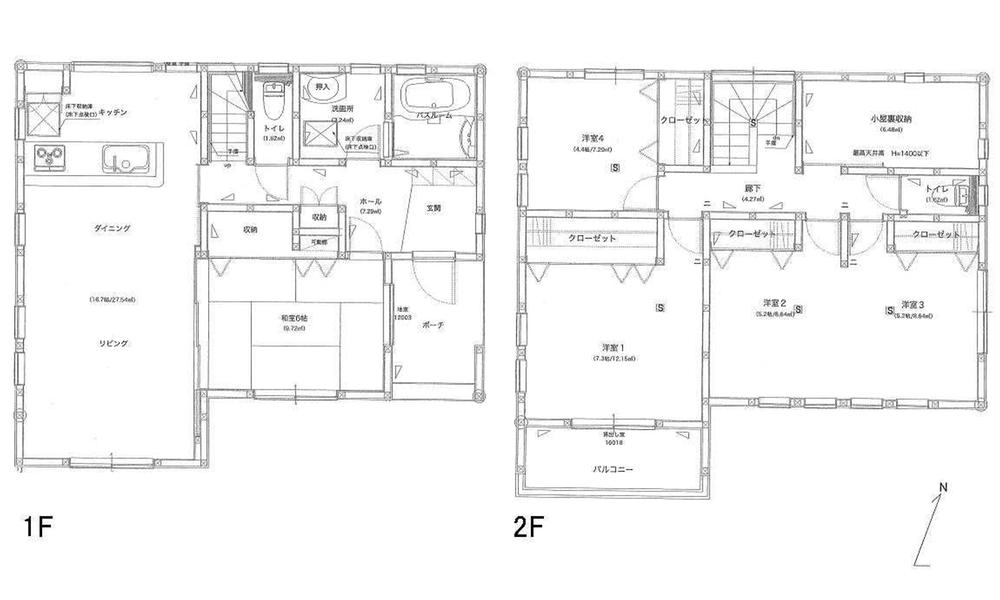
Floor plan間取り図  25,800,000 yen, 4LDK, Land area 144.49 sq m , Building area 115.02 sq m
2580万円、4LDK、土地面積144.49m2、建物面積115.02m2
 Local photos, including front road
前面道路含む現地写真
 Local appearance photo
現地外観写真
 Local photos, including front road
前面道路含む現地写真
Primary school小学校  1754m to Hiroshima Municipal depreciation Elementary School
広島市立安小学校まで1754m
 Local appearance photo
現地外観写真
 Local photos, including front road
前面道路含む現地写真
Kindergarten ・ Nursery幼稚園・保育園  897m to Yasu Horin kindergarten
ほうりん安幼稚園まで897m
 Local appearance photo
現地外観写真
 Local photos, including front road
前面道路含む現地写真
 Local appearance photo
現地外観写真
 Local photos, including front road
前面道路含む現地写真
Location
|