New Homes » Chugoku » Hiroshima » Asaminami
 
| | Hiroshima, Hiroshima Prefecture Asaminami 広島県広島市安佐南区 |
| JR Kabe Line "Furuichibashi" walk 7 minutes JR可部線「古市橋」歩7分 |
| LDK18 tatami mats or more, Flat terrain, Super close, 2 along the line more accessible, Face-to-face kitchen, 2-story, Immediate Available, System kitchen, Flat to the stationese-style room, Toilet 2 places, TV monitor interphone LDK18畳以上、平坦地、スーパーが近い、2沿線以上利用可、対面式キッチン、2階建、即入居可、システムキッチン、駅まで平坦、和室、トイレ2ヶ所、TVモニタ付インターホン |
| Rare property of popular Furuichi area! ! Attic storage is also available storage capacity preeminent! ! Also it looks Furukawa from the balcony 人気の古市エリアの希少物件です!!小屋裏収納もあり収納力バツグンです!!バルコニーからは古川も見えます |
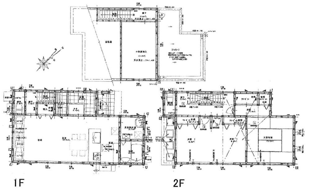
Features pickup 特徴ピックアップ | | Immediate Available / 2 along the line more accessible / LDK18 tatami mats or more / Super close / System kitchen / Flat to the station / Japanese-style room / Face-to-face kitchen / Toilet 2 places / 2-story / TV monitor interphone / IH cooking heater / All-electric / Flat terrain / Attic storage 即入居可 /2沿線以上利用可 /LDK18畳以上 /スーパーが近い /システムキッチン /駅まで平坦 /和室 /対面式キッチン /トイレ2ヶ所 /2階建 /TVモニタ付インターホン /IHクッキングヒーター /オール電化 /平坦地 /屋根裏収納 | Price 価格 | | 35,800,000 yen 3580万円 | Floor plan 間取り | | 3LDK + S (storeroom) 3LDK+S(納戸) | Units sold 販売戸数 | | 1 units 1戸 | Land area 土地面積 | | 110.41 sq m (33.39 tsubo) (Registration) 110.41m2(33.39坪)(登記) | Building area 建物面積 | | 96.04 sq m (29.05 tsubo) (Registration) 96.04m2(29.05坪)(登記) | Driveway burden-road 私道負担・道路 | | Nothing 無 | Completion date 完成時期(築年月) | | January 2013 2013年1月 | Address 住所 | | Hiroshima, Hiroshima Prefecture Asaminami Furuichi 1 広島県広島市安佐南区古市1 | Traffic 交通 | | JR Kabe Line "Furuichibashi" walk 7 minutes Hiroshima Rapid Transit Astram "Nakasuji" walk 11 minutes Hiroshima Rapid Transit Astram "Nishihara" walk 12 minutes JR可部線「古市橋」歩7分 広島高速交通アストラムライン「中筋」歩11分 広島高速交通アストラムライン「西原」歩12分
| Contact お問い合せ先 | | TEL: 0800-603-3220 [Toll free] mobile phone ・ Also available from PHS Caller ID is not notified Please contact the "saw SUUMO (Sumo)" If it does not lead, If the real estate company TEL:0800-603-3220【通話料無料】携帯電話・PHSからもご利用いただけます 発信者番号は通知されません 「SUUMO(スーモ)を見た」と問い合わせください つながらない方、不動産会社の方は
| Building coverage, floor area ratio 建ぺい率・容積率 | | 60% ・ 200% 60%・200% | Time residents 入居時期 | | Immediate available 即入居可 | Land of the right form 土地の権利形態 | | Ownership 所有権 | Structure and method of construction 構造・工法 | | Wooden 2-story 木造2階建 | Use district 用途地域 | | One dwelling 1種住居 | Overview and notices その他概要・特記事項 | | Facilities: all-electric 設備:オール電化 | Company profile 会社概要 | | <Mediation> Governor of Hiroshima Prefecture (3) No. 008940 (Ltd.) Fleet Yubinbango732-0057 Hiroshima, Hiroshima Prefecture, Higashi-ku, Futabanosato 2-8-28 <仲介>広島県知事(3)第008940号(株)フリート〒732-0057 広島県広島市東区二葉の里2-8-28 |
Local appearance photo現地外観写真  Local (September 2013) Shooting
現地(2013年9月)撮影
Livingリビング  Indoor (September 2013) Shooting
室内(2013年9月)撮影
Kitchenキッチン  Indoor (September 2013) Shooting
室内(2013年9月)撮影
Floor plan間取り図  35,800,000 yen, 3LDK + S (storeroom), Land area 110.41 sq m , Building area 96.04 sq m
3580万円、3LDK+S(納戸)、土地面積110.41m2、建物面積96.04m2
Bathroom浴室  Indoor (September 2013) Shooting
室内(2013年9月)撮影
Other introspectionその他内観  Indoor (September 2013) Shooting
室内(2013年9月)撮影
Location
|