|
|
Hiroshima, Hiroshima Prefecture Asaminami
広島県広島市安佐南区
|
|
Hiroshima Rapid Transit Astram "Takatori" walk 6 minutes
広島高速交通アストラムライン「高取」歩6分
|
|
Astram near !! ready-built specifications + α of the house !!
アストラムライン近く!!建て売り仕様+αの家!!
|
|
It was quite a good feeling in the specifications of the LOE-E pair glass + shutter with shutters + α. Moreover, There is also a convenience supermarket near Astram is good.
LOE-Eペアガラス+シャッター付雨戸+αの仕様で結構いい感じでした。しかもアストラムライン近くでスーパーもあり利便性は良いです。
|
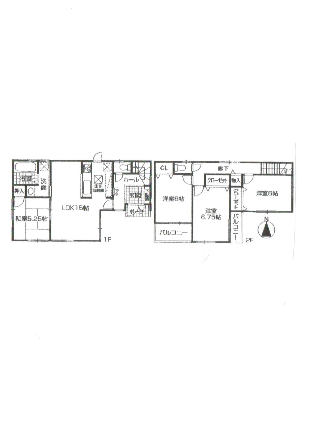
Features pickup 特徴ピックアップ | | Measures to conserve energy / Corresponding to the flat-35S / Pre-ground survey / Parking two Allowed / System kitchen / Bathroom Dryer / All room storage / LDK15 tatami mats or more / Japanese-style room / Washbasin with shower / Face-to-face kitchen / Wide balcony / Toilet 2 places / 2-story / 2 or more sides balcony / Underfloor Storage / The window in the bathroom / TV monitor interphone / Dish washing dryer 省エネルギー対策 /フラット35Sに対応 /地盤調査済 /駐車2台可 /システムキッチン /浴室乾燥機 /全居室収納 /LDK15畳以上 /和室 /シャワー付洗面台 /対面式キッチン /ワイドバルコニー /トイレ2ヶ所 /2階建 /2面以上バルコニー /床下収納 /浴室に窓 /TVモニタ付インターホン /食器洗乾燥機 |
Price 価格 | | 23.8 million yen ~ 24,800,000 yen 2380万円 ~ 2480万円 |
Floor plan 間取り | | 4LDK 4LDK |
Units sold 販売戸数 | | 2 units 2戸 |
Land area 土地面積 | | 100.45 sq m (30.38 tsubo) (Registration) 100.45m2(30.38坪)(登記) |
Building area 建物面積 | | 90.72 sq m ~ 93.14 sq m (27.44 tsubo ~ 28.17 tsubo) (Registration) 90.72m2 ~ 93.14m2(27.44坪 ~ 28.17坪)(登記) |
Driveway burden-road 私道負担・道路 | | Driveway burden Yes ・ Equity 1 / 2 私道負担有・持分1/2 |
Completion date 完成時期(築年月) | | 2013 late October 2013年10月下旬 |
Address 住所 | | Hiroshima, Hiroshima Prefecture Asaminami Takatoriminami 1 広島県広島市安佐南区高取南1 |
Traffic 交通 | | Hiroshima Rapid Transit Astram "Takatori" walk 6 minutes 広島高速交通アストラムライン「高取」歩6分
|
Contact お問い合せ先 | | (Ltd.) Strawberry Real Estate TEL: 082-573-0828 Please inquire as "saw SUUMO (Sumo)" (株)いちご不動産TEL:082-573-0828「SUUMO(スーモ)を見た」と問い合わせください |
Building coverage, floor area ratio 建ぺい率・容積率 | | Building coverage 50%, Volume rate of 100% 建ぺい率50%、容積率100% |
Time residents 入居時期 | | Three months after the contract 契約後3ヶ月 |
Land of the right form 土地の権利形態 | | Ownership 所有権 |
Use district 用途地域 | | One low-rise 1種低層 |
Overview and notices その他概要・特記事項 | | Building confirmation number: Se 00981 建築確認番号:セ00981 |
Company profile 会社概要 | | <Mediation> Governor of Hiroshima Prefecture (1) No. 010198 (Ltd.) strawberry real estate Yubinbango739-1733 Hiroshima, Hiroshima Prefecture Asakita Ku Kuchitaminami 4-48-16 <仲介>広島県知事(1)第010198号(株)いちご不動産〒739-1733 広島県広島市安佐北区口田南4-48-16 |