New Homes » Chugoku » Hiroshima » Asaminami
 
| | Hiroshima, Hiroshima Prefecture Asaminami 広島県広島市安佐南区 |
| Angel cab (bus) "Yasudajoshidai before" walk 4 minutes エンゼルキャブ(バス)「安田女子大前」歩4分 |
| South-facing !! corner lot !! laid-back area !! 南向き!!角地!!のんびりしたエリア!! |
| Day also is also a good corner lot ventilation. This area is the area flowing of time that has slowly. 日当たりも風通しも良い角地です。このエリアはゆっくりした時間の流れるエリアです。 |
Features pickup 特徴ピックアップ | | Pre-ground survey / Parking three or more possible / Immediate Available / Land 50 square meters or more / Energy-saving water heaters / Summer resort / Facing south / System kitchen / Bathroom Dryer / All room storage / LDK15 tatami mats or more / Around traffic fewer / Corner lot / Japanese-style room / Shaping land / garden / Washbasin with shower / Face-to-face kitchen / Toilet 2 places / 2-story / 2 or more sides balcony / South balcony / Double-glazing / Underfloor Storage / The window in the bathroom / Leafy residential area / IH cooking heater / Dish washing dryer / All room 6 tatami mats or more / All-electric / All rooms are two-sided lighting / terrace 地盤調査済 /駐車3台以上可 /即入居可 /土地50坪以上 /省エネ給湯器 /避暑地 /南向き /システムキッチン /浴室乾燥機 /全居室収納 /LDK15畳以上 /周辺交通量少なめ /角地 /和室 /整形地 /庭 /シャワー付洗面台 /対面式キッチン /トイレ2ヶ所 /2階建 /2面以上バルコニー /南面バルコニー /複層ガラス /床下収納 /浴室に窓 /緑豊かな住宅地 /IHクッキングヒーター /食器洗乾燥機 /全居室6畳以上 /オール電化 /全室2面採光 /テラス | Price 価格 | | 25,900,000 yen 2590万円 | Floor plan 間取り | | 4LDK 4LDK | Units sold 販売戸数 | | 1 units 1戸 | Total units 総戸数 | | 1 units 1戸 | Land area 土地面積 | | 175.94 sq m (53.22 tsubo) (Registration) 175.94m2(53.22坪)(登記) | Building area 建物面積 | | 105.99 sq m (32.06 tsubo) (Registration) 105.99m2(32.06坪)(登記) | Driveway burden-road 私道負担・道路 | | Nothing 無 | Completion date 完成時期(築年月) | | June 2013 2013年6月 | Address 住所 | | Hiroshima, Hiroshima Prefecture Asaminami Aida 2 広島県広島市安佐南区相田2 | Traffic 交通 | | Angel cab (bus) "Yasudajoshidai before" walk 4 minutes エンゼルキャブ(バス)「安田女子大前」歩4分 | Contact お問い合せ先 | | (Ltd.) Strawberry Real Estate TEL: 082-573-0828 Please inquire as "saw SUUMO (Sumo)" (株)いちご不動産TEL:082-573-0828「SUUMO(スーモ)を見た」と問い合わせください | Expenses 諸費用 | | Ground guarantee fees: 73,500 yen / Bulk 地盤保証料:7万3500円/一括 | Building coverage, floor area ratio 建ぺい率・容積率 | | Fifty percent ・ Hundred percent 50%・100% | Time residents 入居時期 | | Immediate available 即入居可 | Land of the right form 土地の権利形態 | | Ownership 所有権 | Structure and method of construction 構造・工法 | | Wooden 2-story 木造2階建 | Use district 用途地域 | | One low-rise 1種低層 | Overview and notices その他概要・特記事項 | | Facilities: Public Water Supply, This sewage, All-electric, Parking: car space 設備:公営水道、本下水、オール電化、駐車場:カースペース | Company profile 会社概要 | | <Mediation> Governor of Hiroshima Prefecture (1) No. 010198 (Ltd.) strawberry real estate Yubinbango739-1733 Hiroshima, Hiroshima Prefecture Asakita Ku Kuchitaminami 4-48-16 <仲介>広島県知事(1)第010198号(株)いちご不動産〒739-1733 広島県広島市安佐北区口田南4-48-16 |
Local appearance photo現地外観写真  Local (10 May 2013) Shooting
現地(2013年10月)撮影
Livingリビング  Indoor (10 May 2013) Shooting 1st floor Pledge LDK16 (1)
室内(2013年10月)撮影 1階 LDK16帖(1)
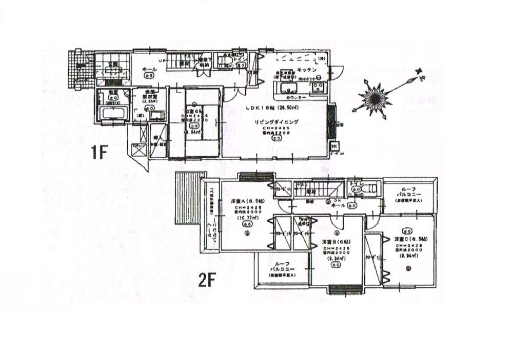
Floor plan間取り図  25,900,000 yen, 4LDK, Land area 175.94 sq m , Building area 105.99 sq m
2590万円、4LDK、土地面積175.94m2、建物面積105.99m2
Livingリビング  Indoor (10 May 2013) Shooting 1st floor Pledge LDK16 (2)
室内(2013年10月)撮影 1階 LDK16帖(2)
Bathroom浴室  Indoor (10 May 2013) Shooting
室内(2013年10月)撮影
Kitchenキッチン  Indoor (10 May 2013) Shooting
室内(2013年10月)撮影
Non-living roomリビング以外の居室  Indoor (10 May 2013) Shooting
室内(2013年10月)撮影
Entrance玄関  Local (10 May 2013) Shooting
現地(2013年10月)撮影
Wash basin, toilet洗面台・洗面所  Indoor (10 May 2013) Shooting
室内(2013年10月)撮影
Toiletトイレ  Indoor (10 May 2013) Shooting
室内(2013年10月)撮影
Garden庭  Local (10 May 2013) Shooting
現地(2013年10月)撮影
Balconyバルコニー  Local (10 May 2013) Shooting
現地(2013年10月)撮影
Other introspectionその他内観  Indoor (10 May 2013) Shooting
室内(2013年10月)撮影
Livingリビング  Indoor (10 May 2013) Shooting
室内(2013年10月)撮影
Non-living roomリビング以外の居室  Indoor (10 May 2013) Shooting
室内(2013年10月)撮影
Entrance玄関  Indoor (10 May 2013) Shooting
室内(2013年10月)撮影
Toiletトイレ  Indoor (10 May 2013) Shooting
室内(2013年10月)撮影
Non-living roomリビング以外の居室  Indoor (10 May 2013) Shooting
室内(2013年10月)撮影
Entrance玄関  Indoor (10 May 2013) Shooting
室内(2013年10月)撮影
Non-living roomリビング以外の居室  Indoor (10 May 2013) Shooting
室内(2013年10月)撮影
Location
|