New Homes » Chugoku » Hiroshima » Asaminami
 
| | Hiroshima, Hiroshima Prefecture Asaminami 広島県広島市安佐南区 |
| Bus "Kasugano north" walk 4 minutes バス「春日野北」歩4分 |
| All-electric All rooms lighting ・ With lace curtains Flat 35S corresponding There deck to good south side of the garden with a panoramic view There second living room on the second floor pantry Walk-in closet Parking two Allowed C オール電化 全室照明・レースカーテン付 フラット35S対応 眺望の良い南側の庭にデッキ有り 2階にセカンドリビング有り パントリー ウォークインクローゼット 駐車2台可 C |
Features pickup 特徴ピックアップ | | Parking two Allowed / Land 50 square meters or more / A quiet residential area / 2-story / Walk-in closet / All-electric 駐車2台可 /土地50坪以上 /閑静な住宅地 /2階建 /ウォークインクロゼット /オール電化 | Price 価格 | | 36,800,000 yen 3680万円 | Floor plan 間取り | | 4LDK 4LDK | Units sold 販売戸数 | | 1 units 1戸 | Land area 土地面積 | | 185.39 sq m (56.08 tsubo) (Registration) 185.39m2(56.08坪)(登記) | Building area 建物面積 | | 144.49 sq m (43.70 tsubo) (Registration) 144.49m2(43.70坪)(登記) | Driveway burden-road 私道負担・道路 | | Nothing, Northwest 6m width 無、北西6m幅 | Completion date 完成時期(築年月) | | December 2013 2013年12月 | Address 住所 | | Hiroshima, Hiroshima Prefecture Asaminami Yamamotoshin cho 5 広島県広島市安佐南区山本新町5 | Traffic 交通 | | Bus "Kasugano north" walk 4 minutes バス「春日野北」歩4分 | Person in charge 担当者より | | The person in charge (stock) Juken 担当者(株)住研 | Contact お問い合せ先 | | TEL: 0800-603-3432 [Toll free] mobile phone ・ Also available from PHS Caller ID is not notified Please contact the "saw SUUMO (Sumo)" If it does not lead, If the real estate company TEL:0800-603-3432【通話料無料】携帯電話・PHSからもご利用いただけます 発信者番号は通知されません 「SUUMO(スーモ)を見た」と問い合わせください つながらない方、不動産会社の方は
| Expenses 諸費用 | | CATV security system facilities and equipment fund: 30,000 yen / Bulk, CATV security system building in the facility: 185,000 yen / Bulk CATVセキュリティシステム施設設備基金:3万円/一括、CATVセキュリティシステム建物内施設:18万5000円/一括 | Building coverage, floor area ratio 建ぺい率・容積率 | | Fifty percent ・ Hundred percent 50%・100% | Time residents 入居時期 | | Consultation 相談 | Land of the right form 土地の権利形態 | | Ownership 所有権 | Structure and method of construction 構造・工法 | | Wooden 2-story 木造2階建 | Use district 用途地域 | | One low-rise 1種低層 | Other limitations その他制限事項 | | ※ Property information packed Asaminami ☆ [Search in the living Research, Inc.!] ※安佐南区の物件情報満載☆【住研社で検索!】 | Overview and notices その他概要・特記事項 | | The person in charge :( stock) Juken, Facilities: Public Water Supply, This sewage, Building confirmation number: H24 認広 Kense 02429, Parking: car space 担当者:(株)住研、設備:公営水道、本下水、建築確認番号:H24認広建セ02429、駐車場:カースペース | Company profile 会社概要 | | <Mediation> Governor of Hiroshima Prefecture (3) No. 008815 (Ltd.) Jukensha Yubinbango731-5136 Hiroshima, Hiroshima Prefecture Saeki-ku Rakurakuen 2-1-30 <仲介>広島県知事(3)第008815号(株)住研社〒731-5136 広島県広島市佐伯区楽々園2-1-30 |
Local appearance photo現地外観写真  November 29, shooting
11月29日撮影
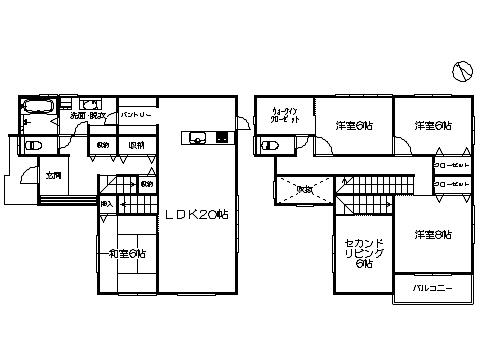
Floor plan間取り図  36,800,000 yen, 4LDK, Land area 185.39 sq m , Building area 144.49 sq m ※ Floor plan current state priority
3680万円、4LDK、土地面積185.39m2、建物面積144.49m2 ※間取図現況優先
Local appearance photo現地外観写真  November 29, shooting
11月29日撮影
 November 29, shooting
11月29日撮影
 Local photos, including front road
前面道路含む現地写真
Primary school小学校  Kasugano to elementary school 532m
春日野小学校まで532m
Other localその他現地  Kasugano Central Park
春日野中央公園
 Other
その他
Local appearance photo現地外観写真  November 29, shooting
11月29日撮影
 Local photos, including front road
前面道路含む現地写真
Junior high school中学校  3575m to Gion junior high school
祇園中学校まで3575m
Other localその他現地  Kasugano Central Park
春日野中央公園
 Kasugano Central Park
春日野中央公園
Location
|