|
|
Hiroshima, Hiroshima Prefecture Asaminami
広島県広島市安佐南区
|
|
First taxi "first Takatori housing complex" walk 5 minutes
第一タクシー「第一高取団地」歩5分
|
|
In town ・ House building of high class in the enhancement specification
充実設備・充実仕様でハイクラスの住まい造り
|
|
Flat 35S, All-electric, Low-e pair glass, etc.
フラット35S、オール電化、Low-eペアガラス等々
|
Price 価格 | | 28.5 million yen 2850万円 |
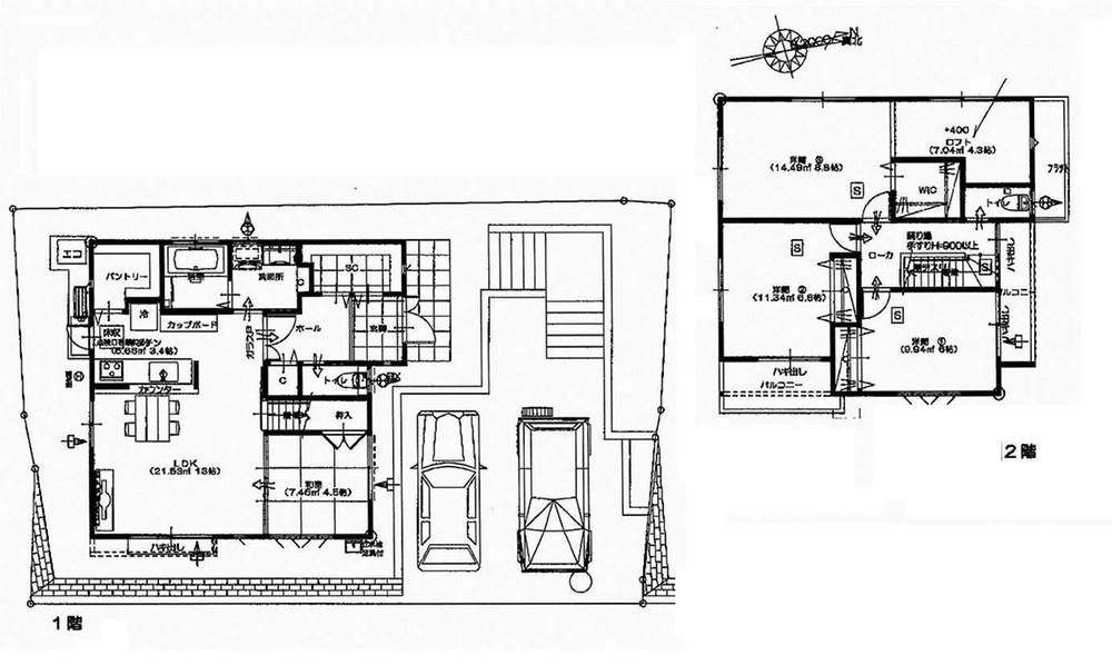
Floor plan 間取り | | 4LDK 4LDK |
Units sold 販売戸数 | | 1 units 1戸 |
Total units 総戸数 | | 1 units 1戸 |
Land area 土地面積 | | 172.9 sq m 172.9m2 |
Building area 建物面積 | | 108.69 sq m 108.69m2 |
Driveway burden-road 私道負担・道路 | | Nothing, East 6.3m width 無、東6.3m幅 |
Completion date 完成時期(築年月) | | December 2013 2013年12月 |
Address 住所 | | Hiroshima, Hiroshima Prefecture Asaminami Takatorikita 1 広島県広島市安佐南区高取北1 |
Traffic 交通 | | First taxi "first Takatori housing complex" walk 5 minutes 第一タクシー「第一高取団地」歩5分 |
Person in charge 担当者より | | Rep Yoshiyuki Fujinaka 担当者藤中 芳行 |
Contact お問い合せ先 | | TEL: 0800-603-3620 [Toll free] mobile phone ・ Also available from PHS Caller ID is not notified Please contact the "saw SUUMO (Sumo)" If it does not lead, If the real estate company TEL:0800-603-3620【通話料無料】携帯電話・PHSからもご利用いただけます 発信者番号は通知されません 「SUUMO(スーモ)を見た」と問い合わせください つながらない方、不動産会社の方は
|
Building coverage, floor area ratio 建ぺい率・容積率 | | Fifty percent ・ Hundred percent 50%・100% |
Time residents 入居時期 | | Consultation 相談 |
Land of the right form 土地の権利形態 | | Ownership 所有権 |
Structure and method of construction 構造・工法 | | Wooden 2-story (framing method) 木造2階建(軸組工法) |
Use district 用途地域 | | One low-rise 1種低層 |
Overview and notices その他概要・特記事項 | | Contact: Yoshiyuki Fujinaka, Facilities: Public Water Supply, This sewage, Individual LPG, Building confirmation number: 1075, Parking: car space 担当者:藤中 芳行、設備:公営水道、本下水、個別LPG、建築確認番号:1075、駐車場:カースペース |
Company profile 会社概要 | | <Mediation> Governor of Hiroshima Prefecture (6) Article 006948 No. cosmid Real Estate Co., Ltd. Yubinbango733-0002 Hiroshima, Hiroshima Prefecture, Nishi-ku, Kusunoki-cho, 1-13-11 <仲介>広島県知事(6)第006948号木住不動産(株)〒733-0002 広島県広島市西区楠木町1-13-11 |