New Homes » Chugoku » Hiroshima » Asaminami
 
| | Hiroshima, Hiroshima Prefecture Asaminami 広島県広島市安佐南区 |
| Hiroshima Rapid Transit Astram "Nakasuji" walk 10 minutes 広島高速交通アストラムライン「中筋」歩10分 |
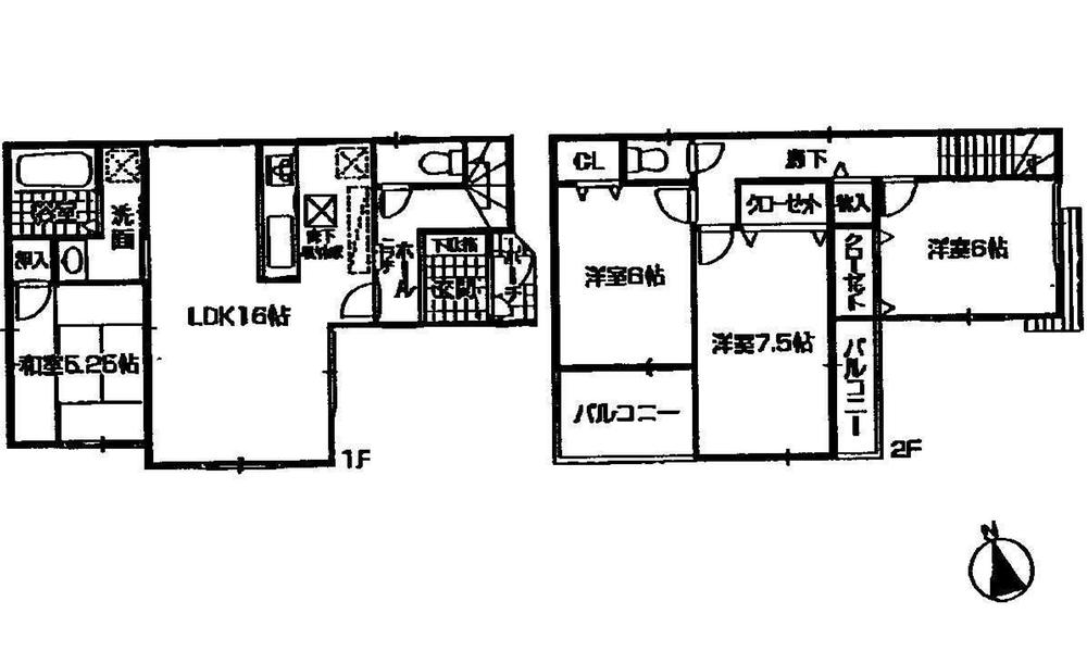
Event information イベント情報 | | Open House Schedule / Every Saturday, Sunday and public holidays オープンハウス日程/毎週土日祝 | Price 価格 | | 29,800,000 yen 2980万円 | Floor plan 間取り | | 4LDK 4LDK | Units sold 販売戸数 | | 1 units 1戸 | Total units 総戸数 | | 1 units 1戸 | Land area 土地面積 | | 116.18 sq m 116.18m2 | Building area 建物面積 | | 95.98 sq m 95.98m2 | Driveway burden-road 私道負担・道路 | | Nothing, East 4m width 無、東4m幅 | Completion date 完成時期(築年月) | | July 2013 2013年7月 | Address 住所 | | Hiroshima, Hiroshima Prefecture Asaminami Sendai 1 広島県広島市安佐南区川内1 | Traffic 交通 | | Hiroshima Rapid Transit Astram "Nakasuji" walk 10 minutes 広島高速交通アストラムライン「中筋」歩10分
| Related links 関連リンク | | [Related Sites of this company] 【この会社の関連サイト】 | Person in charge 担当者より | | It helps the person in charge real-estate and building Yoshiyuki Fujinaka house building has been collecting a lot of information and, if possible. Order from looking for land housing ・ Houses built for sale ・ Assessment, etc. of the dwelling, It is what the please consult. 担当者宅建藤中 芳行住まい造りのお手伝いが出来ればと沢山の情報を収集しています。土地探しから注文住宅・分譲住宅・住まいの査定等、なんなりとご相談下さい。 | Contact お問い合せ先 | | TEL: 0800-603-3620 [Toll free] mobile phone ・ Also available from PHS Caller ID is not notified Please contact the "saw SUUMO (Sumo)" If it does not lead, If the real estate company TEL:0800-603-3620【通話料無料】携帯電話・PHSからもご利用いただけます 発信者番号は通知されません 「SUUMO(スーモ)を見た」と問い合わせください つながらない方、不動産会社の方は
| Building coverage, floor area ratio 建ぺい率・容積率 | | 60% ・ 200% 60%・200% | Time residents 入居時期 | | Consultation 相談 | Land of the right form 土地の権利形態 | | Ownership 所有権 | Structure and method of construction 構造・工法 | | Wooden 2-story (framing method) 木造2階建(軸組工法) | Use district 用途地域 | | One dwelling 1種住居 | Overview and notices その他概要・特記事項 | | Contact: Yoshiyuki Fujinaka, Facilities: Public Water Supply, This sewage, City gas, Parking: car space 担当者:藤中 芳行、設備:公営水道、本下水、都市ガス、駐車場:カースペース | Company profile 会社概要 | | <Mediation> Governor of Hiroshima Prefecture (6) Article 006948 No. cosmid Real Estate Co., Ltd. Yubinbango733-0002 Hiroshima, Hiroshima Prefecture, Nishi-ku, Kusunoki-cho, 1-13-11 <仲介>広島県知事(6)第006948号木住不動産(株)〒733-0002 広島県広島市西区楠木町1-13-11 |
 Local appearance photo
現地外観写真
Floor plan間取り図  29,800,000 yen, 4LDK, Land area 116.18 sq m , Building area 95.98 sq m
2980万円、4LDK、土地面積116.18m2、建物面積95.98m2
 Living
リビング
 Bathroom
浴室
 Kitchen
キッチン
 Balcony
バルコニー
 Other
その他
 Other
その他
 Other
その他
Location
|