New Homes » Chugoku » Hiroshima » Asaminami


Hiroshima, Hiroshima Prefecture Asaminami
Bus "first Takatori housing complex" walk 5 minutes
Elementary school nearby Flat 35S All-electric Cute LOW-E pair glass Shoes cloak With loft High class specification Good per sun Parallel parking two Allowed Astram Takatori Station
Features pickup
Parking two Allowed / Toilet 2 places / 2-story / Double-glazing / loft / Walk-in closet / All-electric
Price
28.5 million yen
Floor plan
4LDK
Units sold
1 units
Land area
172.9 sq m (52.30 tsubo) (Registration)
Building area
108.69 sq m (32.87 tsubo) (Registration)
Driveway burden-road
Nothing, East 6.3m width (contact the road width 16m)
Completion date
December 2013
Address
Hiroshima, Hiroshima Prefecture Asaminami Takatorikita 1
Traffic
Bus "first Takatori housing complex" walk 5 minutes
Person in charge
The person in charge (stock) Juken
Contact
TEL: 0800-603-3432 [Toll free] mobile phone ・ Also available from PHS
Caller ID is not notified
Please contact the "saw SUUMO (Sumo)"
If it does not lead, If the real estate company
Building coverage, floor area ratio
Fifty percent ・ Hundred percent
Time residents
Consultation
Land of the right form
Ownership
Structure and method of construction
Wooden 2-story
Use district
One low-rise
Overview and notices
The person in charge :( stock) Juken, Facilities: Public Water Supply, This sewage, Building confirmation number: Se 01075, Parking: car space
Company profile
<Mediation> Governor of Hiroshima Prefecture (3) No. 008815 (Ltd.) Jukensha Yubinbango731-5136 Hiroshima, Hiroshima Prefecture Saeki-ku Rakurakuen 2-1-30


Local appearance photo

Local appearance photo. December 6 shooting
December 6 shooting

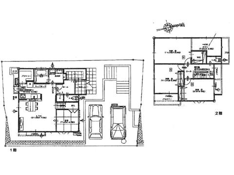
Floor plan

Floor plan. 28.5 million yen, 4LDK, Land area 172.9 sq m , Building area 108.69 sq m
28.5 million yen, 4LDK, Land area 172.9 sq m , Building area 108.69 sq m

Local appearance photo
Local appearance photo

Local appearance photo
Local appearance photo

Entrance
Entrance

Local photos, including front road
Local photos, including front road

Local photos, including front road
Local photos, including front road



Location