|
|
Hiroshima, Hiroshima Prefecture, Higashi-ku,
広島県広島市東区
|
|
Bus "Ushitahigashi 1-chome" walk 5 minutes
バス「牛田東1丁目」歩5分
|
|
LOW-e pair glass use! Bathroom with heating dryer ・ Electrical locking ・ Entrance door of smart control keys mounted ・ Color monitor phone ・ Quiet sink ・ Population other marble ・ 10-year warranty!
LOW-eペアガラス使用!浴室暖房乾燥機付・電気施錠・スマートコントロールキー搭載の玄関扉・カラーモニターフォン・静音シンク・人口他大理石・10年保証!
|
|
LOW-e pair glass use! Bathroom with heating dryer ・ Electrical locking ・ Entrance door of smart control keys mounted ・ Color monitor phone ・ Quiet sink ・ Population other marble ・ 10-year warranty!
LOW-eペアガラス使用!浴室暖房乾燥機付・電気施錠・スマートコントロールキー搭載の玄関扉・カラーモニターフォン・静音シンク・人口他大理石・10年保証!
|
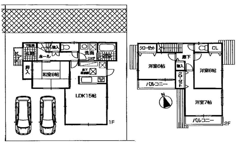
Features pickup 特徴ピックアップ | | A quiet residential area / Japanese-style room / Face-to-face kitchen / Toilet 2 places / 2-story / 2 or more sides balcony 閑静な住宅地 /和室 /対面式キッチン /トイレ2ヶ所 /2階建 /2面以上バルコニー |
Price 価格 | | 26,300,000 yen 2630万円 |
Floor plan 間取り | | 4LDK 4LDK |
Units sold 販売戸数 | | 1 units 1戸 |
Total units 総戸数 | | 1 units 1戸 |
Land area 土地面積 | | 162.93 sq m 162.93m2 |
Building area 建物面積 | | 94.47 sq m 94.47m2 |
Driveway burden-road 私道負担・道路 | | Nothing 無 |
Completion date 完成時期(築年月) | | July 2013 2013年7月 |
Address 住所 | | Hiroshima, Hiroshima Prefecture, Higashi-ku, Ushitahigashi 1 広島県広島市東区牛田東1 |
Traffic 交通 | | Bus "Ushitahigashi 1-chome" walk 5 minutes バス「牛田東1丁目」歩5分 |
Contact お問い合せ先 | | TEL: 0800-809-8835 [Toll free] mobile phone ・ Also available from PHS Caller ID is not notified Please contact the "saw SUUMO (Sumo)" If it does not lead, If the real estate company TEL:0800-809-8835【通話料無料】携帯電話・PHSからもご利用いただけます 発信者番号は通知されません 「SUUMO(スーモ)を見た」と問い合わせください つながらない方、不動産会社の方は
|
Building coverage, floor area ratio 建ぺい率・容積率 | | Fifty percent ・ Hundred percent 50%・100% |
Time residents 入居時期 | | Consultation 相談 |
Land of the right form 土地の権利形態 | | Ownership 所有権 |
Structure and method of construction 構造・工法 | | Wooden 2-story 木造2階建 |
Overview and notices その他概要・特記事項 | | Building confirmation number: 02954, Parking: car space 建築確認番号:02954、駐車場:カースペース |
Company profile 会社概要 | | <Mediation> Governor of Hiroshima Prefecture (3) The 008,962 No. Royal Home Co., Ltd. Yubinbango732-0055 Hiroshima, Hiroshima Prefecture Higashi-ku, Higashikaniya cho 10-33 <仲介>広島県知事(3)第008962号ロイヤルホーム(株)〒732-0055 広島県広島市東区東蟹屋町10-33 |