New Homes » Chugoku » Hiroshima » Higashi-ku


Hiroshima, Hiroshima Prefecture, Higashi-ku,
Bus "Ushitahigashi chome" walk 5 minutes
To Ushida area, Entrance door of the Ya attractive price of newly built single-family appeared smart control keys mounted, EV for outdoor electrical outlet is equipped with, You can achieve the eco-friendly living in smart !!
■ Facing south Sunny ■ Good view ■ About a 5-minute drive from Hiroshima Station ■ Two parking OK
Features pickup
Corresponding to the flat-35S / Parking two Allowed / Facing south / System kitchen / Bathroom Dryer / Yang per good / All room storage / Siemens south road / A quiet residential area / LDK15 tatami mats or more / Or more before road 6m / Japanese-style room / Shaping land / Face-to-face kitchen / Toilet 2 places / 2-story / 2 or more sides balcony / South balcony / Double-glazing / Ventilation good / Water filter / Located on a hill
Price
24,800,000 yen
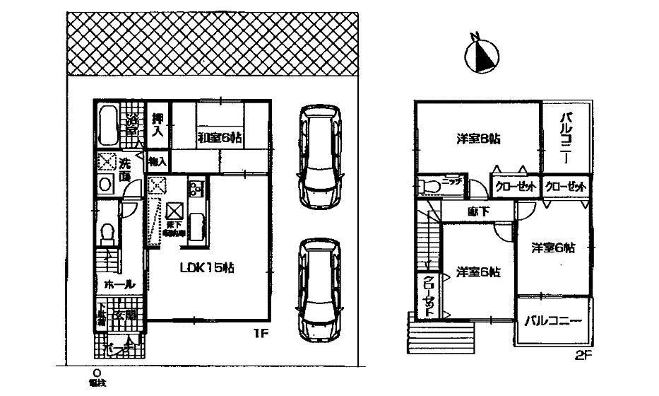
Floor plan
4LDK
Units sold
1 units
Land area
146.09 sq m (44.19 tsubo) (Registration)
Building area
95.58 sq m (28.91 square meters)
Driveway burden-road
Nothing, Southwest 6.2m width
Completion date
June 2013
Address
Hiroshima, Hiroshima Prefecture, Higashi-ku, Ushitahigashi 1
Traffic
Bus "Ushitahigashi chome" walk 5 minutes
Contact
TEL: 0800-603-1469 [Toll free] mobile phone ・ Also available from PHS
Caller ID is not notified
Please contact the "saw SUUMO (Sumo)"
If it does not lead, If the real estate company
Building coverage, floor area ratio
Fifty percent ・ Hundred percent
Time residents
Consultation
Land of the right form
Ownership
Structure and method of construction
Wooden 2-story
Use district
One low-rise
Overview and notices
Facilities: Public Water Supply, This sewage, City gas, Building confirmation number: Se 02953, Parking: car space
Company profile
<Mediation> Minister of Land, Infrastructure and Transport (12) Article 001483 No. Toa Estate Co., Ltd. Real Estate Information Center Yubinbango730-0051 Hiroshima Prefecture medium Hiroshima-ku, Otemachi 3-1-1


Floor plan

Floor plan. 24,800,000 yen, 4LDK, Land area 146.09 sq m , Building area 95.58 sq m
24,800,000 yen, 4LDK, Land area 146.09 sq m , Building area 95.58 sq m

Other local
Other local

Local photos, including front road
Local photos, including front road



Location