New Homes » Chugoku » Hiroshima » Higashi-ku
 
| | Hiroshima, Hiroshima Prefecture, Higashi-ku, 広島県広島市東区 |
| Bus "Ushitahigashi 1-chome" walk 1 minute バス「牛田東1丁目」歩1分 |
| 3-story appeared in the popular Ushida ☆ 人気の牛田に3階建て登場☆ |
Features pickup 特徴ピックアップ | | All room storage / Toilet 2 places / IH cooking heater / Walk-in closet / Three-story or more / Storeroom 全居室収納 /トイレ2ヶ所 /IHクッキングヒーター /ウォークインクロゼット /3階建以上 /納戸 | Price 価格 | | 38,800,000 yen 3880万円 | Floor plan 間取り | | 3LDK + S (storeroom) 3LDK+S(納戸) | Units sold 販売戸数 | | 1 units 1戸 | Land area 土地面積 | | 68.21 sq m (20.63 tsubo) (Registration) 68.21m2(20.63坪)(登記) | Building area 建物面積 | | 117.59 sq m (35.57 square meters) 117.59m2(35.57坪) | Driveway burden-road 私道負担・道路 | | Nothing, North 4.8m width 無、北4.8m幅 | Completion date 完成時期(築年月) | | January 2014 2014年1月 | Address 住所 | | Hiroshima, Hiroshima Prefecture, Higashi-ku, Ushitahigashi 1 広島県広島市東区牛田東1 | Traffic 交通 | | Bus "Ushitahigashi 1-chome" walk 1 minute バス「牛田東1丁目」歩1分 | Related links 関連リンク | | [Related Sites of this company] 【この会社の関連サイト】 | Contact お問い合せ先 | | TEL: 082-568-1150 Please inquire as "saw SUUMO (Sumo)" TEL:082-568-1150「SUUMO(スーモ)を見た」と問い合わせください | Building coverage, floor area ratio 建ぺい率・容積率 | | 60% ・ 200% 60%・200% | Time residents 入居時期 | | February 2014 schedule 2014年2月予定 | Land of the right form 土地の権利形態 | | Ownership 所有権 | Structure and method of construction 構造・工法 | | Wooden three-story 木造3階建 | Overview and notices その他概要・特記事項 | | Facilities: Public Water Supply, This sewage, Building confirmation number: 01486 設備:公営水道、本下水、建築確認番号:01486 | Company profile 会社概要 | | <Mediation> Governor of Hiroshima Prefecture (1) No. 010121 bamboo Corporation (Corporation) Yubinbango732-0817 Hiroshima, Hiroshima Prefecture, Minami-ku, Hijiyama cho 4-11 <仲介>広島県知事(1)第010121号竹コーポレーション(株)〒732-0817 広島県広島市南区比治山町4-11 |
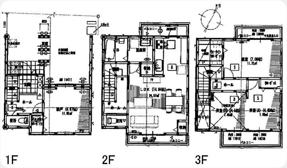
Floor plan間取り図  38,800,000 yen, 3LDK + S (storeroom), Land area 68.21 sq m , Building area 117.59 sq m
3880万円、3LDK+S(納戸)、土地面積68.21m2、建物面積117.59m2
 Local appearance photo
現地外観写真
 Local photos, including front road
前面道路含む現地写真
 Local appearance photo
現地外観写真
 Local photos, including front road
前面道路含む現地写真
Shopping centreショッピングセンター  Until Sanberumo 1038m
サンベルモまで1038m
Supermarketスーパー  499m to Yours Ushida shop
ユアーズ牛田店まで499m
 1045m to Madame Joy Ushida shop
マダムジョイ牛田店まで1045m
 1325m until Marche over Ushida shop
マルシェー牛田店まで1325m
Convenience storeコンビニ  465m to Seven-Eleven Hiroshima Ushitahigashi shop
セブンイレブン広島牛田東店まで465m
Drug storeドラッグストア  Hearty Wants to Ushida shop 1045m
ハーティウォンツ牛田店まで1045m
Home centerホームセンター  Daiki Aki until Hakushima shop 1619m
ダイキ安芸白島店まで1619m
Primary school小学校  1410m to Hiroshima Municipal Ushida Elementary School
広島市立牛田小学校まで1410m
Kindergarten ・ Nursery幼稚園・保育園  Ayame 896m to kindergarten
あやめ幼稚園まで896m
Location
|