New Homes » Chugoku » Hiroshima » Higashi-ku
 
| | Hiroshima, Hiroshima Prefecture, Higashi-ku, 広島県広島市東区 |
| JR Geibi Line "Tosaka" walk 22 minutes JR芸備線「戸坂」歩22分 |
| ◆ Before the park eyes ◆ A quiet residential area ◆ 公園目の前◆ 閑静な住宅街 |
| Park you can use in like a sense of garden. It is suitable for a walk in a quiet environment. 公園が庭みたいな感覚で使えます。静かな環境でお散歩に適しています。 |
Features pickup 特徴ピックアップ | | Corresponding to the flat-35S / Pre-ground survey / Parking two Allowed / Summer resort / System kitchen / Bathroom Dryer / All room storage / A quiet residential area / LDK15 tatami mats or more / Corner lot / Japanese-style room / Shaping land / Washbasin with shower / Face-to-face kitchen / Toilet 2 places / 2-story / South balcony / Zenshitsuminami direction / Underfloor Storage / The window in the bathroom / TV monitor interphone / Leafy residential area / Mu front building / Ventilation good / City gas / Storeroom フラット35Sに対応 /地盤調査済 /駐車2台可 /避暑地 /システムキッチン /浴室乾燥機 /全居室収納 /閑静な住宅地 /LDK15畳以上 /角地 /和室 /整形地 /シャワー付洗面台 /対面式キッチン /トイレ2ヶ所 /2階建 /南面バルコニー /全室南向き /床下収納 /浴室に窓 /TVモニタ付インターホン /緑豊かな住宅地 /前面棟無 /通風良好 /都市ガス /納戸 | Price 価格 | | 25,800,000 yen ~ 26,800,000 yen 2580万円 ~ 2680万円 | Floor plan 間取り | | 4LDK ~ 4LDK + S (storeroom) 4LDK ~ 4LDK+S(納戸) | Units sold 販売戸数 | | 2 units 2戸 | Total units 総戸数 | | 2 units 2戸 | Land area 土地面積 | | 132.49 sq m ~ 149.89 sq m (40.07 tsubo ~ 45.34 tsubo) (Registration) 132.49m2 ~ 149.89m2(40.07坪 ~ 45.34坪)(登記) | Building area 建物面積 | | 97.19 sq m ~ 98.01 sq m (29.39 tsubo ~ 29.64 tsubo) (Registration) 97.19m2 ~ 98.01m2(29.39坪 ~ 29.64坪)(登記) | Completion date 完成時期(築年月) | | January 2014 late schedule 2014年1月下旬予定 | Address 住所 | | Hiroshima, Hiroshima Prefecture Higashi-ku Hesakakurumegi 2 広島県広島市東区戸坂くるめ木2 | Traffic 交通 | | JR Geibi Line "Tosaka" walk 22 minutes Hiroshima bus / Hiroden bus "Tianshui" walk 10 minutes JR芸備線「戸坂」歩22分 広島バス/広電バス「天水」歩10分 | Contact お問い合せ先 | | (Ltd.) Strawberry Real Estate TEL: 082-573-0828 Please inquire as "saw SUUMO (Sumo)" (株)いちご不動産TEL:082-573-0828「SUUMO(スーモ)を見た」と問い合わせください | Building coverage, floor area ratio 建ぺい率・容積率 | | Building coverage 60%, Volume rate of 200% 建ぺい率60%、容積率200% | Time residents 入居時期 | | 4 months after the contract 契約後4ヶ月 | Land of the right form 土地の権利形態 | | Ownership 所有権 | Use district 用途地域 | | Two mid-high 2種中高 | Overview and notices その他概要・特記事項 | | Building confirmation number: H25SH111777 建築確認番号:H25SH111777 | Company profile 会社概要 | | <Mediation> Governor of Hiroshima Prefecture (1) No. 010198 (Ltd.) strawberry real estate Yubinbango739-1733 Hiroshima, Hiroshima Prefecture Asakita Ku Kuchitaminami 4-48-16 <仲介>広島県知事(1)第010198号(株)いちご不動産〒739-1733 広島県広島市安佐北区口田南4-48-16 |
Local appearance photo現地外観写真  Local (12 May 2013) shooting 4LDK 25,800,000 yen
現地(2013年12月)撮影4LDK 2580万円
 Local (12 May 2013) Shooting 4LDK + S 26,800,000 yen
現地(2013年12月)撮影 4LDK+S 2680万円
Local photos, including front road前面道路含む現地写真  Local (12 May 2013) Shooting
現地(2013年12月)撮影
Livingリビング  Indoor (12 May 2013) Shooting 1st floor LDK (image)
室内(2013年12月)撮影 1階 LDK (イメージ)
Bathroom浴室  Indoor (12 May 2013) Shooting (image)
室内(2013年12月)撮影 (イメージ)
Kitchenキッチン  Indoor (12 May 2013) Shooting
室内(2013年12月)撮影
Non-living roomリビング以外の居室  Indoor (12 May 2013) Shooting
室内(2013年12月)撮影
Wash basin, toilet洗面台・洗面所  Indoor (12 May 2013) Shooting
室内(2013年12月)撮影
Toiletトイレ  Indoor (12 May 2013) Shooting
室内(2013年12月)撮影
Parking lot駐車場  Local (12 May 2013) Shooting
現地(2013年12月)撮影
Balconyバルコニー  Local (12 May 2013) Shooting
現地(2013年12月)撮影
View photos from the dwelling unit住戸からの眺望写真  Indoor (12 May 2013) Shooting
室内(2013年12月)撮影
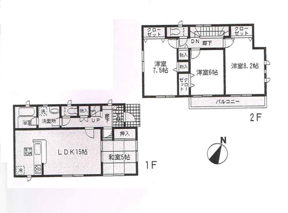
Otherその他  Floor plan
間取図
Non-living roomリビング以外の居室  Indoor (12 May 2013) Shooting
室内(2013年12月)撮影
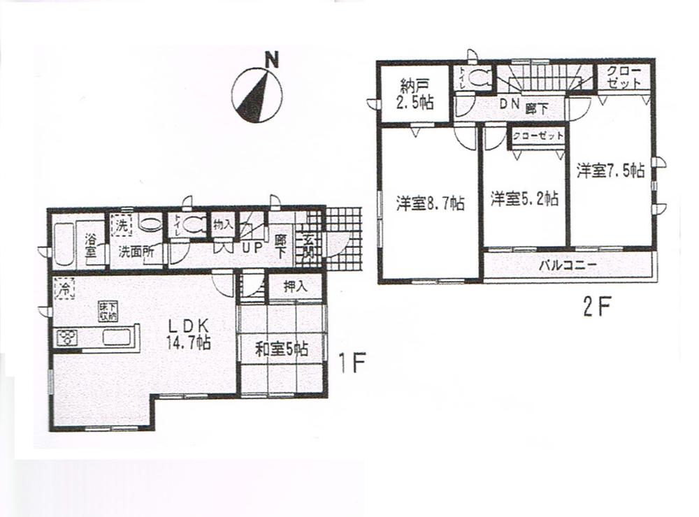
Otherその他  Floor plan
間取図
Non-living roomリビング以外の居室  Indoor (12 May 2013) Shooting
室内(2013年12月)撮影
 Indoor (12 May 2013) Shooting
室内(2013年12月)撮影
Location
|