|
|
Hiroshima, Hiroshima Prefecture, Minami-ku,
広島県広島市南区
|
|
Wide bus "Prefectural pre-university Hiroshima" walk 3 minutes
広バス「県立広島大学前」歩3分
|
|
A quiet residential area, 2 along the line more accessible, Parking two Allowed, Immediate Available, Face-to-face kitchen, It is close to the city, Energy-saving water heaters, System kitchen, Bathroom Dryer, LDK15 tatami mats or more, Washbasin with shower, Second floor
閑静な住宅地、2沿線以上利用可、駐車2台可、即入居可、対面式キッチン、市街地が近い、省エネ給湯器、システムキッチン、浴室乾燥機、LDK15畳以上、シャワー付洗面台、2階
|
Features pickup 特徴ピックアップ | | Parking two Allowed / Immediate Available / 2 along the line more accessible / Energy-saving water heaters / It is close to the city / System kitchen / Bathroom Dryer / A quiet residential area / LDK15 tatami mats or more / Washbasin with shower / Face-to-face kitchen / 2-story / Double-glazing / Warm water washing toilet seat / Dish washing dryer / Water filter / City gas / Storeroom / Flat terrain 駐車2台可 /即入居可 /2沿線以上利用可 /省エネ給湯器 /市街地が近い /システムキッチン /浴室乾燥機 /閑静な住宅地 /LDK15畳以上 /シャワー付洗面台 /対面式キッチン /2階建 /複層ガラス /温水洗浄便座 /食器洗乾燥機 /浄水器 /都市ガス /納戸 /平坦地 |
Event information イベント情報 | | (Please be sure to ask in advance) (事前に必ずお問い合わせください) |
Price 価格 | | 37,900,000 yen 3790万円 |
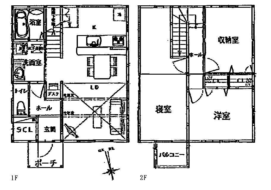
Floor plan 間取り | | 3LDK + S (storeroom) 3LDK+S(納戸) |
Units sold 販売戸数 | | 1 units 1戸 |
Land area 土地面積 | | 110.84 sq m (registration) 110.84m2(登記) |
Building area 建物面積 | | 92.74 sq m (registration) 92.74m2(登記) |
Driveway burden-road 私道負担・道路 | | Nothing, East 4m width 無、東4m幅 |
Completion date 完成時期(築年月) | | May 2012 2012年5月 |
Address 住所 | | Hiroshima, Hiroshima Prefecture, Minami-ku, Midori 4-6 広島県広島市南区翠4-6 |
Traffic 交通 | | Wide bus "Prefectural pre-university Hiroshima" walk 3 minutes hiroden ujina line "county hospital before" walk 10 minutes 広バス「県立広島大学前」歩3分広島電鉄宇品線「県病院前」歩10分
|
Person in charge 担当者より | | Rep Mukai 担当者向井 |
Contact お問い合せ先 | | TEL: 0120-322882 [Toll free] Please contact the "saw SUUMO (Sumo)" TEL:0120-322882【通話料無料】「SUUMO(スーモ)を見た」と問い合わせください |
Building coverage, floor area ratio 建ぺい率・容積率 | | 80% ・ 300% 80%・300% |
Time residents 入居時期 | | Immediate available 即入居可 |
Land of the right form 土地の権利形態 | | Ownership 所有権 |
Structure and method of construction 構造・工法 | | Wooden 2-story 木造2階建 |
Use district 用途地域 | | Residential 近隣商業 |
Overview and notices その他概要・特記事項 | | Contact: Mukai, Facilities: Public Water Supply, This sewage, City gas, Parking: Garage 担当者:向井、設備:公営水道、本下水、都市ガス、駐車場:車庫 |
Company profile 会社概要 | | <Mediation> Governor of Hiroshima Prefecture (7) No. 005935 (Ltd.) Fuji real estate sales Yubinbango730-0847 Hiroshima medium Hiroshima District Funairiminami 1-10-20 <仲介>広島県知事(7)第005935号(株)富士不動産販売〒730-0847 広島県広島市中区舟入南1-10-20 |