New Homes » Chugoku » Hiroshima » Minami-ku
 
| | Hiroshima, Hiroshima Prefecture, Minami-ku, 広島県広島市南区 |
| Hiroden "Danbara Yonchome" walk 3 minutes 広電「段原四丁目」歩3分 |
| Flat 35S20 Specifications 45 minutes quasi-fireproof structure All-electric Cute IH cooking heater フラット35S20仕様 45分準耐火構造 オール電化 エコキュート IHクッキングヒーター |
Features pickup 特徴ピックアップ | | It is close to the city / Summer resort / Facing south / Yang per good / Ventilation good / Storeroom 市街地が近い /避暑地 /南向き /陽当り良好 /通風良好 /納戸 | Price 価格 | | 40,800,000 yen 4080万円 | Floor plan 間取り | | 2LDK + S (storeroom) 2LDK+S(納戸) | Units sold 販売戸数 | | 1 units 1戸 | Land area 土地面積 | | 134.13 sq m 134.13m2 | Building area 建物面積 | | 134.13 sq m 134.13m2 | Driveway burden-road 私道負担・道路 | | Nothing 無 | Completion date 完成時期(築年月) | | May 2012 2012年5月 | Address 住所 | | Hiroshima, Hiroshima Prefecture, Minami-ku, Danbarahinode 2 広島県広島市南区段原日出2 | Traffic 交通 | | Hiroden "Danbara Yonchome" walk 3 minutes 広電「段原四丁目」歩3分 | Person in charge 担当者より | | [Regarding this property.] Popular Danbara area Newly built single-family 【この物件について】人気の段原エリア 新築戸建 | Contact お問い合せ先 | | TEL: 0800-603-8568 [Toll free] mobile phone ・ Also available from PHS Caller ID is not notified Please contact the "saw SUUMO (Sumo)" If it does not lead, If the real estate company TEL:0800-603-8568【通話料無料】携帯電話・PHSからもご利用いただけます 発信者番号は通知されません 「SUUMO(スーモ)を見た」と問い合わせください つながらない方、不動産会社の方は
| Building coverage, floor area ratio 建ぺい率・容積率 | | 60% ・ 200% 60%・200% | Time residents 入居時期 | | Immediate available 即入居可 | Land of the right form 土地の権利形態 | | Ownership 所有権 | Structure and method of construction 構造・工法 | | Wooden three-story 木造3階建 | Use district 用途地域 | | Two dwellings 2種住居 | Company profile 会社概要 | | <Mediation> Governor of Hiroshima Prefecture (2) the first 009,606 No. eye style (Ltd.) Yubinbango730-0037 Hiroshima, Hiroshima Prefecture, Naka-ku Nakamachi 7-35 Wako Nakamachi building second floor <仲介>広島県知事(2)第009606号アイスタイル(株)〒730-0037 広島県広島市中区中町7-35 和光中町ビル2階 |
Livingリビング  Comfortable living spacious living
広々リビングで快適生活
 Local appearance photo
現地外観写真
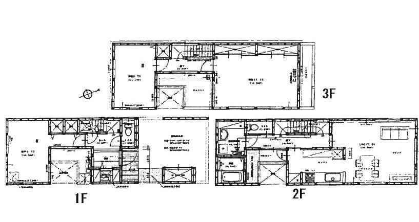
Floor plan間取り図  40,800,000 yen, 2LDK + S (storeroom), Land area 134.13 sq m , Building area 134.13 sq m 2LDK + storeroom (6.75 tatami mats) Ouchi there is a wide enough a good location
4080万円、2LDK+S(納戸)、土地面積134.13m2、建物面積134.13m2 2LDK+納戸(6.75畳) 好立地なのに十分な広さがあるおうち
Bathroom浴室  Comfortable tub. It has a window.
快適浴槽。 窓が付いています。
Kitchenキッチン  Cafe style stylish kitchen
カフェ風なオシャレキッチン
Other localその他現地  Try to experience the spacious space.
広々空間を体感してみて下さい。
Wash basin, toilet洗面台・洗面所  Interior
室内
Balconyバルコニー  Interior
室内
Receipt収納  Interior
室内
Toiletトイレ  Interior
室内
Other localその他現地  Interior
室内
Location
|