2014January
33,800,000 yen, 4LDK, 122.1 sq m
New Homes » Chugoku » Hiroshima » Minami-ku
 
| | Hiroshima, Hiroshima Prefecture, Minami-ku, 広島県広島市南区 |
| Bus "Shinonomehon-cho 3-chome" walk 5 minutes バス「東雲本町3丁目」歩5分 |
| Rooftop roof balcony 20 sq m ☆ 屋上ルーフバルコニー20m2☆ |
Features pickup 特徴ピックアップ | | All room storage / LDK15 tatami mats or more / Toilet 2 places / Bathroom 1 tsubo or more / Warm water washing toilet seat / IH cooking heater / Three-story or more / rooftop 全居室収納 /LDK15畳以上 /トイレ2ヶ所 /浴室1坪以上 /温水洗浄便座 /IHクッキングヒーター /3階建以上 /屋上 | Price 価格 | | 33,800,000 yen 3380万円 | Floor plan 間取り | | 4LDK 4LDK | Units sold 販売戸数 | | 1 units 1戸 | Land area 土地面積 | | 70 sq m (21.17 tsubo) (Registration) 70m2(21.17坪)(登記) | Building area 建物面積 | | 122.1 sq m (36.93 square meters) 122.1m2(36.93坪) | Driveway burden-road 私道負担・道路 | | Nothing 無 | Completion date 完成時期(築年月) | | December 2013 2013年12月 | Address 住所 | | Hiroshima, Hiroshima Prefecture, Minami-ku, Kasumi 2 広島県広島市南区霞2 | Traffic 交通 | | Bus "Shinonomehon-cho 3-chome" walk 5 minutes バス「東雲本町3丁目」歩5分 | Related links 関連リンク | | [Related Sites of this company] 【この会社の関連サイト】 | Contact お問い合せ先 | | TEL: 082-568-1150 Please inquire as "saw SUUMO (Sumo)" TEL:082-568-1150「SUUMO(スーモ)を見た」と問い合わせください | Time residents 入居時期 | | January 2014 2014年1月 | Land of the right form 土地の権利形態 | | Ownership 所有権 | Structure and method of construction 構造・工法 | | Wooden three-story 木造3階建 | Use district 用途地域 | | One dwelling 1種住居 | Overview and notices その他概要・特記事項 | | Facilities: Public Water Supply, This sewage, All-electric, Building confirmation number: 00740 設備:公営水道、本下水、オール電化、建築確認番号:00740 | Company profile 会社概要 | | <Mediation> Governor of Hiroshima Prefecture (1) No. 010121 bamboo Corporation (Corporation) Yubinbango732-0817 Hiroshima, Hiroshima Prefecture, Minami-ku, Hijiyama cho 4-11 <仲介>広島県知事(1)第010121号竹コーポレーション(株)〒732-0817 広島県広島市南区比治山町4-11 |
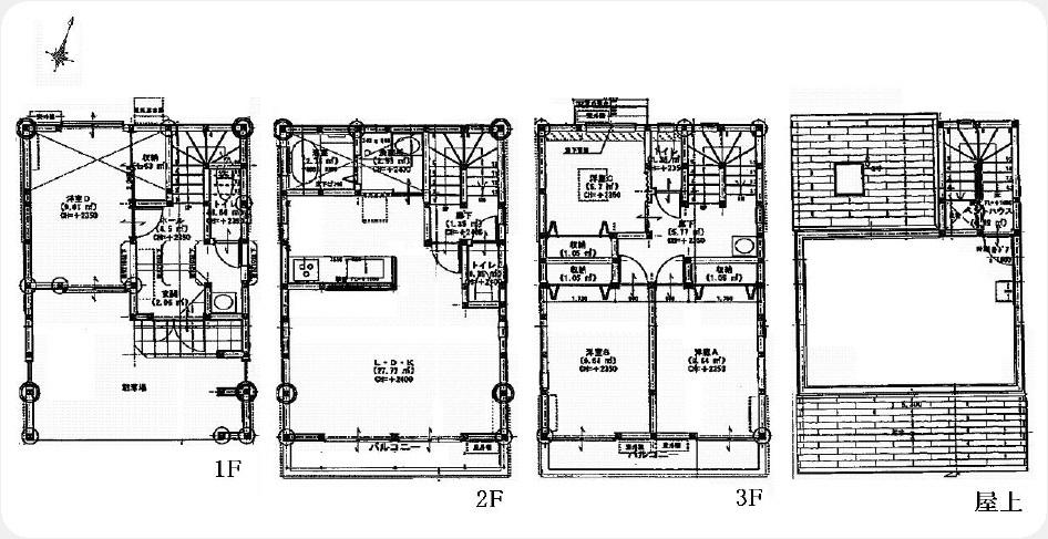
Floor plan間取り図  33,800,000 yen, 4LDK, Land area 70 sq m , Building area 122.1 sq m
3380万円、4LDK、土地面積70m2、建物面積122.1m2
 Local appearance photo
現地外観写真
 Local appearance photo
現地外観写真
 Local photos, including front road
前面道路含む現地写真
Location
|