|
|
Hiroshima, Hiroshima Prefecture, Minami-ku,
広島県広島市南区
|
|
Bus "Nishiasahi town" walk 3 minutes
バス「西旭町」歩3分
|
|
Do not look forward to a new life in the life convenient Asahi-cho?
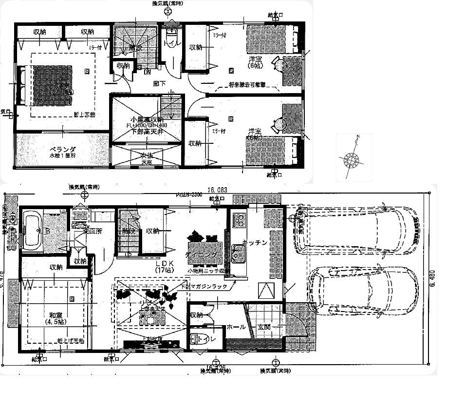
生活便利な旭町で新しい生活を楽しみませんか?小屋裏収納も使いやすいです
|
Features pickup 特徴ピックアップ | | Parking two Allowed / Bathroom Dryer / All room storage / LDK15 tatami mats or more / Japanese-style room / Washbasin with shower / Bathroom 1 tsubo or more / 2-story / The window in the bathroom 駐車2台可 /浴室乾燥機 /全居室収納 /LDK15畳以上 /和室 /シャワー付洗面台 /浴室1坪以上 /2階建 /浴室に窓 |
Price 価格 | | 40,800,000 yen 4080万円 |
Floor plan 間取り | | 4LDK 4LDK |
Units sold 販売戸数 | | 1 units 1戸 |
Land area 土地面積 | | 106.25 sq m (32.14 tsubo) (Registration) 106.25m2(32.14坪)(登記) |
Building area 建物面積 | | 106.82 sq m (32.31 square meters) 106.82m2(32.31坪) |
Driveway burden-road 私道負担・道路 | | Nothing, Northeast 3.6m width 無、北東3.6m幅 |
Completion date 完成時期(築年月) | | February 2014 2014年2月 |
Address 住所 | | Hiroshima, Hiroshima Prefecture, Minami-ku, Asahi 2 広島県広島市南区旭2 |
Traffic 交通 | | Bus "Nishiasahi town" walk 3 minutes バス「西旭町」歩3分 |
Related links 関連リンク | | [Related Sites of this company] 【この会社の関連サイト】 |
Contact お問い合せ先 | | TEL: 082-568-1150 Please inquire as "saw SUUMO (Sumo)" TEL:082-568-1150「SUUMO(スーモ)を見た」と問い合わせください |
Building coverage, floor area ratio 建ぺい率・容積率 | | 60% ・ 160% 60%・160% |
Time residents 入居時期 | | March 2014 schedule 2014年3月予定 |
Land of the right form 土地の権利形態 | | Ownership 所有権 |
Structure and method of construction 構造・工法 | | Wooden 2-story 木造2階建 |
Use district 用途地域 | | One dwelling 1種住居 |
Overview and notices その他概要・特記事項 | | Facilities: Public Water Supply, This sewage, All-electric, Building confirmation number: 01460, Parking: car space 設備:公営水道、本下水、オール電化、建築確認番号:01460、駐車場:カースペース |
Company profile 会社概要 | | <Mediation> Governor of Hiroshima Prefecture (1) No. 010121 bamboo Corporation (Corporation) Yubinbango732-0817 Hiroshima, Hiroshima Prefecture, Minami-ku, Hijiyama cho 4-11 <仲介>広島県知事(1)第010121号竹コーポレーション(株)〒732-0817 広島県広島市南区比治山町4-11 |