New Homes » Chugoku » Hiroshima » Minami-ku
 
| | Hiroshima, Hiroshima Prefecture, Minami-ku, 広島県広島市南区 |
| 1 "Miyuki 1-chome bus stop" walk 5 minutes 1「御幸1丁目バス停」歩5分 |
| All-electric Parking two Allowed オール電化 駐車2台可 |
Features pickup 特徴ピックアップ | | Parking two Allowed / LDK18 tatami mats or more / It is close to the city / System kitchen / Shaping land / Washbasin with shower / Face-to-face kitchen / Toilet 2 places / 2 or more sides balcony / IH cooking heater / Walk-in closet / Three-story or more / All-electric / Flat terrain 駐車2台可 /LDK18畳以上 /市街地が近い /システムキッチン /整形地 /シャワー付洗面台 /対面式キッチン /トイレ2ヶ所 /2面以上バルコニー /IHクッキングヒーター /ウォークインクロゼット /3階建以上 /オール電化 /平坦地 | Price 価格 | | 36,850,000 yen 3685万円 | Floor plan 間取り | | 4LDK 4LDK | Units sold 販売戸数 | | 1 units 1戸 | Land area 土地面積 | | 89.47 sq m (registration) 89.47m2(登記) | Building area 建物面積 | | 130.82 sq m 130.82m2 | Driveway burden-road 私道負担・道路 | | Nothing, North 3.7m width 無、北3.7m幅 | Completion date 完成時期(築年月) | | July 2013 2013年7月 | Address 住所 | | Hiroshima, Hiroshima Prefecture, Minami-ku, Ujinanishi 1 広島県広島市南区宇品西1 | Traffic 交通 | | 1 "Miyuki 1-chome bus stop" walk 5 minutes 1「御幸1丁目バス停」歩5分 | Contact お問い合せ先 | | (With) the sun, Building Products TEL: 0800-603-3055 [Toll free] mobile phone ・ Also available from PHS Caller ID is not notified Please contact the "saw SUUMO (Sumo)" If it does not lead, If the real estate company (有)太陽住建TEL:0800-603-3055【通話料無料】携帯電話・PHSからもご利用いただけます 発信者番号は通知されません 「SUUMO(スーモ)を見た」と問い合わせください つながらない方、不動産会社の方は
| Building coverage, floor area ratio 建ぺい率・容積率 | | 60% ・ 160% 60%・160% | Time residents 入居時期 | | Consultation 相談 | Land of the right form 土地の権利形態 | | Ownership 所有権 | Structure and method of construction 構造・工法 | | Wooden three-story 木造3階建 | Use district 用途地域 | | One dwelling 1種住居 | Overview and notices その他概要・特記事項 | | Facilities: Public Water Supply, This sewage, All-electric, Parking: car space 設備:公営水道、本下水、オール電化、駐車場:カースペース | Company profile 会社概要 | | <Mediation> Governor of Hiroshima Prefecture (2) No. 008844 (with) the sun, Building Products Yubinbango733-0037 Hiroshima, Hiroshima Prefecture, Nishi-ku, Nishikan'nonmachi 8-1 <仲介>広島県知事(2)第008844号(有)太陽住建〒733-0037 広島県広島市西区西観音町8-1 |
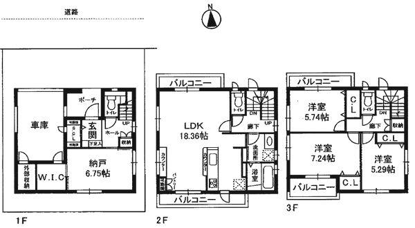
Floor plan間取り図  36,850,000 yen, 4LDK, Land area 89.47 sq m , Building area 130.82 sq m
3685万円、4LDK、土地面積89.47m2、建物面積130.82m2
 Local appearance photo
現地外観写真
 Local appearance photo
現地外観写真
Location
|