New Homes » Chugoku » Hiroshima » Minami-ku


Hiroshima, Hiroshima Prefecture, Minami-ku,
Hiroden hijiyama line "Minamimachirokuchome" walk 5 minutes
Outside 構付 Warranty with insurance Flat 35S can be used (but only within the time limit) land ・ The building is located change per planned Minamimachirokuchome electric stop use
Features pickup
Toilet 2 places / 2-story / Walk-in closet / City gas / Attic storage
Price
51,900,000 yen
Floor plan
4LDK
Units sold
1 units
Land area
113.23 sq m (34.25 tsubo) (Registration)
Building area
108.2 sq m (32.73 tsubo) (Registration)
Driveway burden-road
Nothing, South 4.5m width
Completion date
June 2014
Address
Hiroshima, Hiroshima Prefecture, Minami-ku, Minami-cho 4
Traffic
Hiroden hijiyama line "Minamimachirokuchome" walk 5 minutes
Person in charge
The person in charge (stock) Juken
Contact
TEL: 0800-603-3432 [Toll free] mobile phone ・ Also available from PHS
Caller ID is not notified
Please contact the "saw SUUMO (Sumo)"
If it does not lead, If the real estate company
Building coverage, floor area ratio
60% ・ 300%
Time residents
Consultation
Land of the right form
Ownership
Structure and method of construction
Wooden 2-story
Construction
Totate housing
Use district
One dwelling
Overview and notices
The person in charge :( stock) Juken, Facilities: Public Water Supply, This sewage, City gas, Building confirmation number: Se 02065, Parking: car space
Company profile
<Mediation> Governor of Hiroshima Prefecture (3) No. 008815 (Ltd.) Jukensha Yubinbango731-5136 Hiroshima, Hiroshima Prefecture Saeki-ku Rakurakuen 2-1-30


Local appearance photo

Local appearance photo. December 7 shooting
December 7 shooting

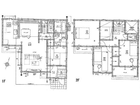
Floor plan

Floor plan. 51,900,000 yen, 4LDK, Land area 113.23 sq m , Building area 108.2 sq m
51,900,000 yen, 4LDK, Land area 113.23 sq m , Building area 108.2 sq m

Local appearance photo
Local appearance photo

Local photos, including front road
Local photos, including front road

Kindergarten ・ Nursery

kindergarten ・ Nursery. 32m to affinity kindergarten
32m to affinity kindergarten

Local photos, including front road
Local photos, including front road

Primary school

Primary school. Minami until elementary school 541m
Minami until elementary school 541m

Junior high school

Junior high school. Midorimachi until junior high school 772m
Midorimachi until junior high school 772m

Other Environmental Photo

Other Environmental Photo. Jolly Pasta 570m to Minami-cho shop
Jolly Pasta 570m to Minami-cho shop

Other Environmental Photo. Saizeria 952m to Hiroshima Ujina shop
Saizeria 952m to Hiroshima Ujina shop



Location